The Sentral Suites
Jalan Tun Sambanthan, Kl Sentral, Kuala Lumpur
RM 668,000
1
Bed
1
Bath
650
sqft (floor)
RM 1,028
psf (floor)

Photos

Map View
About this property
Near amenities
- 650sft
- 1 bedroom and 1 bathroom
- 1 car park
- near amenities
- easy accessibility
For further details please, please call Shirley Ng at 0*****
Common facilities
24 hours security
Basketball court
Bbq
Covered car park
Affordability
Tell us your monthly income and expenses to see if this home fits your budget.
The Sentral Suites

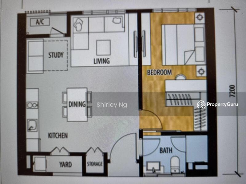
Hot on the trail of Nu Sentral, comes the latest addition to the KL Sentral real estate market, a leasehold residential and commercial lot called Sentral Suites. Dubbed “Garden in the City” by the developers MRCB, Sentral Suites will be one of the residential developments centered on their pioneering idea of Transit Oriented Development (TOD). In fact, MRCB’s biggest project to date is the flourishing Central Business District (CBD) of KL Sentral, the most sought after area in KL due to its excellent connectivity to public transport. A leading urban property developer, MRCB promises that Sentral Suites provides the merits that all upscale developments offer and more. While excellent connectivity alone would be considered an asset and unique selling feature of a residence, MRCB is not sold on the idea that it would be enough. Hence, the inclusion of gardens throughout the building designs to support its claim of making a “Garden in the City”. With 15 themed and pocket gardens located in nooks and corners of the development, the idea is sure to create waves among urban dwellers and expatriates who are always on the lookout for green living in the midst of the concrete ridden city. These include designs of a Hammock Garden, Balinese themed garden and Japanese themed garden so one can get the gist where the developer is going with this idea. Not only are the developers focusing on adults to gain contentment from their garden feature, they are also including a Trampoline Garden with many outdoor game facilities for the children. Sentral Suites is located within five minutes walking distance from KL Sentral, so future residents can reap the benefits of the best public transportation available in all of Malaysia. What with the proposal of High Speed Rail (HSR) expected to be completed in 2026, future residents can take heart that Singapore will soon be within reach in only 99 minutes. Not only does this feature greatly convenience current property owners in KL Sentral, it also helps to create future demand by ten folds. Furthermore, as KL Sentral also houses Nu Sentral, the latest hip addition to KL’s growing circle of shopping malls, one can easily access high end retailers such as H&M and casual dining options such as Outback Steakhouse. Since Brickfields is within a few minutes’ distance as well, future residents can also be treated to an array of mouthwatering cheap traditional Indian cuisine right within reach of their fingertips. KL Sentral is truly the heart of KL as it not only is a hub for public transportation; it also easily connects to major cities throughout KL and Selangor, such as Bangsar via Jalan Bangsar, the city center via Jalan Istana and Petaling Jaya through Federal Highway. Along with the themed and pocket garden feature of Sentral Suites, home owners will be rewarded with various other facilities such as a jogging track, dance studio, billiard room, swimming pool, Jacuzzi, sauna, multipurpose halls, Taichi deck, barbeque area, study room and basketball court among others to satisfy recreational needs. Sentral Suites will be spread across an area of 4.92 acres, with three apartment blocks completing the residential complex. Each apartment block will be launched in different phases, with the overall project launched in the 3rd quarter of 2016 and expected to achieve completion in 54 months, in the 1st quarter of 2021. The first and second block will house 458 units and the third block, 518 units. The bottom of the residence will hold 41 retail units. There are 43 storeys in total and each block will house six elevators. There are ten different floor plans to choose from in the serviced residence: varying from Type A with 1 bedroom, 1 bathroom at 650 sq ft to Type D with 2 bedrooms, 1 suite, and 3 bathrooms at 1,166 sq ft. Buyers will be able to choose from four different views the house faces, at the northeast, the KL city center, at the southeast, Seputeh residential area, at the southwest, Mid Valley Megamall, and at the northwest end, KL Sentral itself. Each unit will be allocated one to three parking bays each depending on the size of the unit. This leasehold property priced at approximately RM 1,000 per sq ft is expected to sell at a listing price starting from RM 700,000. At the moment, no maintenance fee information has been released as yet and the property is listed under a commercial title so one can expect all the conditions of the title to be enforced. MRCB is also the proud developer of 9 Seputeh at Old Klang Road and 3Residences at Kajang. KL Sentral is also home to many hot properties in the market such as The Sentral Residences, Suasana Sentral Loft, Suasana Sentral Condominiums, St Regis The Residences and 348 Sentral.
View project details

























