Curvo Residences is the final residential phase of the first integrated development in Setapak, SkyArena.

Penduline Type A ─ 20’X70’. No Frills units. Newly launched. Made for young couples and first time owners
Penduline is 625 units of leasehold two-storey terraced homes built over a 54.95 parcel in the Fauna precinct of Bandar Rimbayu’s 1,879-acre multi-phase, multi-component township development. Penduline represents the first phase of this precinct’s development. The earlier developments have been in the Flora precinct.
Of the 625 units, only 132 have been launched in November last year. Almost all have been sold. However, more units will be released at a later date.
Penduline features land areas of 20’ X 70’ with built-ups of 1,751 to 2,021sqft (Type A) and are priced from RM625,000 or RM356psf. Penduline is not strata titled like the earlier developments in Bandar Rimbayu and is not gated and guarded. This means that the owner does not have to pay maintenance fees for facilities.
However, Penduline is not without recreational facilities as it does have its own 8.4-acre parkland with a multi-purpose court, futsal court, football lawn field, an integrated playground and parcourse area. Residents may also go over to The Arc for more outdoor activities.
Penduline is in Bandar Rimbayu which is a 1,879-acre mixed residential and commercial township developed by IJM Land Berhad. It is located in Telok Panglima Garang adjacent to Kota Kemuning.
Project Name: Penduline Residence, Bandar Rimbayu
Sales Gallery: Bandar Rimbayu Show Gallery, No: 1, Jalan Flora 3, Bandar Rimbayu, 42500, Teluk Panglima Garang, Selangor Darul Ehsan Tollfree: 1700-81-8686
Tel: 013-3737-637/ 016-660-2324
Website: www.rimbayu.com or http://rimbayu.ijmland.com/property/penduline
Developer: IJM Land Berhad (187405-T), Ground Floor, Wisma IJM, Jalan Yong Shook Lin, 46050 Petaling Jaya, Selangor Darul Ehsan.
Tel: 03-7985 8288 Website: http://www.ijmland.com
Total Land Area of Whole Rimbayu Development including the Arc: 1,879 acres
Total Land Area of Penduline: 54.95 acres
Phase of Bandar Rimbayu development: Phase 7, Penduline
Property Type: Double Storey Terraced Homes
Land Title: Residential
Tenure: Leasehold
No of Units in Total: 625
Land Area of Units: Type A and B: 20′ x 70′
Built-Up:
Type A ─ 1771sqft (intermediate)/ 1826 sqft (endlot)/
2095sqft (corner)
Type B ─ 1898 sqft (intermediate)/ 1965sqft (endlot)/
2283sqft (corner)
Unit Types and Built Up:
- Type A 20’ X 70’: 4R/3B
1771sqft (intermediate)/ 1826 sqft (endlot)/ 2095sqft (corner)
- Type B 20’ X 70’: 4R/3B
1898 sqft (intermediate)/ 1965sqft (endlot)/ 2283sqft (corner)
Price per sq ft: average: Average RM356psf
Listed Price: From RM625,000
Expected Date of Completion: December 2017
Facilities
Within the Penduline parcel:
- 4-acre parkland with
- 750m walkway
- Multi-purpose court
- Futsal court
- Football lawn field
- Integrated playground
- Parcourse area
Residents may also go over to The Arc for more outdoor activities as the Arc is for the entire community of Bandar Rimbayu.
- The Arc (10,000sq m) of elevated parkland and communal centerpiece of Bandar Rimbayu with 50,000 Trees and Shrubs, Herb and Landscaped Gardens, Football Field, Outdoor Exercise Equipment, Jogging, Walking and Cycling Tracks, Ponds and Lakes, Covered Walkways, Reflecting Canal.

Actual photo of The Arc, a canal parkland and communal recreation centre (Pixes from Garis Architects, designers of The Arc, photography: Steven Ngu, Andy Lim)
The Arc has won many awards. They are:
Amenities
Within 15km from Bandar Rimbayu
Connectivity
Situated next to Kota Kemuning, Shah Alam, Bandar Rimbayu is connected by 5 highways:
- The Lebuhraya Shah Alam (KESAS) and Lebuhraya Kemuning Shah Alam (LKSA) provide access to Subang, Petaling Jaya, Damansara, Kuala Lumpur City Centre, Puchong, Shah Alam, Klang and many other parts of Klang Valley.
- South Klang Valley Expressway (SKVE) gives access to Putrajaya, Cyberjaya and Kajang.
- Expressway Lingkaran Tengah (ELITE) provides access to KLIA and the southern region.
- The proposed West Coast Expressway (WCE) links Banting to Taiping, Perak and when completed, will further enhance connectivity to the west coast of Malaysia.
Unique Selling Points:
- Excellent Connectivity: Connected to 5 highways
- Affordable Housing (RM356psf) among the other 2 developments in same area
- Close by to Kota Kemuning matured neighbourhood with schools nearby
- Within township with commercial, offices and educational components
- No maintenance fee
- Green Township Status: Bandar Rimbayu has been awarded the green township status certified by Green Building Index (GBI). (For a list of awards for Bandar Rimbayu, scroll down to the Analysis section)
- Healthy, Fitness and Community Bonding Lifestyle Encouraged: Through all green, community bonding and exercise spaces and facilities provided
Project Details
As mentioned, Penduline is in the Fauna precinct in the 1,879-acre Bandar Rimbayu township. It is one of the first developments in this precinct.
Why Penduline?
These 20’ X 70’ terraced homes with built-ups ranging from 1,751sq ft to 2,283sq ft (for Type B corner) are named after Penduline, a species of small birds quite common to Eurasia (Europe and Asia) that builds hanging bag nests from trees and live in open country as well as in the rainforest.
Thus, Penduline homes are aptly named since these are smaller homes and Bandar Rimbayu, is after all, nature-themed.

Left: The Penduline species of small birds that Penduline homes have been named after. (Pic by Pekka Fagel). Right: The Asian fire-capped Penduline (Pic Credit: Anzrain – Own work, CC BY-SA 4.0)
Designed with the first-time owner or young family in mind, Penduline homes are purposely trimmed to be smaller, sharper, with no added frills like solar panels and rainwater harvesting systems. Thus the end goal is to make them affordable.
The cost savings also comes from the fact that Penduline is not gated and guarded, thus saving on maintenance fees, but the 54.95-acre neighbourhood has been built with a single entry and exit point to facilitate a guarded scheme should residents decide to implement it.
Penduline is also not strata-titled. Again, this means no maintenance fees. Maintenance fees could come up to a few hundred ringgit a month and levied on top of owners’ mortgages, the extra cost could make owning a home a burden.
However, this doesn’t mean that there is any compromise to the quality of the house. Or that smaller means less room for the family to grow.
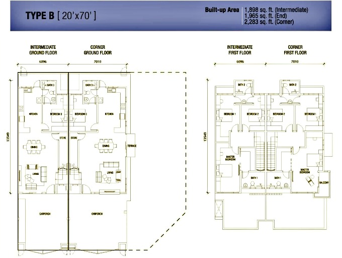
Floor Plans
Take a look at the Floor Plans:
Each Penduline home comes with 4 rooms and 3 baths. With clever interior design and space-saving furnishing, this could translate to quite a decent spaciousness.
Here are some more interior design ideas.
Interior Design Ideas
A Closer Look Inside Type A

Geometric shapes with a splash of colour breaks the monotony of a plain wall and creates a clever illusion which accents the dining area

This could be turned into the TV room for lounging and family entertainment. Or, it could be used as a bedroom
Site Plan of Penduline
Outdoors Facilities
Outside of Penduline are green grounds and spaces that stretch for far and wide such as an 8.4-acre parkland with walking track, multi-purpose court, futsal court, football lawn field, an integrated playground and parcourse area for outdoors fitness.
And if the park is not enough, there is always The Arc to go to ─ Rimbayu’s own 10,000sqm arc-shaped canopy and communal green deck for the appreciation of the beauty of nature, exercise, community bonding, play and also education.

An aerial view of The Arc with canal waterways, bridges, landscaped gardens and a very huge football field
In terms of “education”, the “lessons” that the Arc is trying to teach is about appreciating nature, self-sufficiency and sustainable living.
There are more than 50,000 trees planted at the Arc, along with palms, shrubs, vegetable and herb gardens, as well as aquatic plants and climbers. Included into this are aspects of recycling, harnessing the power of nature and minimizing wastage of natural resources.
Incorporated in The Arc are these design features:
- A Green Roof Deck which insulates and filters collected rainwater before discharging it to the canal waterways. This emulates the process of nature and provides a lesson on how the natural environment works.
- A Recreational Canal for rainwater collection so that the water can be reused for irrigating plants and vegetable gardens ̶ like the Spice Garden which grows different types of vegetables and herbs.

Left: Dramatic shadows cast by the hanging plants which provide shade as well as coolness. Centre: Flowering gardens on the roof deck with playgrounds and exercise equipment laid along the way. Right: The hanging trelisses overflow the upper or roof deck like a backdrop to the football field (Pixes from Garis Architects, designers of The Arc, photography: Steven Ngu, Andy Lim)

Left: The elevated roof deck with children’s playgrounds, exercise areas, footwalks and cycling tracks – another communal area for social activities. Right: The recreational canal is also a rainwater collection vessel that recycles water for the irrigation of plants, vegetable gardens and trees (Pixes from Garis Architects, designers of The Arc, photography: Steven Ngu, Andy Lim)
- Community Vegetable Gardens for promotion of bonding residents and educating them on the values being self-reliant, while teaching about growing and harvesting agricultural produce.
- The Canopy Walkway also allows the space below to function as a pedestrian street for shop-lots and amenities.
- The Ramp provides pedestrian access to the green roof deck that serves an upper level pedestrian network of garden paths for walking and cycling, and sports, leisure games, exercise and recreation as well as community interaction.
Location
If you’re following the Google map to Telok Panglima Garang, the address for IJM’s Bandar Rimbayu, it is likely that for all the miles you’ll be travelling, you won’t find the township there.
Maps can be confusing and if you’re not familiar with these parts, you could wind up in Banting. Or even Klang.
Telok Panglima Garang is actually in the district of Kuala Langat in Selangor but as is the case nowadays with towns growing larger or with new ones getting carved out of former oil palm plantations, boundaries inevitably merge. What was once known as Canal City (presumably referring to the irrigation canals) has now become Bandar Rimbayu, Telok Panglima Garang, located at the back of Kota Kemuning and the Kota Permai Golf Course in Shah Alam.
Bandar Rimbayu, with a landsize of 1,879 acres, is actually a township that has appeared out of nowhere, yet it is easily accessed through the KESAS Highway Exit 5068 to Kota Kemuning where it is about eight to 10km from matured Section 31 of Shah Alam.

The road can look a little desolate on the way in. Observe the remnants of the forest and plantation land on the left and right of the road

This structure at the third roundabout will announce your arrival to Bandar Rimbayu. The wordings on the structure cannot be clearly discerned in this picture but that’s probably due to the lighting. In actual fact, the signage is very clear
Bandar Rimbayu, with a landsize of 1,879 acres, is actually a township that has appeared out of nowhere, yet it is easily accessed through the KESAS Highway Exit 5068 to Kota Kemuning where it is about eight to 10km from matured Section 31 of Shah Alam.
The new section, with a long and wide road entry to Rimbayu starting at the traffic lights still at the fringes of oil palm land, is announced by a signboard that says: Section 29.

The signboard will be on your right as you return from Bandar Rimbayu heading towards Kota Kemuning. As you can see, the roads are very wide
When it was first launched in 2012, Rimbayu was slated to become one of biggest, if not the biggest, green townships in this area. Today, that plan has already materialised with Rimbayu having successfully launched 1818 units of Double Storey link Chimes, Perennia, Wisteria (Gated and Guarded), and Periwinkle (Semi-D and Bungalows Phase 3). Scarlet is currently under construction while the first phase of shop offices in Blossson Drive has already been sold out.
Blossom serviced apartments (488 units selling at less than RM450,000) and the second phase of Blossom square shop offices will be launched in 1Q2016 and at the end of the year.
All of this is in the Flora Precinct.
Penduline is in the Fauna Precinct.

This is the Bandar Rimbayu masterplan and its connection with many highways. The smaller inset 3D map shows the 4 precincts of Flora, Fauna, Bayu and the Commercial Hub
The Four Precincts
Bandar Rimbayu‘s development is planned in four designated precincts: Flora, Fauna, Bayu and Commercial Hub.
The four precincts are:
- Flora
Comprising mixed residential components, schools and recreational amenities. This precinct includes link and strata homes, condominiums and apartments. Prominent in this precinct is the “anchor” of the whole township called The Arc ─ Bandar Rimbayu’s 10,000sqm communal green space and social gathering venue to relax, play, have fun, bond and belong in a close-knit neighbourhood.
Rimbayu’s Show Gallery and 16-acre Rimbayu Club Village with swimming pools and other sports and recreational features are also located here.
- Fauna
This precinct showcases mixed residential components (from link homes to bungalow units), schools and neighbourhood shops. Within both Flora and Fauna precincts, there is available space for the creation of a quality retirement village/home.
- Bayu
This 270 acres of wetland areas will be transformed into a high-end waterfront
residences by a lake, or along the waterfront in full view of seemingly unending water vistas.
- Commercial Hub
This is the commercial centre with canal city charm, cul de sacs and walkways dispersing into town squares with plenty of F and B outlets. Part of this precinct, parallel to South Klang Valley Expressway (SKVE), raises the potential for warehouse/storage leasing by F and B suppliers, fashion apparel manufacturers, wine merchants and global courier service companies. Land parcels have been allocated for the possible development of shopping malls, big box retail and also private education institutions and medical institutions. To complement these likely commercial setups, service apartments will also be built in the Commercial Hub.
The Nearest Bustling Neighbourhood
The nearest bustling neighbourhood as mentioned above, is in Kota Kemuning about 8 to 10km away in Sections 31, 30 and so on. There, everything can be had ─ from Golf Courses to petrol stations, to eateries ranging from Mac Donalds, to Starbucks to PapaRich, plus a choice of banks from Hong Leong to RHB. There are also coffeeshops, Chinese Medicine Halls, facial, nail and slimming centres as well as grocery marts like Hero to big electronic stores and so on and so forth. Take a look.
Analysis
IJM Land Berhad is the property development arm of IJM Corporation Berhad, one of the largest construction and infrastructure groups in Malaysia. Listed on the main board of the Bursa Malaysia Berhad, IJM Land is one of the largest property developers in Malaysia with sprawling townships, boutique developments, strategically located commercial buildings, highrise and exclusive condominiums in key growth areas and East and West Malaysia.
However, it is not just building buildings but making sure that they stay true to their ethos of Bringing Life to Ordinary Spaces that makes every one of their developments leave lasting impressions and shape new lifestyles.
IJM Land was voted Top Ten Developers by The Edge for three consecutive years from 2010 to 2012 by The Edge as well as the Putra Brand Award 2013.
Moving on, here are more awards that IJM Land has won:
IJM has an impressive track record. Take a look.
Here is an analysis of prices against two other developments of two-storey homes in the same area of Telok Panglima Garang.
| Name of Project | Tenure | Price PSF | Built-Up | Launch Prices |
| Penduline Residences, Rimbayu, Telok Panglima Garang | LHold | RM356++ | 1,771sqft ─ 2,095sqft | RM625,000 |
| Terraza Villa, Bellezza Residences,Eco SanctuaryTelok Panglima Garang | LHoldstrata | RM500++ | 2,596sqft ─ 2965 qft | RM1,225,400 ─RM1,812,800 |
| Bayan Residences, Tropicana Aman, Telok Panglima Garang | LHoldstrata | RM350++ | 2428sqft ─ 2852sqft | RM858,800 ─ RM1,554,800 |
Summary
Rimbayu is a well-thought-out township filled with homes for family building, community bonding and nature appreciation. While the concept epitomises ideals, it is also made with practicality and relevance to reality, especially in our present economy.
Thus these homes are made to cater to all kinds of budgets. If one is looking for an upgrade to a large, luxurious home, there is one for you in Bandar Rimbayu. If you have a budget to adhere to, there is also one to cater for such a need too.
Penduline is a fine example of an affordable home at value-for-money prices.
Where else can one get landed property at just a little over RM300 PSF these days and still have access to amenities, conveniences and acres and acres of landscaped gardens and spaces to indulge in all manner of wholesome outdoor activities?
Rimbayu is not that far out from the matured neighbourhoods of Shah Alam, it is merely 8km away. True that the township is just beginning to take shape but soon, not that far off in the future, this will be a bustling township with all the conveniences, amenities and facilities that one could ask for at ones door step.
But strike now, while the iron is hot.
Rimbayu homes, regardless of Type and layout are definitely worth a consideration if you are planning of making a home in this area.

































