LYL DEVELOPMENT SDN BHD
Double Storey Terrace Houses in Taman Pertama Indah.
Projek baru: 2025
Rumah Teres
Bermula Daripada
RM 750,000
Harga indikatif pada 1 Feb 2025 diambil dari KPKT.
Ang. Bayaran RM 3,145 / bulanan
Semak kemampuan anda 
4 BT
4 BM
N/A
Lihat jenis dan harga unit
Tentang hartanah ini
Double Storey Terrace Houses in Taman Pertama Indah.
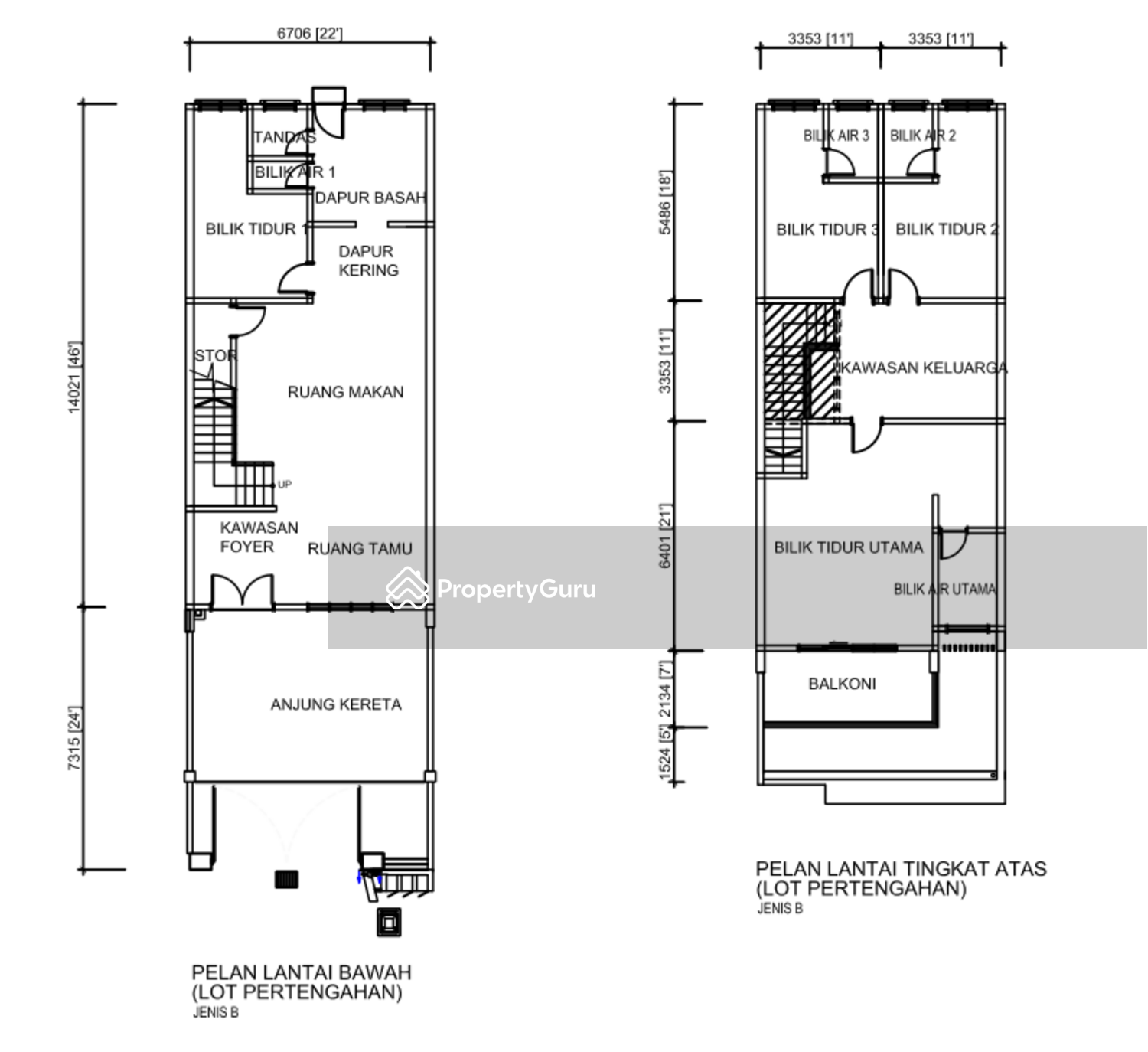
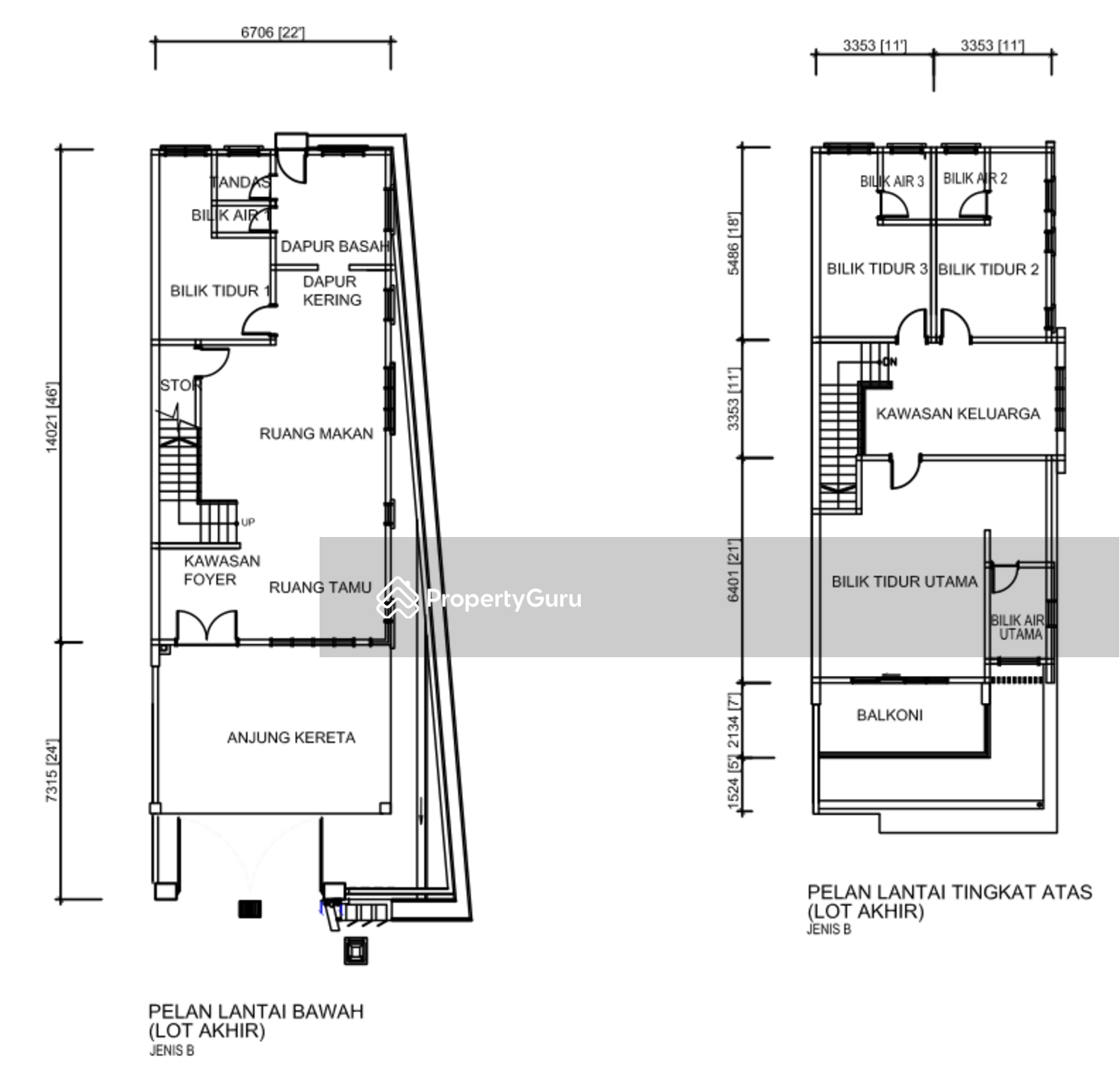
12 units of double-storey terrace houses are available at Taman Pertama Indah in Muar, Johor. The houses comprise of Type A (1 unit) and Type B (11 units). Type A features reinforced concrete frames, steel roof trusses, and concrete roof tiles. Walls are made of brick, ceilings are cement plaster or plaster ceiling without asbestos, and windows are aluminum frames with hinged and adjustable top-hung windows. Type B houses share similar specifications as Type A. Both types come with sanitary wares, including wash basins, toilets, showers, and kitchen sinks. The floor is furnished with ceramic tiles and cement. Electrical fittings include lights, power sockets, fans, television, telephone, and a doorbell. Iron gates are installed at the front, along with a 1500mm high stone fence. The driveway is made of concrete or tar, complying with local authority requirements.
Jenis Unit Yang Ada
Info harga tidak tersedia ketika ini
4
4
Mencari sesuatu seperti ini?
Ejen yang dilantik kami akan berkongsi projek-projek seumpanya dengan anda.
Terokai Pilihan Lain Di Dalam Dan Sekitar Tangkak
Berdasarkan kriteria hartanah, anda mungkin berminat dengan yang berikut
Rumah Teres Untuk Dijual
Pengangkutan awam terdekat
Sekolah Terdekat
Mencari sesuatu seperti ini?
Ejen yang dilantik kami akan berkongsi projek-projek seumpanya dengan anda.










