Rimbunan
New Cluster Homes in Johor Bahru
Projek baru: 2027
Rumah Berkembar
Bermula Daripada
RM 1,943,200
Harga indikatif pada 1 Feb 2025 diambil dari KPKT.
Ang. Bayaran RM 8,149 / bulanan
Semak kemampuan anda 
4, 5+ BT
4, 6 BM
N/A
Lihat jenis dan harga unit
Tentang hartanah ini
New Cluster Homes in Johor Bahru
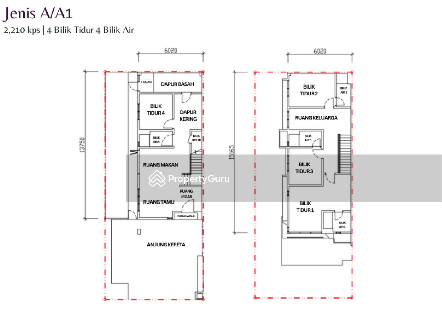
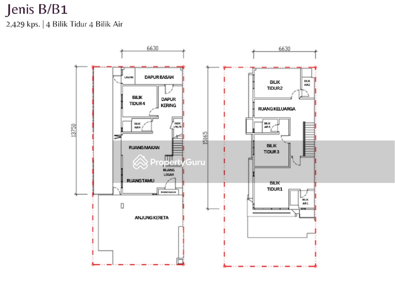
This property offers various cluster homes and bungalows. The cluster homes come in different sizes and layouts, catering to various needs. Type A/A1 offers 4 bedrooms and 4 bathrooms, spanning 2,210 sq ft, while Type B/B1 provides the same bedroom and bathroom count with a larger area of 2,429 sq ft. For larger families, Type C offers 5 bedrooms and 6 bathrooms across 3,466 sq ft. The largest option, Type D, is a bungalow with 5 bedrooms, 6 bathrooms, and a spacious 3,715 sq ft layout. The property features amenities such as tiled floors and walls, aluminum-framed windows, and various electrical and sanitary fittings. The surrounding area offers convenient access to shopping malls, golf clubs, hospitals, schools, and major highways, making it an attractive location for residents.
Jenis Unit Yang Ada
Info harga tidak tersedia ketika ini
4
4
Kemudahan bersama
Rumah kelab
PERMAS JAYA SDN. BHD.
Mencari sesuatu seperti ini?
Ejen yang dilantik kami akan berkongsi projek-projek seumpanya dengan anda.
Terokai Pilihan Lain Di Dalam Dan Sekitar Johor Bahru
Berdasarkan kriteria hartanah, anda mungkin berminat dengan yang berikut
Rumah Kluster Untuk Dijual
PERMAS JAYA SDN. BHD.
Mencari sesuatu seperti ini?
Ejen yang dilantik kami akan berkongsi projek-projek seumpanya dengan anda.