Taman Air Merah Indah
1-Storey Terrace House with 4 Bedrooms
Projek baru: 2026
Rumah Teres
Bermula Daripada
RM 318,888
Harga indikatif pada 1 Feb 2025 diambil dari KPKT.
Ang. Bayaran RM 1,337 / bulanan
Semak kemampuan anda 
4 BT
2 BM
N/A
Lihat jenis dan harga unit
Tentang hartanah ini
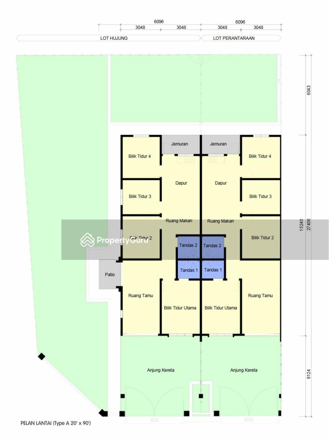
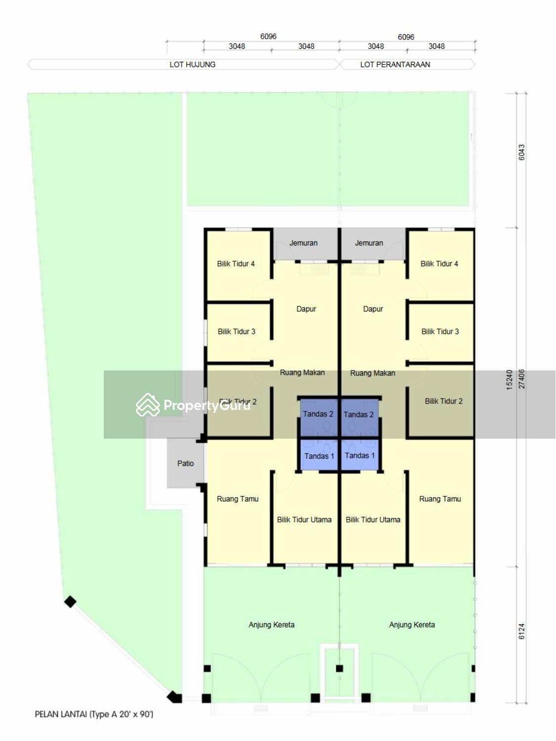
1-Storey Terrace House with 4 Bedrooms
This 1-storey terrace house features 4 bedrooms, 2 bathrooms, and a living room. The property includes a car porch, patio, and a drying area. The kitchen and dining area are adjacent, and the master bedroom is located at the back of the house. Type A is 20' x 90' and Type B is 20' x 70'. The development is expected to be completed in February 2026.
Jenis Unit Yang Ada
Info harga tidak tersedia ketika ini
4
2
Mencari sesuatu seperti ini?
Ejen yang dilantik kami akan berkongsi projek-projek seumpanya dengan anda.
Terokai Pilihan Lain Di Dalam Dan Sekitar Mersing
Berdasarkan kriteria hartanah, anda mungkin berminat dengan yang berikut
Rumah Teres Untuk Dijual
Mencari sesuatu seperti ini?
Ejen yang dilantik kami akan berkongsi projek-projek seumpanya dengan anda.











