TAMAN SERI DUYONG, SEKSYEN 1
Taman Seri Duyong: Single-Storey Terrace Homes
Projek baru: 2024
Rumah Banglo
Rumah Berkembar
Rumah Teres
Bermula Daripada
RM 268,000
Harga indikatif pada 1 Feb 2025 diambil dari KPKT.
Ang. Bayaran RM 1,123 / bulanan
Semak kemampuan anda 
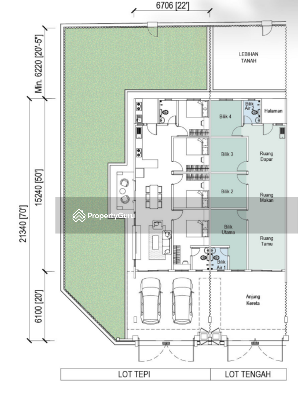
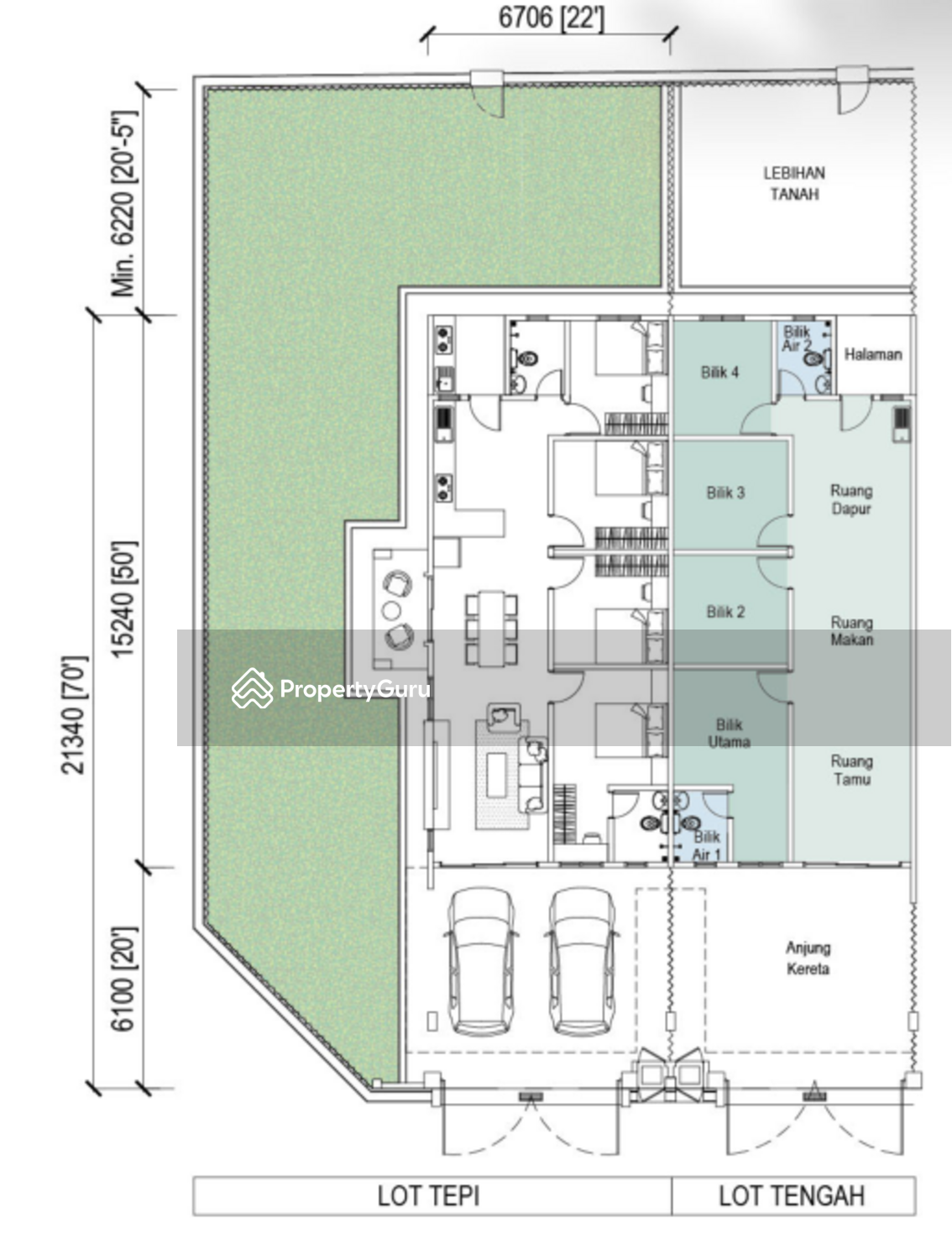
4 BT
2 BM
N/A
Lihat jenis dan harga unit
Tentang hartanah ini
Taman Seri Duyong: Single-Storey Terrace Homes
Taman Seri Duyong offers single-storey terrace, semi-detached and detached homes in a strategic location in Melaka. Enjoy convenient access to amenities such as supermarkets, restaurants, mosques, schools, banks and more.
Jenis Unit Yang Ada
Info harga tidak tersedia ketika ini
4
2
Mencari sesuatu seperti ini?
Ejen yang dilantik kami akan berkongsi projek-projek seumpanya dengan anda.
Terokai Pilihan Lain Di Dalam Dan Sekitar Ujong Pasir
Berdasarkan kriteria hartanah, anda mungkin berminat dengan yang berikut
Rumah Banglo Untuk Dijual
Sekolah Terdekat
Mencari sesuatu seperti ini?
Ejen yang dilantik kami akan berkongsi projek-projek seumpanya dengan anda.



