0 DOWN PAYMENT 2 Storey Link House 20x70 ECO MUTIARA Semenyih
LOW DENSITY PRECINCT GATE & GUARDED Jalan Eco Mutiara 2, Semenyih, Selangor
RM 535,255
Lihat ke Tawaran4
BT
3
BM
1,400
kps (tanah)
RM 382
PSF (tanah)
Tentang hartanah ini
Mark Up Loan for Cover the Down Payment and Legal fee,near Expressway.
2 STOREY LINK HOUSE for SALE!
FREEHOLD RESIDENTIAL and STRATEGIC LOCATION in Semenyih
Follow TengDaRealty on Youtube Channel
+6010 . 2552 . 052 / +6018 . 2828 . 814
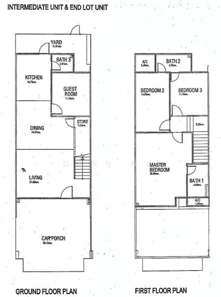
~4 Rooms 3 Baths
~Built-Up: 1581sf @ Land 20x70
~FREEHOLD Individual Title
~Nice FENG SHUI facing South
~Nice FENG SHUI house number
~Gate and Guarded Service
~Near TENBY INTERNATIONAL SCHOOL
~Near ECOHILL TAIPAN ECOHILL WALK MALL
**MARK UP LOAN FOR COVER DOWNPAYMENT
Freehold Double Storey Terrace
Freehold landed property with strong long-term value.
Newly Completed Township
Modern residential area with newly completed houses and growing community.
Strategic Location – Semenyih Growth Area
Located near EcoHill & Eco Majestic township.
Easy Access to Highways
Quick access to LEKAS Highway & SILK Highway to Kajang, Cheras and KL.
Nearby Amenities
Near AEON Mall EcoHill, Econsave Semenyih, schools and Nottingham University.
Please Call DANN / DANIEL NG for more info
+6010 . 2552 . 052 / +6018 . 2828 . 814
Find out more YouTube Video on~ #TengDaRealty
#TengDaRealtyResources #DannNg #DanielNg
#LowPriceTerraceHouse #EcoMutiaraSemenyih
#TenbyInternationalSchoolSemenyih #Semenyih
#Club360SetiaEcohill #EcohillWalk #EcohillTaipan
#EcoMajestic #LandedSpecialist #LandedKing
*~*HAVE A NICE DAY*~*
FREEHOLD RESIDENTIAL and STRATEGIC LOCATION in Semenyih
Follow TengDaRealty on Youtube Channel
+6010 . 2552 . 052 / +6018 . 2828 . 814
~4 Rooms 3 Baths
~Built-Up: 1581sf @ Land 20x70
~FREEHOLD Individual Title
~Nice FENG SHUI facing South
~Nice FENG SHUI house number
~Gate and Guarded Service
~Near TENBY INTERNATIONAL SCHOOL
~Near ECOHILL TAIPAN ECOHILL WALK MALL
**MARK UP LOAN FOR COVER DOWNPAYMENT
Freehold Double Storey Terrace
Freehold landed property with strong long-term value.
Newly Completed Township
Modern residential area with newly completed houses and growing community.
Strategic Location – Semenyih Growth Area
Located near EcoHill & Eco Majestic township.
Easy Access to Highways
Quick access to LEKAS Highway & SILK Highway to Kajang, Cheras and KL.
Nearby Amenities
Near AEON Mall EcoHill, Econsave Semenyih, schools and Nottingham University.
Please Call DANN / DANIEL NG for more info
+6010 . 2552 . 052 / +6018 . 2828 . 814
Find out more YouTube Video on~ #TengDaRealty
#TengDaRealtyResources #DannNg #DanielNg
#LowPriceTerraceHouse #EcoMutiaraSemenyih
#TenbyInternationalSchoolSemenyih #Semenyih
#Club360SetiaEcohill #EcohillWalk #EcohillTaipan
#EcoMajestic #LandedSpecialist #LandedKing
*~*HAVE A NICE DAY*~*
Kemudahan
Security guard
Kemudahan bersama
Keselamatan 24 jam
Kemampuan
Mampukah saya membeli hartanah ini?
Beritahu kami pendapatan dan perbelanjaan bulanan anda untuk melihat sama ada rumah ini sesuai dengan bajet anda.
Perincian Pinjaman Gadai Janji
Anggaran Bayaran Balik Bulanan
RM 0 / bulanan
RM 0 Prinsipal
RM 0 Faedah
Kos Pendahuluan
Jumlah Bayaran Pendahuluan
RM 0
Bayaran Pendahuluan
RM 0 Jumlah Pinjaman dari 0% nilai pinjaman
Soalan Lazim
Seunit di Semenyih, Selangor dijual pada harga RM 535,255.
Ya (Keselamatan 24 jam).
LOW DENSITY PRECINCT GATE & GUARDED Jalan Eco Mutiara 2, Semenyih, Selangor.
Anggaran bayaran bulanan pinjaman ialah RM 2,244 / bulanan.
Tarikh siap adalah pada 2022.
Terokai Pilihan Lain Di Dalam Dan Sekitar Semenyih
Berdasarkan kriteria hartanah, anda mungkin berminat dengan yang berikut
Rumah Teres 2 Tingkat Untuk Dijual
Pengangkutan awam terdekat
Sekolah Terdekat











