Ayer Keroh Eco Park
Jalan Eco 2, Ayer Keroh, Melaka
RM 1,300,000
4
BM
3,000
kps (lantai)
RM 433
PSF (lantai)
Tentang hartanah ini
Ayer Keroh Eco Park Terrace Factory For Sales
Property Details :
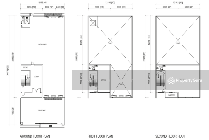
Terrace Link Factory
- Land Size : 40 x 100
- Built Up : 40 x 75
- 3 Phase Electricity 63 Amp
Loading Weight :
Ground Floor 5 kn/m2
Mezzanine Floor 2.5 kn/m2
1st Floor 2.5 kn/m2
Ceiling Heights
Office :
Ground 10 ft
First 10 ft
Second 15 ft
Highest 29 ft
CCC During 2024
Only 2 Direction : North East / South West
Asking Price : RM 1,300,000
Area Specialist : Alvin Chan +6*****
Terrace Link Factory
- Land Size : 40 x 100
- Built Up : 40 x 75
- 3 Phase Electricity 63 Amp
Loading Weight :
Ground Floor 5 kn/m2
Mezzanine Floor 2.5 kn/m2
1st Floor 2.5 kn/m2
Ceiling Heights
Office :
Ground 10 ft
First 10 ft
Second 15 ft
Highest 29 ft
CCC During 2024
Only 2 Direction : North East / South West
Asking Price : RM 1,300,000
Area Specialist : Alvin Chan +6*****
Kemudahan
Meeting room
Anggaran Pinjaman Gadai Janji
Perincian Pinjaman Gadai Janji
Anggaran Bayaran Balik Bulanan
RM 0 / bulanan
RM 0 Prinsipal
RM 0 Faedah
Kos Pendahuluan
Jumlah Bayaran Pendahuluan
RM 0
Bayaran Pendahuluan
RM 0 Jumlah Pinjaman dari 0% nilai pinjaman
Soalan Lazim
Seunit di Ayer Keroh, Melaka dijual pada harga RM 1,300,000.
Tidak.
Jalan Eco 2, Ayer Keroh, Melaka.
Anggaran bayaran bulanan pinjaman ialah RM 5,585 / bulanan.
Tarikh siap adalah pada 2024.
Terokai Pilihan Lain Di Dalam Dan Sekitar Ayer Keroh
Berdasarkan kriteria hartanah, anda mungkin berminat dengan yang berikut
Kilang Untuk Dijual










