Eco Business Park 1
Jalan Ekoperniagaan 1/5, Taman Perniagaan Setia, Johor Bahru, Johor
RM 3,180,000
Boleh dirunding0
BM
9,188
kps (lantai)
RM 346
PSF (lantai)
Tentang hartanah ini
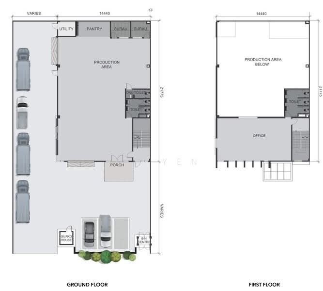
For Sales - Cluster Factory@Eco Business Park 1
-Phase 1
-Build up 9188 sqft
-Land size : 70x120
-Extension mbjb approval plan
-Freehold
-Non Bumi
-Intermediate lot
-150Amp Power supply
-Floor Loading : 10kN/m2
-Ceiling height 8m
-24 hours Gated and Guarded
-Asking : RM3.18mil nego
Real Estate Negotiator
Project Manager
CBD Properties
Mr.CM.Yen +6*****
www.h*****
Kemudahan
Akses 24 jam
Covered car parking
Security guard
Kemudahan bersama
Eateries
Keselamatan 24 jam
Parkir
Perimeter pagar
Anggaran Pinjaman Gadai Janji
Eco Business Park 1

Eco Business Park 1 is a factory under Industrial park project, located in such a place, which is by the way, is one of the major towns, Johor Bahru , being also important for its wonderful nature friendly location for being the last rest stop before heading on to the Endau Rompin National Park, which is located in Johor, residing in one of the thirteen states in Malaysia located at the southern-most portion of Peninsular Malaysia. This lavish designed project has been developed by one of the reputed developers of Malaysia, Eco World Development Group Berhad. The strategic wonderful location of this prestigious establishment, being located to wonderful location of Johor Bahru, which is fortified with the residential hubs along with various modernized facilities and strong transportation system in this property area, makes this development a special establishment.The Eco Business Park 1 is located strategically in the place of Johor Bahru, famous area for its for being the last rest stop before heading on to the Endau Rompin National Park, is however, is also an up growing area in this region, a dynamic combination of urban establishments and nature along with a handful number of modernized facilities available in this property area. This is the second phase of the luxurious project. Besides, a handsome number of luxurious facilities available in the surrounding areas make this property an important establishment indeed. Moreover this project has been equipped with modernized security system which is normally not noticed in regular establishments in these days.Eco Business Park 1 is also unique for its premier location as being connected to different parts of Johor. It’s positioned so nicely that makes it highly accessible to different busy and important areas through North-South Expressway (NSE), Eastern Dispersal Link(EDL), Pasir Gudang Highway, Johor-Singapore Second Link Expressway and Senai-Desaru Highway, which can lead to different directions like city centre and the major locations of in this region, which is located only few minutes away from this establishment. Besides these, Eco Business Park 1 strategic location positions it in proximity to major ports, airports, railways and highways, providing you with a fantastic logistic advantage that greatly lowers your resource usage, transportation time, impact on the environment, and ultimately, your operating costs. Moreover, this development has been surrounded by a good number of modern and luxurious amenities like exclusive restaurants, banks, fast-food outlets, schools, entertainment outlets and other shopping outlets and so on. Reputed educational institutes like Bandar Uda 2 National School, Bandar Baru Uda Secondary School and Foon Yew 2 Chinese Primary School are located within short driving distance from this area. For shoppers, this place attracts because of closely situated a number of shopping complexes like Plaza Angsana and Giant Tampoi, from where daily necessaries can be purchased easily. Apart from it, Johor Specialist Hospital is located within short driving distance to ensure medical facilities in this region.Eco Business Park 1 featured a handful number of standardized facilities for the residents including covered parking lots and so on. Moreover, this property has been equipped with 24X7 guarded securities system which makes the property an ultra-modern secured zone to live with.The elegant establishment is being designed with several blocks consisting of 2-storey buildings which comprises of a good number of industrial units in its occupied land area of 612 acres. This luxurious industrial establishment has been being built up with the size ranging from 4,878 square feet onwards. The total price of the units range from RM1,988,000 onwards and the price per square feet is RM408 onwards, which makes this property available and affordable to high income groups and business persons in this region.This luxurious project is expected to finish by the end of the year of 2019. The average total price range from RM1,988,000 onwards and the price per square feet is RM408 onwards, which is a comparative price compared to adjacent properties like Greenfield Regency, Tropez Residences, Seasons Luxury Apartments, Palazio and other related establishments.Another similar project is Eco Terraces, Eco Summer and The Parque Residences@ Telok Panglima Garang. which is developed by the same developer at Paya Terubong of Penang. There are some other projects this area like Greenfield Regency, Tropez Residences, Seasons Luxury Apartments, Palazio and D’Ambience which are worth checking.
Lihat butiran projek

















