The Enclave @ Bukit Jelutong
Persiaran Gerbang Utana, Bukit Jelutong, Shah Alam, Selangor
RM 5,900,000
6+1
BT
9
BM
11,636
kps (tanah)
RM 507
PSF (tanah)
Tentang hartanah ini
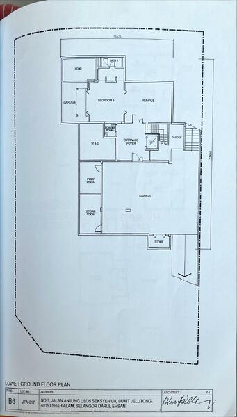
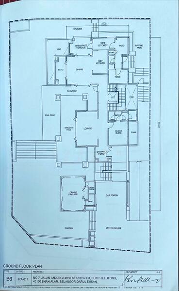
Primo 1 Corner 3-Storey Bungalow @ The Enclave Bukit Jelutong
* Corner unit
* Freehold, gated & guarded
* Land size: 11,636 sf
* Built-up: ~8,500 sf
* 6 bedrooms | 9 bathrooms
* Partly furnished
* Fully renovated & well maintained
Key Features:
* Private swimming pool & lift
* Entertainment room
* Wet & dry kitchen
* Beautiful landscaped garden
* Outdoor patio & lounge area
* Solar power with TNB buy-back system
* Facing North-East
Asking Price: RM 5.9 Million
Kemudahan
Air conditioner
Balkoni
Pemanas air
Security guard
Kemudahan bersama
Kedai serbaneka
Keselamatan 24 jam
Parkir
Perimeter pagar
Kemampuan
Beritahu kami pendapatan dan perbelanjaan bulanan anda untuk melihat sama ada rumah ini sesuai dengan bajet anda.
The Enclave @ Bukit Jelutong
Updated: 22nd January 2021 The Enclave @ Bukit Jelutong is a project developed within a protected area for low-density freehold vacant bungalow lots. Sime Darby Property – Bukit Jelutong, a subsidiary of Sime Darby Property Berhad, developed this exclusive region with a landscaped environment in Bukit Jelutong, Shah Alam, Selangor. With the beautiful and calm environment, homeowners can enjoy the peaceful feeling that comes with living in a completely developed community with its lovely homes and ample landscaping. To make your home a masterpiece, The Enclave @ Bukit Jelutong is a green canvas where you can design your dream home. This exclusive community in The Enclave also offers convenient access to the nearby highway accessibilities such as the New Klang Valley Expressway (NKVE), The North-South Expressway Central Link (ELITE), Shah Alam Expressway (KESAS) and Guthrie Corridor Expressway (GCE). Residents can also enjoy public transportation such as buses in close vicinity. The bus stations are located at Plaza Jelutong, SK Bukit Jelutong and Komersial Bukit Jelutong. Currently, only a limited number of 24 empty bungalow lands are available for sale. The land area of each bungalow lot at The Enclave from 15,423 sq ft to 37,696 sq ft. Owing to the abundance of schools nearby, the parents of school-aged children have no issue looking for a decent education. There are many schools encompassing The Enclave including private and international schools as well as colleges and universities. Some of the schools are SMK Bukit Jelutong, SK Bukit Jelutong, Global Oak Tree Scholars International Secondary School and Greenview Education Centre. The tertiary education centres nearby include Kolej Universiti Teknologi & Pengurusan and Management & Science University (MSU). To access medical care services and treatments, there are a few government and private hospitals as well as clinics available in The Enclave @ Bukit Jelutong that makes it convenient for the residents. nearby hospitals include Hospital Umra and Ara Damansara Medical Centre which can offer comprehensive medical checkup. The nearby clinics are Klinik Bukit Jelutong, Klinik Menara Bukit Jelutong and Qualitas Health Klinik Sunsuria for normal medical advice. Strategically situated in Shah Alam, The Enclave is located where there are many choices of shopping centres such as Main Entrance Plaza Jelutong and SACC Mall to visit. For those who are living here, they also can drop by mini markets, and grocery stores like 99 Speedmart 1604 Bukit Jelutong 3 or Jaya Grocer Bukit Jelutong, to buy their food as well as regular essential products. In The Enclave @ Bukit Jelutong, a range of restaurants and eateries at affordable prices are located nearby, offering a wide variety of food options. Some restaurants that the residents might enjoy are Nasi Dagang Yus Kitchen, Ombak Kitchen Bukit Jelutong, One Serambi Café and Baqara Fine Meat. These restaurants are only approximately a 5 to 10-minute drive away by car. For recreation, Panahub, Denai Larian Bukit Jelutong and Bukit Jelutong Recreation Park are excellent choice to have fun and unwind. Located a short distance away, there are also quite a few tourist attractions such as Shah Alam Extreme Park, Setia Alam Community Trail Head and Shah Alam Theatre which the residents can visit anytime for some leisure and sightseeing. As one of the most populated cities, there are a variety of job options offered in Shah Alam, making it a perfect location for trained professionals and young people. Sime Darby Property – Bukit Jelutong is a subsidiary of Sime Darby Property Berhad which has to date developed 23 active townships where many generations of Malaysians live, work and play in areas that are environmentally sensitive and assisted by comprehensive facilities and infrastructure, based on a strong 45-year track record of creating sustainable communities. The launching price for bungalow lots starts from 2.23 million. For those who are interested, with a 3.60% interest rate, a 35-year maturity term and minus a 10% down payment, the annual repayment is estimated to be from about RM 8,394 a month. From the list of properties, you can also find other similar projects at the same price point. Since there are only 4 units per acre in this development area, this makes the environment very low density with good resale properties. The The Enclave @ Bukit Jelutong lots for sale are on the pricier side hence targeting a more affluent group of people. Prospective investors can build a beautiful bungalow, designed with amazing architecture and then can put it up for sales or even for rent to make a profit.
Lihat butiran projek

































