The Peak Residences, Tanjung Tokong, Penang

  • Pavither
  • 29 March 2021

The Peak Residences is positioned as the most affordable lifestyle high-end condominium in the Tanjong Tokong area.

One of its exclusive features is a private garden that complements every Garden, Executive and Penthouse suite. It is marketed as not just a home, but a lifestyle with every amenity, amazing view, and extraordinary high-rise living.

ZPPHO.95764193.R800X800

The Peak Residences is developed by Ivory Villas Sdn Bhd, a subsidiary of the Ivory Properties Group. They introduced the first phase in the first quarter of 2010. This freehold project is located at the foot of Mount Erskine. It is a 13.7-acre project with a gross development value (GDV) of approximately RM499.9 million.

There are 609 condominium units, and the project did well as it was 90% sold even before its official launch in the third quarter of 2010. About 65% of its foundation work was also completed prior to the official launch. The developer attributed the brisk sales to its affordable pricing of about RM334 per sq ft, and its location in Tanjung Tokong.

Loh attributed the Peak Residences’ brisk sales to its affordable pricing at RM334 per sq ft and its strategic location in Tanjung Tokong.

ZPPHO.125978675.R800X800

Address: Off Jalan Mount Erskine, Tanjung Tokong, 10470 Penang

Developer: Ivory Villas Sdn Bhd (subsidiary of Ivory Properties Group Sdn Bhd)

Property Type: Condominium

Land Area: 13.7 acres

Land Title:

No. of Blocks: 3

No. of Storeys: 38

Total Units: 609 (203 units per block)

Tenure: Freehold

Year of Completion: 2011

Built-up Area: 1,000 sq ft – 3,850 sq ft

Facilities:

Roof top garden

  • Viewing spot area
  • Seating and relaxing area
  • Outdoor library
  • Water features
  • 4 seasons garden

Level 6 facilities floor

  • Children’s play area
  • Clubhouse
  • Wading pool
  • Swimming pool
  • Jacuzzi
  • Reflexology path
  • Barbeque pit
  • Timber sun deck
  • Cascading waterfall
  • 4 seasons garden

Ground level

  • Control centre
  • Outdoor exercise station
  • Seating
  • Jogging path
  • Pocket garden / green area
  • Drop-off zone

Launch Price: From approx. RM300,000 to RM1.8 million

Launch Price Per Sq Ft: RM334 per sq ft

Maintenance Fee: RM0.20 per sq ft

Project Details

The Peak Residences is located along Lebuh Halia 1, Off Jalan Mount Erskine in Tanjung Tokong. This property comprises three 38-storey blocks housing 609 condominium units, with built-up areas ranging from 1,000 sq ft to 3,850 sq ft.

One of its key features is a private garden for every Garden, Executive and Penthouse suite. The launch price was from approximately RM300,000 to RM1.8 million.

the-peak-executive-garden

the-peak-balcony the-peak-executive-suite the-peak-lanai the-peak-penthouse

Nestled within the valley of Mount Erskine (500 feet above sea level), The Peak Residences’ residents enjoy a magnificent view from the 20,000 sq ft rooftop garden.

The project’s facilities also include 4 seasons gardens, reflexology path, barbeque area, swimming pool, wading pool, jogging path, children’s play area, clubhouse with facilities, outdoor exercise station, and jacuzzi, among many others. It also has 24-hour security with guards and a control centre. 

Suites

Details

Typical Balcony Suite

·       1,000 sq ft

·       3 bedrooms

·       2 bathrooms

·       1 balcony

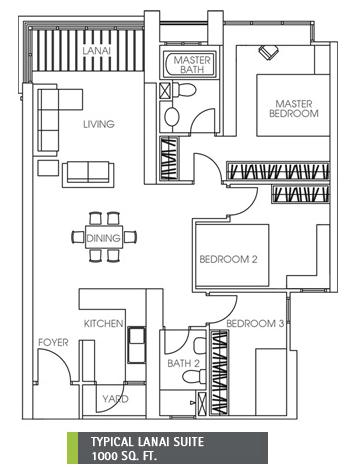
Typical Lanai Suite

·       1,000 sq ft

·       3 bedrooms

·       2 bathrooms

·       1 lanai

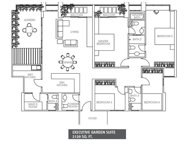
Executive Garden Suite

·       2,210 sq ft

·       4 bedrooms

·       3 bathrooms

·       1 maid’s room + bathroom

·       1 powder room + bathroom

·       Garden

·        2 balconies

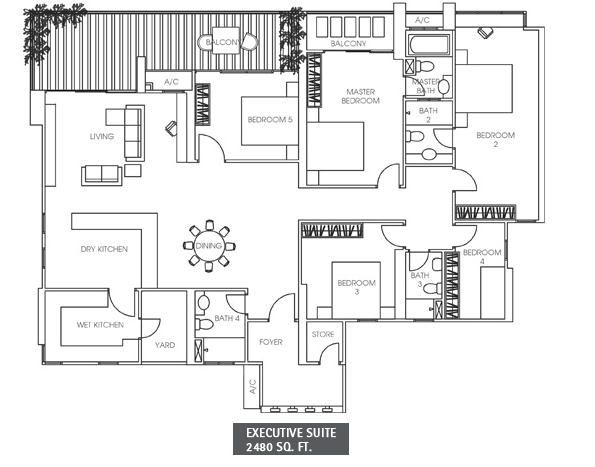
Executive Suite

·       2,480 sq ft

·       5 bedrooms

·       4 bathrooms

·       1 store room

·       2 balconies

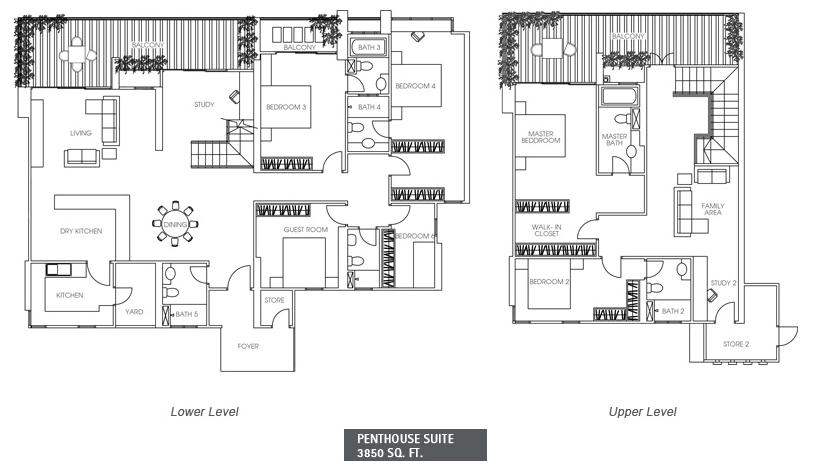
Penthouse Suite

·       3,850 sq ft

 

Lower level

·       3 bedrooms

·       4 bathrooms

·       1 guest room

·       1 store room

·       Study area

·       2 balconies

 

Upper level

·       2 bedrooms

·       2 bathrooms

·       Study area

·       1 store room

·       1 balcony

Show More

Location

The Peak Residences is located within a short 5-minute drive to Fettes Park, Tanjung Tokong, and Gurney Drive.

map

This means that there are plenty of amenities close to The Peak Residences, such as Island Plaza Shopping Centre, Gurney Plaza, Chinese Swimming Club, Dalat International School, grocery stores, wet market, banks, clinics, pharmacies, shops, restaurants, the beach, petrol stations, and of course, the hawker centres along Gurney Drive.

The Peak Residences is accessible via several major roads, namely Jalan Tanjong Tokong, Jalan Fettes, and Jalan Lembah Permai. Plus, Lebuh Halia 1 is connected to Lebuhraya Halia via other main roads namely, Jalan Gottlieb, Jalan Mount, and Jalan Burmah. The Peak Residences also provides residents with a scenic coastal view of the straits channel.

ZPPHO.95764188.R800X800

Accessibility

  • Lebuh Halia 1
  • Lebuhraya Halia
  • Jalan Tanjong Tokong
  • Jalan Fettes
  • Jalan Lembah Permai 

Education

  • Dalat International School
  • Education Institute Complex
  • Kumon Tanjung Tokong
  • SMK Tanjong Bunga

Medical Care

  • Penang Adventist Hospital

Shopping

  • Island Plaza Shopping Centre
  • Gurney Plaza
  • 1-Stop Midlands Park Centre
  • Tesco Tanjung Pinang
  • Straits Quay Marina Mall

Recreation

  • Chinese Swimming Club
  • Straits Quay Convention Centre 
  • Penang Performing Arts Centre
Show More

Analysis

In some forums, The Peak Residences was heavily compared with another project, The Tamarind. There are both pros and cons as always.

Some opine that The Tamarind is built in a “tsunami” area, while The Peak Residences is on cemetery land. There were also concerns of defects and leakages for The Peak Residences, but some highlighted that defects are expected in all properties. So, it can go on and on, depending on which side one is on.

ZPPHO.95764187.R800X800

There were some who were also waiting for prices of The Peak Residences to stabilise after its peak pricing. However, with more projects coming up in the area, and project such as monorail stations in Tanjung Tokong and Gurney Wharf, these are indications of the area’s growing popularity.

The monorail is a plus point for residents as they can drive to the station (about 15 minutes’ away) and park their car there, and then catch the monorail to Komtar or other destinations.

The sale price of a 1,000 sq ft unit listed on PropertyGuru in March 2021 is from RM490,000 to RM650,000. Meanwhile, rent is between RM1,300 and RM1,600 per month. Based on these figures, the approximate gross rental yield is as below:

  • Purchase price: RM530,000
  • Rent out: RM1,400 per month
  • Gross rental yield: About 16% per annum

Here’s a look at residential properties in or near Tanjung Tokong.

Project

Land Tenure

Property Type

Completion

Built-up

Approximate Launch Price

The Peak Residences by Ivory Properties Group

Freehold

Condominium

2011

1,000 sq ft – 3,850 sq ft

From RM300,000

Quayside by Eastern & Oriental Berhad

Freehold

Condominium

2013

1,137 sq ft – 7,000 sq ft

From RM929,000

Mira Residence by BSG Property

Freehold

Condominium

2016

1,352 sq ft – 3,642 sq ft

From RM957,000

Mont Residence by VST Group

Freehold

Condominium

2018

1,226 sq ft

From RM1 million

The Tamarind @ Seri Tanjung Pinang by Eastern & Oriental Berhad

Freehold

Executive Apartments

2019

1,042 sq ft – 1,372 sq ft

From RM600,000

The Clovers by Asia Green Group

Freehold

Condominium

2017

776 sq ft – 2,907 sq ft

From RM638,000

Skyridge Garden @ Tanjung Tokong by OHM Group 

Freehold

Condominium

2018

1,450 sq ft – 2,335 sq ft

From RM712,000

i-Santorini by Ideal Property Group

Leasehold

Condominium

2019

850 sq ft

From RM430,000

Show More

Summary

Among some completed projects by Ivory Properties Group are Tropicana Bay Residences in Bayan Mutiara, City Residence & City Mall in Tanjung Tokong, The Latitude (condo) in Tanjung Tokong, Zen @ The View in Batu Uban, 10 Island Resort in Batu Ferringhi, Tanjung Park in Tanjung Tokong, Taman Bukit Erskine, and several others.

ZPPHO.95764191.R800X800

As for ongoing and upcoming projects, the group is working on The Wave (integrated) at Penang Times Square, Island Resort Bungalow in Batu Ferringhi, Penang Times Square in George Town, Penang World City in Bayan Mutiara, Grand Connaught in Cheras, and Avenue 8 Residence (mixed-use) in Sungai Besi, KL.

If you’re interested in a 1,000 sq ft unit at The Peak Residences that’s priced at RM530,000, here are its estimated loan figures.

  • LTV / margin of finance: 90%
  • Down payment (10%): RM53,000
  • Loan amount: RM477,000
  • Loan term: 30 years
  • Interest rate: 3.2%
  • Monthly repayment: RM2,063
  • Approximate required gross annual income: RM83,000*

Hey, you can use these calculators to adjust the loan numbers accordingly.

* Assumptions: No other monthly debt obligations, and 30% of your gross income will be allocated for the housing loan. As a rule of thumb, banks usually loan up to 30% of your gross annual income.

Home loan basics: Know your Debt Service Ratio (DSR)!

DSR is a method used by banks in Malaysia to calculate whether you can afford the loan you’re applying for. To calculate your Debt Service Ratio (DSR), refer to the FREE PropertyGuru Home Loan Pre-Approval tool. It has a 99.9% accuracy, which greatly helps in avoiding loan rejections.

 

Want to read more reviews of properties in Penang? Click here.

Show More
Eric Wong

Pavither