Why we recommend 26' x 80' Terrace Factory - Alam Perdana Industrial Park
Ready Infrastructure with water and electrical provision
Expansive access road with contributing logistic efficiency
Strategic Location
200ft Wide Frontage Facing Main Road
About this property
Take Your Business To New Heights
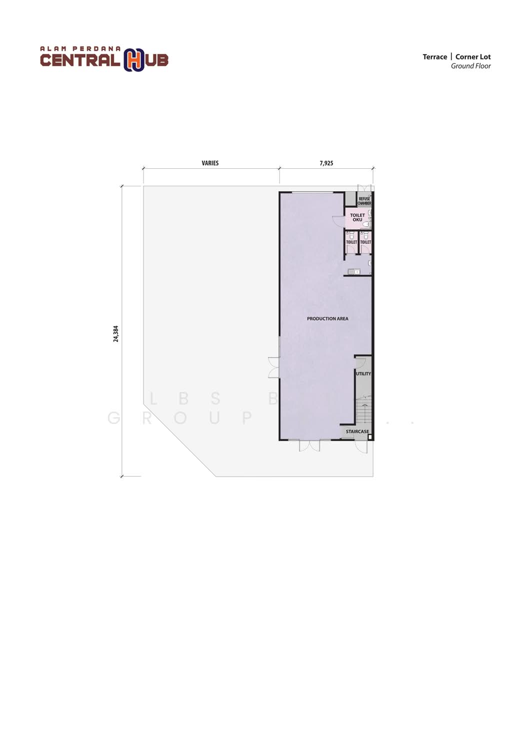
Introducing a strategically designed 26' x 80' terrace factory, crafted for businesses ready to scale with confidence. With a built-up of 3,093 sq. ft., its dual-purpose layout seamlessly supports both industrial operations and commercial fronting, offering maximum flexibility for evolving business needs. Positioned just by the 200 ft wide frontage facing the main road, it delivers exceptional visibility and brand exposure, a rare advantage for businesses seeking both functionality and presence. Nestled within a thriving industrial park, it benefits from a well-established cluster ecosystem that enhances operational synergy and growth opportunities, further supported by multiple ingress and egress points for smooth accessibility and logistics flow. Ideal for growing enterprises and forward-thinking investors, this terrace factory presents a powerful combination of scale, flexibility, and long-term value. Visit our website today to find out more.
Common facilities
Parking
Estimated Mortgage
Mortgage breakdown
Est. monthly repayment
RM 0/ mo
RM 0 Principal
RM 0 Interest
Upfront costs
Total downpayment
RM 0
Downpayment
RM 0 Loan amount at 0% Loan-to-value
WhatsAppEnquire Now
I confirm that I have read the privacy policy and allow my information to be shared with this developer who may contact me later.
I confirm that I have read the privacy policy and allow my information to be shared with this developer who may contact me later.
Explore other options in and around Bandar Baru Puncak Alam
Based on the property criteria, you might be interested on the following
WhatsAppEnquire Now
I confirm that I have read the privacy policy and allow my information to be shared with this developer who may contact me later.
I confirm that I have read the privacy policy and allow my information to be shared with this developer who may contact me later.







