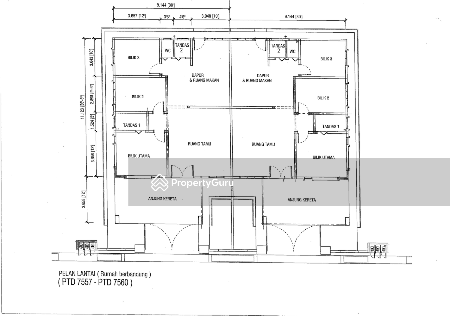
TAMAN SERI ANGGUN
Rumah Berkembar Satu Tingkat
Semi-Detached House
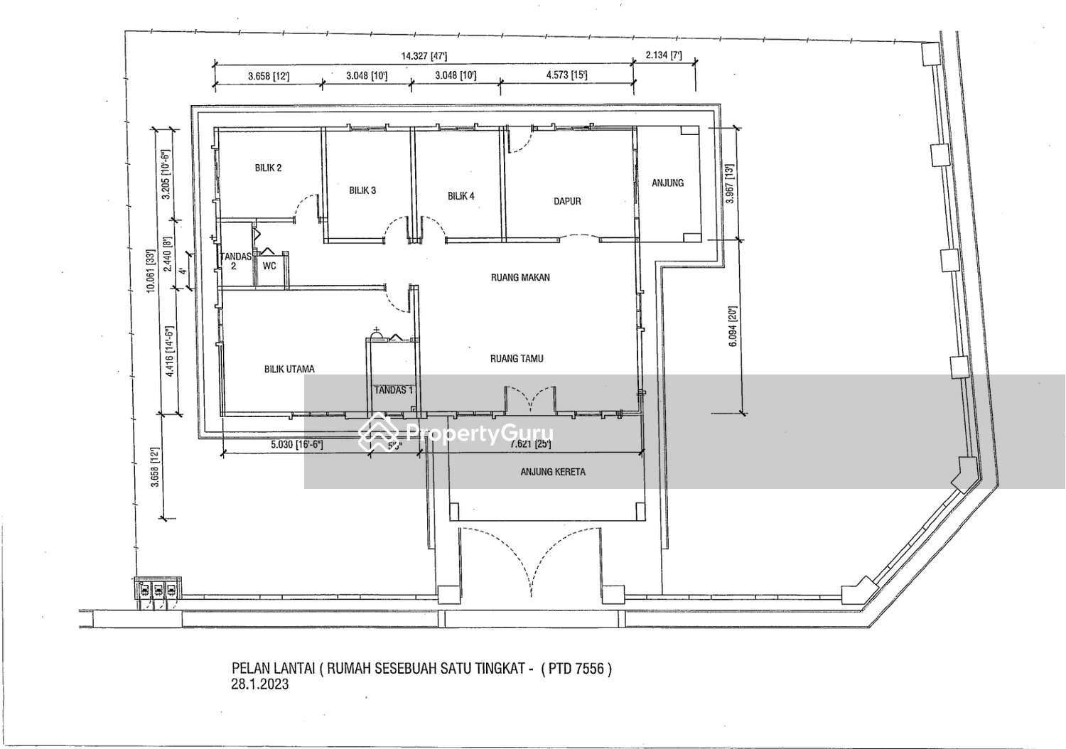
Bungalow House
Starting from
RM 430,000
Indicative price as of 1 Feb 2025 taken from KPKT.
Est. Repayment RM 1,803/ mo
Check your eligibility 
3, 4 bed
2 bath
N/A
See Unit Types and Prices
About this property
Rumah Berkembar Satu Tingkat
This document outlines a proposed housing development project in Mukim Parit Bakar, Daerah Muar. It includes details about the developer, Sublime Projects SDN. BHD., and their contact information. The document also provides a site plan for Lot 737, showcasing a mix of single and semi-detached houses. Additionally, it specifies the building materials and finishes for both types of houses. However, crucial information like the completion date, tenure, and pricing is missing from this document.
Available Unit Types
Price information is currently unavailable
3
2
Explore other options in and around Muar
Based on the property criteria, you might be interested on the following
Bungalow For Sale










