• Arul
  • 17 January 2016

Berinda - Molek Pine enclave in Taman Molek (RS)

 

Molek Pine 4 is the epitome of luxury living in Johor Bahru. As the latest addition to the prestigious Molek Pine 1, 2 and 3 luxury apartments, select your Tower 4 residence from the 37 storeys of high rise apartments. Ownership offers you the opportunity to savour the very best things in life and the best of Johor Bahru at your doorstep. 260 units at RM700 per square feet with a Maintenance fee of no more than 0.38 sen per square feet you can be sure a safe high-end homestead incomparable to many like it in this is part of Johor Bahru. Taman Molek Pine Residences is a development by Berinda Properties Sdn Bhd a subsidiary of Kuok Brothers Sdn Bhd.

 

Project Name : Molek Pine 4
Address : Molek Pine 4, Jalan Molek 1/27, Taman Molek, 81100 Johor Bahru, Johor, Malaysia
Developer : Tanjung Bintang Sdn Bhd (152333-X)
Developer’s Address : Berinda Properties, Level 32, Johor Bahru City Square(Office Tower),
  106-108, Jalan Wong Ah Fook, 80000 Johor Bahru, Johor
  Phone – +607-2211 989 | Fax – +607-222 1989 | E-mail – sales@berinda.com
Sales Gallery : Berinda Properties, Persiaran Bumi Hijau, 81100 Johor Bahru, Johor, Malaysia
  Phone – +607 226 5989 | E-mail – sales@berinda.com
Property Type : High-Rise Apartment
Land Title : Residential
Tenure : Freehold
Land Area : 6.24 acres
No of Towers : 1
No of Storeys : 37
Total Number of Units : 260
Units Per Floor : 8 units per floor
No of Lifts : 4 lifts
Parking Bays : 2 parking bays per unit – 520 parking bays in total
Price per sq.ft. : Average RM 700 per sq.ft.
Listing Price : RM 944,000.00 – RM 4,777,000.00
Maintenance Fee : RM 0.38 per sq.ft.
Expected TOP : Completed and Ready for Sale – 40 units left

 

Unique Selling Points:

  • State-of-the-art technological facilities
  • Radio Frequency Identification (RFID)
  • 2-way audio intercom
  • Security access card system
  • 24-hour security
  • CCTV
  • Fibre optic high speed broadband telecommunication
  • SMATV (with Astro High Definition capability)
  • 4-tier security=, which includes:
    • Tier 1 : Sensor Access System at the barrier gates of the main entrance and exit.
    • Tier 2 : Sensor Access System at the barrier gates of the basement car park entrance.
    • Tier 3 : Security Access Card to the lift lobby via car park, and CCTV monitoring system for all entrances, exits and lift lobbies.
    • Tier 4 : Lift access to specific levels via smart card reader
  • 15 mins. drive to city centre & CIQ Complex (Custom, Immigration & Quarantine)
  • 10 mins. drive to Sunway College & 20 mins. drive to education hub with 3 universities and 2 colleges, including a Japanese School
  • 10 mins. Drive to Sultan Ismail Hospital
  • 20 mins. Drive to Regency Specialist Hospital
  • Close to convenient amenities : 7-Eleven, Guardian Pharmacy, Watsons, Spa & Foot Massage, Restaurants etc
  • Close to retail centres: Carrefour, Tesco, Giant Hypermarket & Jusco Tebrau City and recreational parks such as the 20-acre Pandan Lake & Recreational Park
  • Easy accessibility to various destinations via major highways:
  • Eastern Dispersal Link (EDL) to the city centre / Singapore
  • Tebrau Highway to surrounding townships
  • Pasir Gudang Highway to Senai Airport, Second Link & Pasir Gudang
  • North-South Highway to Malacca or Kuala Lumpur
  • Molek Pine 4 is only the second residential development to be rated Platinum by GBI.

 

Facilities:

  • Swimming Pool
  • Wading pool
  • Tennis court
  • Two badminton courts
  • Basketball court
  • Barbeque pits
  • Fitness station
  • “Onsen” (Japanese Spa)
  • Sauna
  • Gymnasium
  • Children’s playground
  • Function room
  • Convenience centre
  • 4-tier security control (see above for details)

 

Amenities:

  • Experience signature lifestyle homes in TAMAN MOLEK, Johor Bahru’s financial,
  • telecommunications and shipping/logistic hubs. Come home to a multi-award winning development that boats a gated & guarded community complete with RFID* technology, a thriving financial hub with 17 financial institutions and a commercially vibrant lifestyle with bistros, spas and boutique shopping.
  • 15 mins. drive to city centre & CIQ Complex (Custom, Immigration & Quarantine)
  • 10 mins. drive to Sunway College & 20 mins. drive to education hub with 3 universities and 2 colleges, including a Japanese School
  • 10 mins. Drive to Sultan Ismail Hospital
  • 20 mins. Drive to Regency Specialist Hospital
  • Close to convenient amenities : 7-Eleven, Guardian Pharmacy, Watsons, Spa & Foot Massage, Restaurants etc
  • Close to retail centres: Carrefour, Tesco, Giant Hypermarket & Jusco Tebrau City and recreational parks such as the 20-acre Pandan Lake & Recreational Park
  • Easy accessibility to various destinations via major highways:
  • Eastern Dispersal Link (EDL) to the city centre / Singapore
  • Tebrau Highway to surrounding toenships
  • Pasir Gudang Highway to Senai Airport, Second Link & Pasir Gudang
  • North-South Highway to Malacca or Kuala Lumpur

Project Details

molek_pine_four_plan
Layout Plan of Molek Pine 4 – Land Area of 6.24 acres

 

Molek Pine 4 consists of one Tower Block of 37 storeys making it currently the tallest residential tower block in Johor Bahru.

 

Molek Pine 4 Main Tower Block Model 1
Main Showroom Model of Tower 1 (37 storeys) of Molek Pine 4

 

Molek Pine 4 Tower Block Model 3

Main Showroom Model of Molek Pine 4 Facilities and Tower 1

 

A Land area of about 6.24 acres which includes facilities and a covered car park to the rear of the Tower 1.

 

Molek Pine 4 Model 2
Main Showroom Model of Tower 1 and Facilities again

 

Molek Pine 4 Model 3
Close-up view of the Model Molek Pine 4 and its Facilities

 

Branded as the tallest residential tower in Johor Bahru and an Eco friendly Green Building, Molek Pine 4 is the epitome of luxury living in Johor Bahru. As the latest addition to the prestigious Molek Pine Tower 1, 2 and 3 luxury apartments, select your Tower 4 residence from the 37 storeys of luxurious low density, high-rise apartments.

Molek Pine 4 is one of the rare developments alongwith Seri Austin Residence where the car parking bays are located outside and covered. Many developments are usually constructed with multi-level parking bays, so it’s a breath of fresh air to see this with Molek Pine 4.

 

Molek Pine 4 Commerical Area
The In-House Commerical Area of Molek Pine 4

 

For starters, Molek Pine 4 comes with five different kind of units as stated below;

  • Type A 1,441 sq.ft. – 2 Bedrooms 2 Bathrooms
  • Type B 1,672 sq.ft. – 3 Bedrooms 2 Bathrooms
  • Type C 4,965 sq.ft. – 4 Bedrooms 4 Bathrooms
  • Type C1 5,026 sq.ft. – 4 Bedrooms 4 Bathrooms
  • Type D 5,579 sq.ft. Penthouse, 5 Bedrooms 5 Bathrooms

 

Molek Pine 4 Signage

Molek Pine 4 Signage Type B
Entrance to Showroom Unit Type B Molek Pine 4

 

Let the photos do the talking on how spacious, luxurious and high-end living Molek Pine 4’s unit, in this case Type B is.

 

Molek Pine 4 Living Area
View of the Living Area and Dining Area Type B Molek Pine 4

 

Molek Pine 4 Living Area and Main Entrance Viewpoint
Another viewpoint of the Living Area and Dining Area

 

Molek Pine 4 Balcony

Type B Balcony

 

Molek Pine 4 Close Up Living Area Sofa

Type B Living Area onlooking the Balcony

 

Molek Pine 4 Second View of Balcony All Units have a balcony

Type B Balcony View Again

 

Molek Pine 4 View From Entrance To Living Area and Balcony

Viewpoint from Entrance into the Living Area onlooking Balcony

 

Molek Pine 4 Master Bedroom

Master Bedroom Type B

 

Master Bedroom Bathroom Molek Pine 4

Master Bathroom

 

Molek Pine 4 2nd Bedroom
Second Bedroom Type B

 

Molek Pine 4 Second Bathroom
Bathroom shared by both 2nd and 3rd bedrooms

 

Molek Pine 4 Third Bedroom

Third Bedroom

 

Molek Pine 4 Yard with Third Bathroom and Wet Kitchen Area
Wet Kitchen Area onlooking 3rd bathroom

 

Molek Pine 4 3rd Bathroom next to Utility Room or 3rd Bedroom
The 3rd Bathroom

 

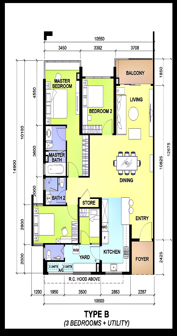
mp4-type-b
Floor Plan of Type B Molek Pine 4 Unit

 

Molek Pine 4 Utility Room or 4th Bedroom
Utility Room or 4th Bedroom

 

Molek Pine 4 Grill of the Yard but no Windows in reality
Grill overlooking the outside rear of the Wet Kitchen (Minus Glass)

 

Specifications:

  • Structure: Reinforced Concrete Framework
  • Wall: Bricks/Reinforced Concrete Walls/Light Weight Block/Solid Wall/Pre-Cast Concrete Panel
  • Ceiling: Fibrous Plaster Board/Skim Coat
  • Windows: Aluminium Framed Glass/Fixed Glass Panel
  • Doors: Fire-Rated Doors/Timber Flushed Doors/Aluminium Framed Glass Sliding Door
  • Ironmongeries: Good Quality Ironmongeries
  • Wall Finishes: Ceiling Height Ceramic Wall Tiles on 2 Walls in Kitchen
  • Ceiling Height Ceramic Wall Tiles in Bathrooms
  • Floor Finishes: Humogenous Tiles everywhere except Bedrooms and Yard. The Rest, Ceramic Tiles.
  • Internal Telephone: Available

 

 

FACILITIES:

 Molek Pine 4 Model 3
Closeup view of the Showroom Model of Molek Pine 4’s Facilities

 

molek_pine_four

 

The Facilities speak for themselves. With a large Japanese and Korean community in Taman Molek, its no wonder that the majority planning to and already purchased most of the units at Molek Pine 4 are from Japan, generally speaking Japanese expats already living in either Singapore or in Johor.

With onl 40 or so units left on sale I am sure many would be queing up to purchase such luxurious apartments. With only 260 units, Molek Pine 4 is another award winning project by the Kuok Group and definitely low density at that.

Another good part here is that one doesn’t have to go upwards to a floor 4 or 5 to have access to the facilties podium, its already at Ground Level making it that easier to access. Everything is easily accessible. Convenience at your doorstep.

 

Facilities Include:

  • Swimming pool
  • Wading pool
  • Tennis court
  • Two badminton courts
  • Basketball court
  • Barbeque pits
  • Fitness station
  • “Onsen” (Japanese spa)
  • Sauna
  • Gymnasium
  • Children’s playground
  • Function room
  • Convenience centre
Show More

Location

molek_pine_four_map

 

Taman Molek is a main township in Johor Bahru, Johor, Malaysia. It was developed by Pelangi Berhad Group in the 1990s and is now a mini commercial hub with several major banks : Standard Chartered, HSBC, Al-Rajhi Bank, Kuwait Finance House, Royal Bank of Scotland, OCBC, UOB, RHB Bank, EON, Maybank, Hwang-DBS Investments.

It is surrounded by Taman Johor Jaya, Taman Redang, Taman Desa Harmoni, Taman Saujana and is adjacent to two major golf courses, Ponderosa Golf and Country Resort and the Daiman 18 Golf and Country Resort. It is becoming increasingly popular as a commercial and residential area and with a direct link to Johor Bahru slated to open soon. It is also close to the Tebrau-Plentong corridor which is seeing tremendous growth and also a lot of high end developments such as waterfront and marina type projects along with hotels and more commercial areas set to come in future.

A little known fact about Taman Molek is that for about half century it was the site of the main transmitting station of the BBC or British Broadcasting Corporation in the Far East – known locally as BBC Tebrau – before this was relocated to Singapore. In the old days the Masai Trunk Road was popularly known as the BBC Road. 

 

taman molek johor bahru - Google Maps

 

MULTI-ACCESSIBILITY

  • 15 mins. drive to city centre & CIQ Complex (Custom, Immigration & Quarantine)
  • 10 mins. drive to Sunway College & 20 mins. drive to education hub with 3 universities and 2 colleges, including a Japanese School
  • 10 mins. Drive to Sultan Ismail Hospital
  • 20 mins. Drive to Regency Specialist Hospital
  • Close to convenient amenities : 7-Eleven, Guardian Pharmacy, Watsons, Spa & Foot Massage, Restaurants etc
  • Close to retail centres: Carrefour, Tesco, Giant Hypermarket & Jusco Tebrau City and recreational parks such as the 20-acre Pandan Lake & Recreational Park
  • Easy accessibility to various destinations via major highways:
  • Eastern Dispersal Link (EDL) to the city centre / Singapore
  • Tebrau Highway to surrounding toenships
  • Pasir Gudang Highway to Senai Airport, Second Link & Pasir Gudang
  • North-South Highway to Malacca or Kuala Lumpur

 

Taman Molek District

 

Taman Molek is Johor Bahru’s newest financial hub with its concentration of 18 commercial banks and a host of lifestyle amenities to complement its residents’ bustling daily life. With the best of JB just minutes from home, residents are able to enjoy the benefit of living in Taman Molek. Molek Pine 3 and Molek Pine 4 are close to convenient amenities such as 7-Eleven, Guardian Pharmacy, Watsons, Spa & Foot Massage, Restaurants etc. Shopping made easy with retail centres, such as; Carrefour, Tesco, Giant Hypermarket & Jusco Tebrau City and enjoy a stroll at the park at the 20-acre Pandan Lake & Recreational Park.

With multiple-accessibility, travelling to and from Molek Pine 3 & Molek Pine 4 is a breeze. Access via major highways such as the Tebrau Highway to surrounding townships, Pasir Gudang Highway to Senai Airport, Second Link & Pasir Gudang North-South Highway to Malacca or Kuala Lumpur and just 45 minutes drive to Singapore’s Changi International airport.

Molek Pine Residences are multi-award winning developments that boasts a gated & guarded community complete with RFID* technology, a thriving financial hub with 17 financial institutions and a commercially vibrant lifestyle with bistros, spas and boutique shopping.

(*RFID : Radio Frequency Identification)

Show More

Analysis

Before we compare with other similar nearby developments, here’s a quick thought:

 

5 Questions to Answer before Making a Decision to Buy

Before putting your life savings into a property investment, ask yourself these few questions to determine whether or not your dream home will appreciate in value or forever lie fallow:

  1. Does it have an MRT/LRT nearby?
  2. Does it have Road and Highway access?
  3. In these days of high-speed technology, does it have telecommunication infrastructure in place ie. Telephone lines, fibre optic/wireless technology for Internet and Wifi?
  4. Does it have an “exciting” feature to breathe “life” into the township, such as: An international school or university campus with foreign students, a shopping centre, offices, a hospital?
  5. What is the standing of the developer?

 

Name Location Tenure / Land Title Average Price PSF Maintenance Fee PSF Average Price Typical Unit
Molek Pine 4 Taman Molek, Johor Bahru Freehold RM 700 RM 0.38 RM 944,000 –
RM 4,777,000
The Arc Austin Hills,
Johor Bahru
Freehold RM 450 RM 0.25 RM 262,000
Palazio Mount Austin, Johor Bahru Freehold RM 374 RN 0.20 RM 98,888 –
RM 259,484

 

Rental Rate Comparisons

  • Austin Regency, Austin Hills – RM1,200 monthly
  • Petrie Condo – RM5,000 monthly
  • Molek Pine 4 – RM5,900 monthly
  • Molek Pulai –   From RM2,500 to RM3,000 monthly

 

 About The Developer:

 

gbi-platinum-cert

 

Tanjung Bintang Sdn Bhd and Berinda Properties is a premier property developer in Johor Bahru renowned for its over 30 years of invaluable experience in the property development industry. The Berinda team has been an integral part of developing townships and key properties in Johor and beyond.

“BERINDA” is a Bahasa Malaysia word for “family”. It is a word that also means “togetherness” and “unity”, a word from when life was always meaningful and community was paramount. Berinda Properties is indeed the premier property developer in Johor. Berinda Properties as well as Tanjung Bintang Sdn Bhd are both subsidiaries of the Kuok Brothers Group.

Show More

Summary

gbi-award-header

 

An attraction to Malaysia and located at the southernmost tip of Peninsular Malaysia and positioned as one of the world’s best places to invest, work, live and relax lies, Iskandar Malaysia.

Molek Pine 4 the luxury residence is strategically located within Iskandar Malaysia that sets the standard for sophisticated resort lifestyles.

Brand as the tallest residential tower in Johor Bahru and eco friendly Green Building, Molek Pine 4 is the epitome of luxury living in Johor Bahru. As the latest addition to the prestigious Molek Pine Tower 1, 2 and 3 luxury apartments, select your Tower 4 residence from the 37 storeys of luxurious low density, high-rise apartments.

Molek Pine 4 heralds the arrival of luxury living in Johor Bahru. Molek Pine 4 is the addition to the prestigious Molek Pine Tower 1, 2 and 3 luxury-apartments that sits on a 6.24 acres land.

Own this piece of haven and have the opportunity to savour the very best things in life and the best of Johor Bahru at your doorstep. Experience a serene retreat of luxury with ease and comfort, far away from all the stress of hectic living. With all many recreational facilities literally just steps away in Taman Molek, a mature district and where luxury living doesn’t get any better than this.

Show More
Eric Wong

Arul