Nova Mutiara
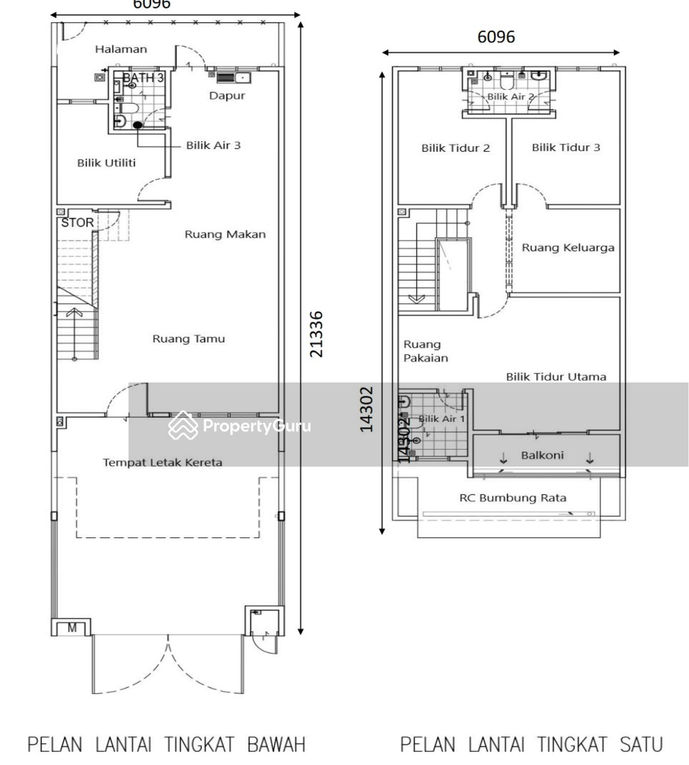
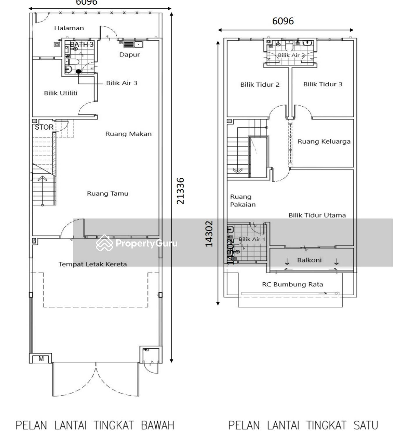
Nova Mutiara: Two-storey Terrace House
New Project: 2025
Terraced House
Starting from
RM 699,000
Indicative price as of 1 Feb 2025 taken from KPKT.
Est. Repayment RM 2,931/ mo
Check your eligibility 
4 bed
3 bath
N/A
See Unit Types and Prices
About this property
Nova Mutiara: Two-storey Terrace House
Nova Mutiara is a low-density development featuring modern architecture. These spacious double-storey terrace houses offer a comfortable living experience in a peaceful and secure neighbourhood. Each home comes with four bedrooms and a backyard garden.
Available Unit Types
Price information is currently unavailable
4
3
Looking for something like this?
Our appointed agents will share similar projects with you.
Explore other options in and around Hulu Langat
Based on the property criteria, you might be interested on the following
Terraced House For Sale
Looking for something like this?
Our appointed agents will share similar projects with you.











