Curvo Residences is the final residential phase of the first integrated development in Setapak, SkyArena.
16 Sierra, Puchong South ─ GPS Coordinates 2.969613, 101.654731─ is a garden township of a variety of residential units built inside 16 themed parks linked to each other and to its core 7.2-acre Central Park. The township spans 535 acres of leasehold land and is located about 3.8km away from the LDP Puchong Selatan Toll.
As seen on the map, on the side of the highway where 16 Sierra is, Cyberjaya and Putrajaya are below and to its right. Specifically, 16 Sierra is 8km away from IOI Resort City Mall, Putrajaya and 11km away from the Government Administrative Centre (Pusat Pentadbiran Kerajaan) in Putrajaya, (22.2km if you’re going to Putrajaya through Cyberjaya of course).
Concept of 16 Sierra ─ a complete ‘Play-Learn-Bond’ experience
16 Sierra is a residential township where its concept of living-among-greenery is realised by its 16 themed gardens within which 16 of its mostly-residential developments are arranged.
The 16 gardens with Educational, Forest, Flower and Herbal Fragrance and other themes, complete with exercise stations, playsets, and of course plant-species appropriate landscaping, are connected by walkways and bicycle tracks to allow residents to visit all the gardens within the neighbourhood.
All these smaller gardens lead to the 7.2-acre Central Park ─ the largest themed garden of all in 16 Sierra ─ where a Grand Lawn, a Tai Chi Lawn, Jogging Tracks, games courts and an Outdoor Amphitheatre abound, all culminating in a full “Play-Learn-Bond” experience for residents.
This people-centric, green-inspired neighbourhood also boasts a Clubhouse called Amigo with even more recreational facilities for residents.
There is also Rafflesia International Private School for your children’s educational needs right there within the 16 Sierra neighbourhood.
About the Developer
16 Sierra is by IOI Properties, the same people behind IOI Resort City in Putrajaya, Bandar Puteri Puchong and Bandar Puching Jaya in Puchong and many other township and individual property developments all over the country and beyond. The properties in 16 Sierra are developed by Lush Development Sdn Bhd, a subsidiary of IOI Properties Group Berhad. (Read more in the Analysis Section).
About AVENS
AVENS is 296 units of 2-Storey terrace houses set within 27 acres of peaceful, serene living space. Avens, as with all of 16 Sierra, is gated and guarded and provides a distinctive entrance statement with an organic form guardhouse which is flanked by its own 0.5 acre theme garden and seven small pocket gardens created randomly in between lots to relieve spaces with greens and playground equipment.
Avens offers you a spacious home with a built-up of 2,540 sq ft and also comes with a modern contemporary interior for conventional living. The home also comes with high ceiling height for better thermal comfort and ventilation.
Project Name: AVENS Residence, 16 Sierra
GPS Coordinates: 2.969613, 101.654731
Developer: Lush Development Sdn Bhd, a subsidiary of IOI Properties Group Berhad
Developer’s Address: ML, Two IOI Square, IOI Resort, 62502 Putrajaya, Malaysia
Marketing and Sales Office: IOI Galleria @ 16 Sierra ─ Persiaran Sierra Utama, Bandar 16 Sierra, 47100 Puchong, Selangor Darul Ehsan
Tel: 03-8944-9999 Fax: 03-8944-9959 Email: 16sierra.marketing@ioigroup.com
Website: http://www.ioiproperties.com.my/16-Sierra/
Facebook: www.facebook.com/ioiproperties
Total Land Area of 16 Sierra: 535 acres
Property Type: Double Storey Terrace
Lot Size and Built Up: 22’ by 75’ | 2,540sq ft | 4 Bedrooms + 1 Baths
Included in Unit:
Home Alarm System | Solar Hot Water System to Showers on first floor bathrooms only | Water Booster Pump | 3-Phase Wiring
Land Title: Residential (Strata) ─ No Exterior Renovation
Tenure: Leasehold 99 years
Price per sq ft: average: About RM365psf
Maintenance Fee: 0.06 sen psf
Price of Units: From RM929,520
Project Details
AVENS Two-Storey Terrace is a IOI Vogue development. It is tucked away in precinct Sierra 3 spread out over 27 acres.
16 Sierra has had several phases of development, notably:
- AKIRA in Sierra 9
- DUMALIS in Sierra 11
- LYDEN in Sierra 2
- LA THEA Serviced Apartments in Sierra 10
- SIERRA 6 in Sierra 6
- N’DIRA in Sierra 12
There were some earlier developments before the above list of projects such as 251-unit linkhouses Adenia and Areca, 441-unit townhouses Odora and 228-unit 2-storey terraces Lyden in Sierra 8, Sierra 1 and Sierra 2 (respectively). All these have taken place through the years, each one sporting its own distinct style and layout.
AVENS is the 11th developmental phase and comprises 296 units of double storey terraces. As always, it is gated and guarded and is leasehold and strata-titled. And like the rest, Avens has its own themed garden too although at the time of writing, the theme is not confirmed. But rest assured that it will be delightful and will complement the “garden” concept of 16 Sierra.
The Site Plan
The Site Plan shows the 27 acres in Sierra 3 with those little random pockets of gardens situated here and there to break the 296 units with greenery. The guardhouse too sits in the middle of half an acre of landscaped lawn complete with its own themed and interactive playsets.

AVENS’ alcove spans 27 acres in Sierra 3 fronted by a large garden and dotted by smaller gardens everywhere.
The guardhouse is of particular interest as it has been said to have an “organic form guardhouse”. An ask-around reveals that the guardhouse will feature a lot of plants, possibly trellises and decorative greenery. The guardhouse will also be flanked by an 0.5 acre theme garden plus seven additional small pocket gardens created randomly in between lots to relieve spaces with greens and playground equipment.
A look around AVENS shows one which has been designed for family-cosiness or homeliness, as compared to say, Dumalis 3-storey (see pictures below) which has an impersonal, “officey” feel due to the large entertainment/games/party and guest areas plus huge balcony on the second floor. Of course Dumalis is a larger house by far, being at 24’ by 80’ with a built up of 4,221 sq ft, and thus there is a lot of expanse to play with.

Dumalis second floor entertainment area which stretches to the guest bedrooms at one end and balcony at the other.
AVENS has its own expanse too and being at 22’ by 75’, the space afforded inside is not bad at all. At the same time, it feels intimately homely, built for family interaction and bonding. Avens’ built-up is 2,540 sq ft and comes with four bedrooms and four baths as well as high ceiling height for better thermal comfort and ventilation.
The façade is designed with a semi-D feature with gable roof breaks in between every 2 units creating an interesting roof silhouette. The wide car porch comes column-less to fit two cars easily.
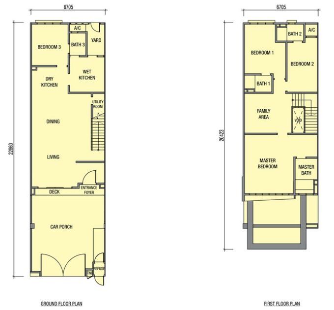
Floor Plan
The inside features an open plan design for the living, dining and dry kitchen area. The wet kitchen itself is spacious and the downstairs bathroom, along with the yard is located in there. It may look deceptively small in the picture but the yard too is roomy and airy.
Not only that, an interesting feature is the clever use of an L-shaped staircase to provide a wider space for the living and dining area and the staircase is further lit up by natural lighting through the skylight above. Underneath the staircase is space enough for a storeroom.
To complete the overall contemporary look, quality finishing and fittings, air-conditioning, piping and points ready for installation, water booster pump for better water pressure and elegantly selected tiles are all included for a high end finish.
Location

The AVENS pocket on 27 acres of Sierra 3 in 16 Sierra. Notice the wide bicycle and pedestrian tracks?
16 Sierra sits on a vantage point in Puchong South in more ways than one.
The 535-acre mixed development township located 90 metres above sea level just at the border of Seri Kembangan at the southernmost part of Puchong (hence the moniker Puchong South) enjoys high visibility to all and sundry if you are driving along the SKVE anywhere near the Plaza Toll Ayer Hitam East-Bound.
Launched way back in 2010, and now in its 11th developmental phase with AVENS Double Storey Terrace Houses in Sierra 3, 16 Sierra is fast becoming a household name. (note: Sierra 3, Sierra 1, Sierra 2 etc refer to the precincts as can be seen in the Masterplan below.)
Because of its location, 16 Sierra can be accessed through many existing highways ─ SKVE, LDP, MEX and MAJU, the upcoming SKIP, as well as via trunk roads from the Bukit Jalil Highway.
And if you were on the SKVE in the vicinity of Seri Kembangan heading towards Cyberjaya and Putrajaya or coming from Putrajaya heading towards Puchong, one of the township’s first components to catch your eye would be Sierra Zentro 1 ─ an imposing stretch of black and glass 3 and 4 storey shop offices made for banks, supermarkets and such to serve the needs of the growing township and its surrounding neighbourhoods. Sierra Zentro (phase 1) was launched in 2013 and today, the project is ready to serve the emergent community.
Getting There By Road Networks
You could use the SKVE if you are coming from Putrajaya, Semenyih, Kajang, KL and Cheras or you could come through from Puchong, PJ, Sunway and use the LDP after making a turn back at the Diamond Interchange.
Or, you could come through Seri Kembangan via Jalan Putra Permai across the elevated bridge over the LDP to Persiaran Alpinia If coming from Seri Kembangan or Kinrara and Bukit Jalil. A wall sign will announce your arrival at 16 Sierra.
Connection by Rail: MRT and HSR
16 Sierra is not only connected by roads but also by rail. The Sungai Buloh-Serdang-Putrajaya (SSP line) will have Station 31 (S31) at Equine Park, S33 at 16 Sierra, S35 at Cyberjaya City Centre and S36 at Putrajaya Sentral to interchange with KLIA Transit.
And speaking of the KLIA Transit, there is exciting news for frequent travelers as in the pipeline, is the RM43b High Speed Rail KL-SG line (HSR) that will cut KL to Singapore travelling time to a mere 90 minutes. This project will commence in 2017.
Here is an excerpt from Wikipedia.
The railway will be about 375 km and the travel time will be 90 minutes. The construction cost will be MYR 43 billion. The project will request the construction of a brand-new line with dedicated tracks, which will allow trains to travel at least 270 km/h. YTL and SPAD will co-ordinate the project for the essential construction within the Malaysia corridor, whereas LTA will be in charge for Singapore corridor.
The planned HSR stations are in:
Bandar Malaysia KL, Putrajaya, Seremban, Ayer Keroh, Muar, Batu Pahat and Iskandar Puteri (formerly known as Nusajaya).
The Putrajaya Sentral station is 9.1km or just 10 minutes away from 16 Sierra.

As seen on the google map, Putrajaya Sentral HSR station is 9.1km or just 10 minutes away from 16 Sierra.
Amenities All Within Reach
16 Sierra is 2.5km or 5 to 10 minutes to Giant hypermart, The Atmosphere and Pasar Borong Selangor, 4.3km or 9 minutes to Taman Equine’s AEON Jusco, and 8.9km or 9 minutes to the super-regional IOI City Mall in IOI Resort City, Putrajaya (via the breezy, mostly traffic-free SKVE).
The township is 13km or 13 minutes to the Government Administrative Centre in Putrajaya and over at the other end, also 13km or 15 minutes (via the LDP) to the famous IOI Mall in Bandar Puchong Jaya, Puchong.
And when it comes to the City Centre of Kuala Lumpur City Centre: 26km, KLIA: 34km and Hospital Serdang: 7km.
Education
In terms of education, it is close to tertiary institutions such as LimKokWing University of Creative technology, Multimedia University (MMU), Universiti Putra Malaysia (UPM), Universiti Tenaga Nasional (UNITEN) and Alice Smith International School (in Taman Equine) as well as Rafflesia International and Private School within 16 Sierra itself. Chinese schools will include SJKC Bukit Serdang in Seri Kembangan and SJKC Union in Cyberjaya.
The Play-Learn-Bond Green Township
All in all, 16 Sierra can be said to be one of the most resident-friendly, green-friendly most well-planned, self-contained townships around, at least in Puchong South. All the residential developments within are allocated with adequate breathing space, privacy as well as 16 interconnected themed gardens including the 7.2-acre Central Park featuring wide lawns and an ampitheatre. These gardens and lawns are complete with exercise stations, children’s playsets as well as interesting educational fixtures to encourage outdoor play, exploration and learning.
And in the heart of the township serving residents’ leisure and fitness needs is Amigo Clubhouse with swimming pools, restaurant, and gym. Just outside is Rafflesia International School and a stone’s throw away is Sierra Zentro ─ the commercial area.
Analysis
IOI Properties Group Berhad is one of Malaysia’s leading public-listed property developers. It has a solid reputation and is renowned as one of the largest property companies in the country with a proven track record spanning more than three decades in the property development industry.
Its principal activities include property development, property investment, leisure and hospitality. It has successfully developed sustainable townships in sought-after regions of Klang Valley and Johor in Malaysia while embarking on property developments in Singapore and the People’s Republic of China.
Source: http://www.ioiproperties.com.my/
Township Developments
In terms of Township developments, IOI Properties has many under its belt. They include: Bandar Puteri Puchong, Bandar Puchong Jaya, Bandar Putera Klang, Bandar Puteri Klang, Bandar Puteri Bangi, Bandar Puteri Warisan, Bandar IOI Bahau, Bandar Putra Kulai, Bandar IOI Segamat, Desaria and of course, coming back to Selangor ─ IOI Resort City, Putrajaya with its glittering Putrajaya Marriot Hotel & Spa, Palm Garden Hotel, Palm Garden Golf Club, and the much touted IOI City Mall.

IOI Resort City ─ made to be more than just an integrated township. (Pic from www.ioiproperties.com.my).
Over in Puchong South, in January 2010, 16 Sierra was launched. Through the years, this development has won many awards, both for the individual property types in 16 Sierra (“Best Landed Development”) as well as for the 16 Sierra Township as a whole (“Best Family-Centric Development”).
The Figures
The figures for AVENS will be compared to the other developments in 16 Sierra.
| Name | Tenure | Unit Size | No of Units | Average Price PSF | Approx Start Price per Unit |
| AKIRA, 16 Sierra (3storey Semi-D) | L hold | 4596sq ft ̶̶ 4617sq ft | 122 | RM350++ | From RM2.2M |
| DUMALIS, 16 Sierra (3 storey Superlink) | L hold | 4221sq ft (Type A) | 99 | RM350++ | From RM1.3M |
| NDira, 16 Sierra (3 Storey Townhouses) | L hold | 2099sq ft ─ 2573sq ft | 336 | RM350++ | From 709,920 |
| LA THEA, 16 Sierra (Condo) | L hold | 787sq ft ─1205sq ft | 526 | RM550 | From RM470,000 |
| SIERRA 6, 16 Sierra (2 and 3 Storey Superlink) | L hold | Builtups spanning both 2798sq ft ─ 3526sq ft | 3storey: 113 2storey: 104 | RM350++ | 3 storey: RM1.5M 2 Storey: RM1.2M |
| LYDEN, 16 Sierra (3 Storey Terrace and 2 ½ and 3 Storey Semi-D) | L hold | 2668 sq ft ─ 4,000sq ft | 35 Semi D and Zero Lot Bungalows | RM350++ | 2 ½ Storey: RM1.7M 3 Storey: RM1.92M Bungalows: RM2.1M |
| AVENS, 16 Sierra (2 Storey Terrace) | L hold | 2540 sq ft | 296 | RM365 | From RM929,520 |
Summary
These days, every astute property investor is bullish about Puchong South because they know that’s where growth is at.
Puchong South is actually a relatively new tag for the vast 50-odd sq km tract spanning the entire southern portion of Puchong from the south end of the Ayer Hitam Forest Reserve, to the border of the ELITE Highway, right up to the perimeters of Cyberjaya and Putrajaya and just across the boundaries of Seri Kembangan.
Before it was rebranded though, there was no Puchong South. Actually there was no name for the area that was vaguely referred to as the jungle, estate and ex-mining land fringed by little shanty towns in “that section of Serdang”.
In fact, over at the Sri Kembangan side of things, a huge swathe of land called the Ayer Hitam Landfill Site (where many upscale new developments now surround) was the open dumping ground for more than 3,000 tonnes of the Klang Valley’s daily waste and refuse. That was what the area was all about in those days and it gravely impacted the rise of real estate there for a long time.
However all that is now in the past.
Puchong South has today become a hotspot for development because of many factors. For one, the real Puchong ─ the one called Pusat Bandar Puchong inside throbbing Bandar Puchong Jaya and Bandar Puteri Puchong ─ is now too developed, too packed and too expensive to bargain for affordability, whereas Puchong South, still pristine in many ways and just “waking up” from its sleepy past, still has room to manoeuvre, including room to build townships of luxurious landed properties within idyllic botanical settings that pitch a lifestyle replete with contemporary comforts as demanded by the rising affluence of the growing population there.
That’s the draw of Puchong South.
So, what about 16 Sierra?
Given all these things going for the township ─ its excellent location, its potential to “ong”, its environment-friendly, garden-inspired concept, its stylish architecture, its quality materials and finishings, its family centric-ness, its developer’s good standing in the industry…things look very promising indeed.
Property is such that it is always an investment for the long term, and AVENS, seriously, is very appealing. The question you may have to ask yourself though is:
- Do you see yourself living your lifestyle in this township?
- Will AVENS suit your family and your budget?
- Are you closeby to your place of work or at least, are you in easy access of it? (bearing in mind of course that workplaces change in due course) ….and
- Will the home you put your faith and money into today give you the returns you seek tomorrow?
What do you think?
























