• Arianna Leo
  • 29 March 2016
Residential development next to Central plaza mall

Scale model showing the ICONA series of residential towers within i-City in Seksyen 7, Shah Alam

A fully-furnished unit packaged with a London-themed décor? There’s the wooden panelling of course, which is characteristic of most flats in Britain. Hyde Tower is among a series of residential skyscrapers in i-City Seksyen 7, Shah Alam.

Named after London’s famed Hyde Park, this 517-unit serviced apartment consists 36 residential floors complete with a six-storey ample parking facility below. The interiors of its fully-furnished units, which are sized between 466 and 769 square feet, mirrors that of a clean and modern contemporary taste of London.

In addition to the second floor facilities, there are 2 levels of retail lots on first and ground floors of this serviced apartment.

 

Property Name: Hyde Tower @ i-City

Address: i-City, Seksyen 7, 40000 Shah Alam

Phase: Final phase under the ICONA Series

Land Tenure: Freehold

Land Title: Commercial

Land Area: 1.4 acres

Property Type: SOHO/Serviced Apartment

Total Units: 517

Unit Types:

  • Type A (Studio, 466 sq. ft.)
  • Type B (1+1, 614 sq. ft.)
  • Type C (1+1, 663 sq. ft.)
  • Type D (2 Bedroom, 769 sq. ft.)
  • Type E (Duplex, 725 sq. ft.)

No. of Levels: 36

Furnishing: Fully-furnished

Security Features: Multi-Tiered (24-hour security, access card system)

Price per square foot: RM899 psf

Bumiputra discount: 7%

No. of Parking Bays: 6,500 (for lease only)

Built up: 466 sq. ft. to 769 sq. ft.

Expected completion date: 1st quarter of 2018

Developer: i-City Properties Sdn Bhd (511990-W)

Show Gallery: i-Gallery at i-City, Jalan Multimedia, 40000 Shah Alam

Tel: 03-5521 8811

In-house Facilities (located on Level 2):

  • Swimming pool
  • Kid’s wading pool
  • Multi-purpose hall
  • Gym
  • Children’s playground
  • Laundrette
  • Library
  • Internet room
  • Kindergarden

 

Project Details

 

Artist's impression depicting what i-City will look like in 2025Artist’s impression depicting what the i-City integrated ultrapolis will look like by 2025 (Source: i-City Properties)

 

A PREVIEW OF WHAT’S INSIDE I-CITY

In addition to being situated closest to Central Plaza mall, a big shopping mall with a retail space of 1.5 mil square feet, Hyde Tower will also be connected via a pedestrian walkway to the mall itself. Part and parcel of this ultrapolis, in which Hyde Tower is very much a part of, are other high-rise residences, office towers, hotels, cyber offices, retail suites, convention and performing arts centre, and data-processing towers. Some names that are coming in include DoubleTree by Hilton and Best Western hotels.

 

One of the residences already visible from the external road

i-residence, one of the residential high-rises to dot  i-City, is already visible from the external road

Best Western hotel

The 3-star Best Western hotel

i-City is a designated MSC Malaysia Cybercentre

i-City is a designated MSC Malaysia Cybercentre

 

THE FLOOR PLANS OF UNITS AT HYDE TOWER

Type A 41.6 sq ft

A Type A unit layout measuring 466 square feet

The Type A unit is very straightforward.This fully-furnished one-bedroom studio comes with a connecting bathroom with shower, a built-in kitchen cabinet, dining and living lounge. Due to its compact size, you can practically see through the entire apartment at one glance. This unit size will start from the 3rd floor until the 10th floor. There are a total of 56 Type A units inside Hyde Tower.

 

THE TYPE A SHOW UNIT AT HYDE TOWER

The kitchen, dining and living

The main door is to the left of the kitchen cabinet in this picture

As you walk farther in, there's the bathroom

As you walk a few paces, there’s the bathroom and shower

Exactly opposite the bathroom is the bedroom

The bedroom

WHAT’S PROVIDED IN EVERY FURNISHED UNIT?

Depending on the built up of your unit, the standard ensemble for every fully-furnished unit will include most if not all of furnishings including kitchen cabinet with hood and hob, wardrobe, air-conditioners, refrigerator, instant water heater, a 36″ to 42″ flat screen TV, queen sized bed, side table, study table or/ chair, a 2-seater sofa, curtain, dining table and chairs.

 

Type B 57.0 sq ft

A Type B unit layout measuring 614 square feet

The Type B unit starts from the 3rd right up to the 10th floor. There are altogether only 8 units with a built up of 614 square feet at Hyde Tower. Apart from the standard bedroom, study, cooking, dining and living areas, this 1+1 bedroom apartment is also equipped with a balcony to enjoy the views.

Type C 61.8 sq ft

A Type C unit layout measuring 663 square feet

The Type C unit is also located from the 3rd until the 10th floor. There are only 8 units of this type at Hyde Tower. This 1+1 bedroom unit comes with a master bedroom and connecting bathroom, cooking, dining and living areas, and a balcony.

Type D 71.4 sq ft

A Type D unit layout measuring 769 square feet

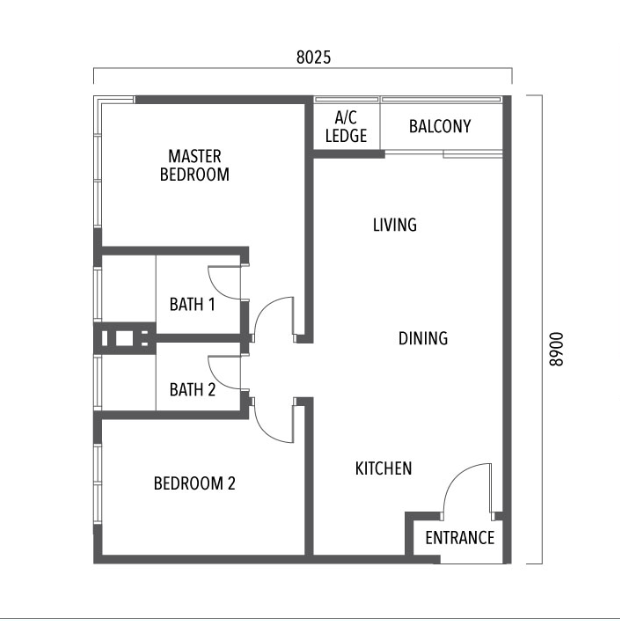
The biggest of the standard sized layout to be offered at Hyde Tower, the Type D unit also comes in a limited edition of only 8 units, beginning on the 3rd floor until the 10th floor.There are altogether 2 bedrooms with 2 en suite bathrooms, living, cooking and dining areas, as well as a balcony next to the living room.

Type E 67.4 sq ft (lower level)

A Type E duplex unit (lower level) floor plan measuring 725 square feet

Type E (Upper level)

Type E (Upper level)

There are altogether 18 duplex units at Hyde Tower, occupying space from the 25th until the 36th floors. The lower level houses the study that faces a ground floor bathroom, and the dining and living space. It’s also where the balcony is located. As you walk up the flight of stairs, that is where your bedroom and connecting second floor bathroom are located. The starting selling price for a duplex is RM 650,000.

 

HERE’S A TYPE E SHOW UNIT DEPICTING THE LOOK AND FEEL OF A DUPLEX 

Dining area of a duplex unit

Dining area of a duplex unit measuring 837 sq ft

Television lounge

Television lounge

Upstairs is where the bedroom is located

Upstairs is where the bedroom is located

At Hyde Tower, there will be 3 service lifts and 1 emergency lift in the higher levels and 5 service and 1 emergency lift in the lower floors. The 6,500 parking facility is for-lease-only between RM80 to RM100 per month.

Show More

Location

Location mapThe “city” logo in the map above pretty much covers the 72 acres of i-City, which is under massive development with a lot of expansion on the land beyond the theme park and water world (Source: i-City Properties)

 

Seksyen 7 in Shah Alam is a relatively serene and peaceful township that remains accessible to and from the rest of Klang Valley via the Federal Highway. The conception and creation of i-City’s fun-filled theme and water park, has, in a way, thrusted this very land into the spotlight.

Bordered by Bandar Baru Klang, Bukit Raja Industrial area, Desa Alam, the Universiti Teknologi MARA (UiTM) campus, and Kampung Padang Jawa, the immediate amenities surrounding i-City include Hospital Shah Alam, Darul Ehsan Medical Centre (DEMC) Seksyen 14,Columbia Asia Extended Care Hospital Seksyen 17, Giant Hypermarket, AEON Bukit Raja Shopping Centre, University of Selangor (unisel), Sekolah Kebangsaan Seksyen 7, Sekolah Menengah Kebangsaan Seksyen 7,MAZ International School, and Sekolah Rendah Agama Integrasi Dato’ Mufti Yusuf Sahabuddin, and Seksyen 7’s very own Police Station.

 

hospital shah alam(source Official Website.

Hospital Shah Alam (Source: Official Website of Hospital Shah Alam)

Although this serviced apartment is located near Sungai Rasau toll plaza, the entry road leading in to Hyde Tower itself is Persiaran Kayangan. Once you get onto this road, look out for a standalone Mcdonald’s (the one with a drive-thru) and you will be on the right track.

 

Shell and KFC fronting Persiaran kayanganPersiaran Kayangan (Source Google)

Once you spot the M for Mcdonald’s sign, you can make a left turn, bypass the Mcdonald’s, which will lead you to shop houses. The second alternative is to pass the Shell station, then make left turn onto Persiaran Permai. Either way will take you to i-City’s i-gallery.

 

Giant from i-City

Distant view (from i-City) of Giant Hypermarket at Pusat Komersial Seksyen 7

 

giant pusat komersial seksyen 7

Giant at Pusat Komersial Seksyen 7 in Shah Alam (Source Google)

Situated across UiTM Shah Alam, and just beside JAKEL Textile Mall, Pusat Komersial Seksyen 7 is a busy place that is constantly visited by eager shoppers and diners who are looking to get a good meal at the numerous fast food outlets that are in the area including Subway, RasaMas, Secret Recipe, Ayam Penyet, Old Town White Coffee, Tutti Frutti, KFC, and Pizza Hut.

 

xxxx

Jakel Silk House, a famous textile hotspot for traditional Malay wear for men and women alike

 

The The New North Klang Straits Bypass Expressway / Lebuhraya Pintas Selat Klang Utara Baru with AEON Bukit Raja Shopping Centre, which located less than 8 km away via the Federal Highway

 

xxx

A Google Earth image indicating the whereabouts of i-City, as well as what’s outside of its boundary, mainly manufacturing and industrial areas. Notable and expanding residential communities include Setia Alam, Bandar Baru Klang, and Kota Kemuning

As Federal Highway is the most frequented major highway for residents who reside in and around this area, not forgetting those who pass by it on a daily basis. The Rakyat Post have reported in 2015 that RM378,486 in combined toll revenue were collected from the Batu Tiga and Sungai Rasau toll plazas in just one day!

 

Accessibility and Connectivity

Map shows the distance of i-City from the key destinations (Source: i-City Properties)

 

For those heading to Klang, there is New North Klang Straits Bypass (NNKSB), which links Northport in Port Klang and Bukit Raja in Klang. NNKSB is also connected to the Federal Highway and the North Klang Valley Expressway.

This accessibility to Seksyen 7 will soon be extended with the addition of LRT 3 in which one of the designated i-City station is less than 2 km away from the development. The LRT 3 line is scheduled to be completed by 2020.

 

Major Highway Connectivity:

  • Federal Highway
  • North Klang Valley Expressway (NKVE)
  • The New North Klang Straits Bypass Expressway (NNKSB)
  • North-South Expressway (ELITE)
  • North-South Expressway Central Link (NSECL)
  • Proposed West Coast Highway

 

Nearby Facilities and Amenities:

International Schools

  • MAZ International School
  • Tenby Shah Alam International School
  • Universiti Teknologi MARA (UiTM)
  • Management and Science University (MSU)
  • Universiti Selangor (UNISEL)

Shopping Centres

  • AEON Mall, Seksyen 13
  • Tesco Extra, Seksyen 13
  • AEON Bukit Raja Shopping Centre, Bandar Baru Klang
  • Giant Hypermarket, Pusat Komersial Seksyen 7

Leisure/Recreation

  • Shah Alam Wet World Theme Park, Seksyen 2
  • Bukit Cherakah Forest Reserve Park
  • Shah Alam Stadium, Seksyen 13
  • Shah Alam Lake Gardens, Seksyen 2

Medical Centres

  • KPJ Selangor Specialist Hospital
  • Darul Ehsan Medical Centre (DEMC)
  • Hospital Shah Alam
  • Columbia Asia Extended Care Hospital

Schools

  • SK Sek 7 Shah Alam
  • SRA Integrasi Dato’ Mufti Yusuf Sahabuddin
  • SJK (T) Ladang Midlands
  • SMK Sek 7 Shah Alam
  • SK Bandar Anggerik
  • SK Raja Muda
  • SR Agama Sek 3
  • SMK Sultan Salahuddin Abdul Aziz Shah
  • SMK Sek 16

 

Show More

Analysis

 

Name of development Land Tenure Property Type No. of Levels No. of Units Built up Selling price
Paloma at Tropicana Metropark Freehold Serviced Residence 29(2 towers) 571 609 sq ft to 1,309 sq ft. Starts from RM800,000 or/RM850 psf
Hyde Tower at      i-City Freehold Serviced Apartment 36 517 466 sq. ft. to 769 sq. ft. Starts from RM383,000  or/ RM899 psf

 

Rental rates

The rent for a 1-bedroom studio unit in the Seksyen 7 area is RM1,800.

 

About the Developer

i-City Properties Sdn Bhd is a part of I-Berhad, a public listed company which had started developing i-City into what it is today since 2005. Before the company was bought over by Sumurwang in 1999, it was a local branch manufacturer of electrical appliances under Sanyo Japan.

Property Portfolio:

  • Liberty Tower at i-City
  • Parisien Tower at i-City
  • i-Suite at i-City
  • i-Soho at i-City
  • Hyde Tower at i-City
  • 8 Kia Peng
Show More

Summary

There’s the up-and-coming Central Plaza shopping mall by one of Thailand’s leading retail developer Central Pattana Pcl. There’s an existing amusement theme and water park to keep you entertained 24/7. Or could it be that you are drawn by the idea of having a fully-furnished unit to move into without much personal hassle?

Whatever your reason to buy here, some of the unique selling points of to take note of is that Hyde Tower is considered one of those transit-oriented developments that has either an LRT, BRT or MRT closeby. In the case of Hyde Tower, a future LRT 3 line is in the pipeline to connect public transit users from Bandar Utama to Klang. There is also a BRT line to be constructed in the area, as well as a direct flyover from Federal Highway.

 

Show More
Eric Wong

Arianna Leo