Curvo Residences is the final residential phase of the first integrated development in Setapak, SkyArena.
![001LePav- Swimming Pool & gym]()
A beautiful illustration of Le Pavillion’s swimming pool & gym
Live Above All
Pavilion, a word that seems to represent glamour and prestige, has become quite a trendy name lately. From Bukit Bintang to now Bandar Puteri Puchong, IOI hopes to emulate the success of its KL counterpart with its very own Le Pavillion. Originated in French, Le Pavillion simply means the pavilion, a classical building or a structure that’s typically used in gardens or pleasure grounds. Indeed, this resort-style residence did not disappoint by correctly defining what a pavilion is truly all about. Lush landscaping and dedicated facilities surrounds the residence, along with a vantage view of the green forest reserves and city centre. In this regard, IOI promises to deliver you a living experience that is “sensuously stimulating as they are physically intriguing”. Whether Le Pavillion can live up to that expectation, we are about to find out in the review below.
Project Details
![003LePav- Entrance]()
A sleek entrance statement by Le Pavillion
| QuickPro No | : PL-5092 |
| Address | : Puchong, Selangor |
| Property Type | : Serviced Apartments |
| Land Title | : Commercial |
| Tenure | : Freehold |
| Bumi Discounts | : 10% |
| Sales Gallery | : Lot 5465, Persiaran Lebuh Puteri, Bandar Puteri Puchong, 47100 Puchong, Selangor. |
| Site GPS Coordinates | : 3.017756, 101.626381 |
| Website | : http://www.ioiproperties.com.my/Bandar-Puteri-Puchong |
| Expected Completion Date | : 2019 |
| Total Units | : 606 units |
| Built-Up Area | : 5.6 acres |
| Facilities & Amenities | : Lagoon Pavilion, Socialite Pavilion, Kidz Explorer Pavilion, Chill Out Pavilion, |
| Sky Lounge Pavilion, Multipurpose Hall, Half Basketball Court, Tea & BBQ Terrace, | |
| Mini Theatre, Changing Room, Gymnasium, Yoga Deck, Kindergarten, Surau. | |
| Listing Price | : RM 700,000 – RM 942,000 |
| Price per Sq.Ft. | : RM 650 |
| Maintenance Fee per Sq. Ft. | : RM 0.35 (inclusive of sinking fund) |
| Parking Bay per Unit | : 2 units |
| Development Type | : Parcel A : Service Residence |
| Parcel B : Retail Shops | |
| Parcel C : Office Suites | |
| Unit Type | : Type A (1,256 sq.ft.) |
| Type B (983 sq.ft.) | |
| Type C (1,256 sq.ft.) | |
| Special Features | : Flexible 3 in 1 residences that include service apartments, retail offices and retail |
| offices and retail shops, gated community and 4 tier security system, various | |
| exciting and relaxing facilities, unique layout with en-suite bathrooms and | |
| spacious bedrooms, quality bathroom set and generous cash rebates given, | |
| served by 3 LRT stations and well connected to 6 major highways. |
Developer Details
![002LePav- IOI Palms China]()
A grand concept of IOI Palm City, China
While Malton Bhd may have single-handedly redefined Bukit Bintang, IOI Properties Group Bhd (IOIPG), on the other hand, has been the crème de la crème of Puchong. Led by the venerable Tan Sri Lee Shin Cheng, he had transformed what turned out to be unwanted tin mines and oil palm plantations into a highly dense and vibrant metropolitan in Puchong. Today, IOIPG is renowned as one of the largest property companies in Malaysia with a proven track record of more than 30 years. From Malaysia to Singapore and China, this developer has kept an extensive portfolio under its belt ranging from property development, property investment, leisure and hospitality. Not to mention, new private lands located in IOI Resort City are also being injected into IOIPG by Tan Sri Lee Shin Cheng. So, if you are planning to stay around the Puchong area, there are no reasons for you to doubt this developer.
| Developer Name | : Flora Development Sdn. Bhd. (Subsidiary of IOI Properties Group Bhd) |
| Previous Property Development Projects | : Bandar Puteri Puchong, Bandar Puchong Jaya, 16 Sierra |
| Current / Future Property Development | : IOI Rio City |
| Awards / Achievements | : 2014 The Edge Top 10 Malaysia Top Property Developers Award, |
| BCI Asia 2015 Top 10 Developers Awards, Asia Pacific Property | |
| Awards for Highly Commended High Rise Landscaped Architecture | |
| for Skyz Residence. |
Project Details
Ongoing construction works at Le Pavillion
Finally, we get to talk about Le Pavillion itself. The property sits on 5.6 acres of freehold commercial land, with a total of 606 residential units in two separate towers. Each tower is over 30 storeys high and there are almost 10 units of service apartments in each floor, save for the first 4 floors which are dedicated as carparks.
At over 100 households per acres, this would be a pretty standard density for an urban development. However, with new projects being launched around the vicinity and traffic’s becoming a real nuisance, you might want to consider twice before staying here.
Introducing the high rise towers of Le Pavilion with over 30-storeys tall
Projected image of Le Pavilion’s Retails lots
Decent quality bathroom set and tiles provided to you, but not in the bedroom though
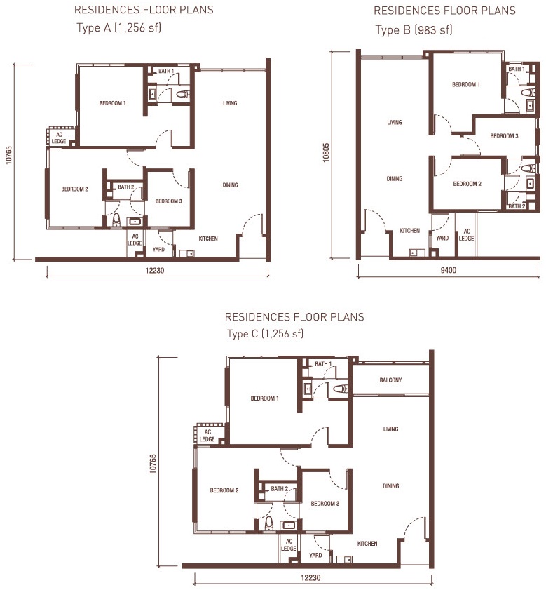
Floor Plan
The floor plan for Le Pavillion is pretty straightforward with 3 standard layouts- Type A, B and C. Each unit is designed to be a semi-D unit, with 3 bedroom and 2 en suite bathrooms. In addition, a total of 4 lifts will also be serving those units in every floor.
Starting with Type B, it would be the smallest unit with a built up area of 983 sf, followed by Type A, with a size of 1,256 sf. Meanwhile, Type C is almost an exact replica of Type A, except that a portion of its living area is substituted by a balcony.
And depending on which unit you have selected, you may either face Puchong or Petaling Jaya to the north, Bandar Puteri or USJ to the West, IOI Rio City or Bandar Puteri to the South and Ayer Hitam Forest Reserve to the east.
Location
Analysis
Pricing
| Name | Land Tenure / Title | Average Price per Sq.Ft. | Maintenance Fee per Sq.Ft. | Car Park Bays |
| Le Pavillion (IOIP) | Freehold / Commercial | RM 650 | RM 0.35 | 2 units |
| 8 Kinrara (I&P) | Freehold / Commercial | RM 700 | RM 0.32 | 2 units |
| O’Hako (Marimo Land) | Freehold / Commercial | RM 550 | RM 0.28 | 2 units |
For a luxurious service apartment that’s situated in the central Klang Valley region, an average selling price of RM650 psf and maintenance fee of RM0.35 seems like a pretty standard deal. More importantly, it has the prestigious IOI Properties at its helm, which is also the master developer for Bandar Puteri Puchong. With that said, you can expect the property prices in Bandar Puteri Puchong to increase further when the RM6 billion Rio City completes its development in the future.
Final Analysis
Inspired by the classical pavilion architecture, Le Pavilion showcases a contemporary design that would redefine how a pavilion would actually appear. It also features a perfect work-life balance concept with its 3-in-1 integrated development consisting of serviced residences, retail lots and office suites. But what really makes Le Pavillion shine is its exotic and state-of-the-art facilities that includes 4 layers of security systems.
So, whether you are planning to relax at the pool cabana or take a stroll along the walkways, you can rest assure that your safety is guaranteed within this gated and secured residence. However, at RM650 psf, you are only getting a bare unit with just 3 air-conditioners and limited enhancements. Not to mention, most of the units are sold to investors rather than genuine home buyers. Thus, this is a potential concern you should be aware of.
Nevertheless, IOI has masterminded Puchong’s incredible transformation for the past 30 years. Hence, little could go wrong here with this project and developer.
Summary
If you are planning to stay in Puchong and have accepted the fact that traffic congestion is unavoidable, then Le Pavilion could be the right one for you as it is served by 3 LRT stations and boast an excellent connectivity. However, at this point in time, it seems like a better investment decision than a family house with commercial centres and business offices greatly outnumbering its lifestyle components. Perhaps Rio City would be the catalyst that changes all of that in the future?
















