Curvo Residences is the final residential phase of the first integrated development in Setapak, SkyArena.

This is the rear of LYDEN Type D. This picture explains why these 2 ½ storey Semi-Ds look 2 storey from the front
16 Sierra, Puchong South ─ GPS Coordinates 2.969613, 101.654731─ is a garden township of a variety of residential units built inside 16 themed parks linked to each other and to its core 7.2-acre Central Park. The township spans 535 acres of leasehold land and is located about 3.8km away from the LDP Puchong Selatan Toll.
As seen on the map, on the side of the highway where 16 Sierra is, Cyberjaya and Putrajaya are below and to its right. Specifically, 16 Sierra is 8km away from IOI Resort City Mall, Putrajaya and 11km away from the Government Administrative Centre (Pusat Pentadbiran Kerajaan) in Putrajaya, (22.2km if you’re going to Putrajaya through Cyberjaya of course).
Concept of 16 Sierra ─ a complete ‘Play-Learn-Bond’ experience
16 Sierra is a residential township where its concept of living-among-greenery is realised by its 16 themed gardens within which 16 of its mostly-residential developments are arranged.
The 16 gardens with Educational, Forest, Flower and Herbal Fragrance and other themes, complete with exercise stations, playsets, and of course plant-specie appropriate landscaping, are connected by walkways and bicycle tracks to allow residents to visit all the gardens within the neighbourhood.
All these smaller gardens lead to the 7.2-acre Central Park ─ the largest themed garden of all in 16 Sierra ─ where “Ladybird” and “Froggery” playsets, a Grand Lawn, Tai Chi Lawn, Jogging Tracks, Basketball and Futsal Courts and an Outdoor Amphitheatre for events and celebrations culminate for a full “Play-Learn-Bond” experience.
This people-centric, green-inspired neighbourhood also boasts a Clubhouse called Amigo with even more recreational facilities for residents.

Within Central Park are these Ladybird and Froggery playsets, slides and ample lawns to feel free and easy in. Central Park is next to Amigo Clubhouse. See pic below

Amigo Clubhouse with 40m Lap Pool, Children’s Pool with slides and tipping bucket, Indoor Sports Courts, Gymnasium, Yoga and other Exercise Rooms, Restaurant and so on and so forth

There is also Rafflesia International Private School for your children’s educational needs right there within the 16 Sierra neighbourhood
16 Sierra is by IOI Properties, the same people behind IOI Resort City in Putrajaya, Bandar Puteri Puchong and Bandar Puching Jaya in Puchong and many other township and individual property developments all over the country and beyond. The properties in 16 Sierra are developed by Lush Development Sdn Bhd, a subsidiary of IOI Properties Group Berhad.
About LYDEN

LYDEN is in Sierra 2 precinct and this is its Sentry. LYDEN, like the rest of the residential enclaves in 16 Sierra, is a gated and guarded community
LYDEN is the name of 228 two and three-storey Terrace homes and 35 two and a half and 3-Storey Semi-Ds and Zero-Lot Bungalows located in the Sierra 2 enclave. This 16 Sierra pocket is a completed project as Sierra 2 was one of the earliest phases of development in this township..
LYDEN Terraces have an interesting design in that both ends of the 2-storey Terraced rows are book-ended by 3-storey Terraced units. However, all the two-storey Terraces have been sold, leaving just the 3-storey Terraces.

The 2-Storey Terraces are no longer available but the 3-Storey “book ends” still are. Their interiors will be shown below in the Project section
Along with the availability of the LYDEN 3-Storey Terrace “book ends” are the 2 ½ Storey 40ft by 80ft Semi-Ds which this review will focus on in detail. Other available units in limited numbers are the 3-Storey Semi-Ds and Zero-Lot Bungalows.
As with all enclaves within the 16 Sierra township, LYDEN Semi-Ds come complete with their own themed garden called the Algebra Garden.
LYDEN, in Sierra 2 of 16 Sierra, is Gated and Guarded with a single Entry and Exit point, Perimeter Fencing and Guardhouse.
Project Name: LYDEN Residence, 16 Sierra
GPS Coordinates: 2.969613, 101.654731
Developer: Lush Development Sdn Bhd, a subsidiary of IOI Properties Group Berhad
Developer’s Address: ML, Two IOI Square, IOI Resort, 62502 Putrajaya, Malaysia
Marketing and Sales Office: IOI Galleria @ 16 Sierra ─ Persiaran Sierra Utama, Bandar 16 Sierra, 47100 Puchong, Selangor Darul Ehsan
Tel: 03-8944-9999 Fax: 03-8944-9959 Email: 16sierra.marketing@ioigroup.com
Website: http://www.ioiproperties.com.my/16-Sierra/
Facebook: www.facebook.com/ioiproperties
Total Land Area of 16 Sierra: 535 acres
Property Type: Type D 2 ½ Storey Semi D and Zero-Lot Bungalows
Unit Types and Built Up:
- Type D: 2 ½ Storey Semi-D — 40’ by 80
- Gross Built-Up from 3777sq ft | 6 Bedrooms + 1 Utility Room + 6 Baths + 1 Powder Room + Outdoor Entertainment Terrace
Included in Unit:
Home Alarm System | Rainwater Harvesting System for Garden Irrigation | Solar Hot Water System to Selected Faucet and Showers in several Baths | 3-Phase Wiring
Land Title: Residential (Individual Title) ─ Renovation/ Pets Allowed
Tenure: Leasehold 99 years
Price per sq ft: average: About RM350++ psf
Maintenance Fee: About RM200 a month
Price of Units: 2 ½ Storey Semi-D from RM1.7M | 3 Storey Semi-D from RM1.92M | Zero Lot Bungalows from RM2.1M
Expected Date of Completion: Completed with CCC
Project Details
As with all the other enclaves in 16 Sierra, LYDEN comes with its own themed garden. LYDEN’s garden is the Algebra Garden, where children can have fun playing with equations, numbers and mathematical forms.

LYDEN’s residents are not confined to their gardens only. The Algebra Garden is linked by walkways to the other 15 parks in 16 Sierra, including the 7.2-acre nucleus park called Central Park. Some of the features of the Central Park can be seen in the above collage

Apart from its own garden, there are also other 16 Sierra features like 4-lane wide roads which apply throughout, not just to LYDEN of course. You will notice that the road shoulders are tree lined with walkways for cycling, walking and jogging

As can be seen, these walkways are meant for jogging and cycling and safety for pedestrians from traffic

LYDEN’’s Guardhouse. LYDEN is gated and guarded. LYDEN’s enclave is in Sierra 2, one of the earliest residential developments in 16 Sierra when the township was launched

Here is a typical LYDEN street. LYDEN 2-storey Terraces are on the right row in this picture, “book-ended” by the 3-storey Terrace. On the left of the picture are the 2 ½-Storey Semi-D rows of Type D1.
What is LYDEN?
LYDEN is the name given to a mix of landed property types in Sierra 2 such as 2 and 3-storey Terraces as well as well as 2 ½ and 3-Storey Semi-Ds and Zero-Lot Bungalows. There are only 35 Semi-Ds and Zero-Lot Bungalows of Types C and D and their variations. Do scroll down to the Site Plan below to see their location.
3-Storey LYDEN Terraces Type A and Type B
There are still a few units left of the 3-storey Terraces. Although they are terrace houses, the 3-storey Terraces come with generous built ups of 3400sq ft to over 4000sq ft. They also sport wider frontages than their 2-storey counterparts such as 24’ to 26’ and Double Volume Ceilings in the living area.

This is the Type A 3-Storey Terrace. Picture shows one of the bedrooms with space enough for a walk-in closet, and the top floor, which has been turned into an entertainment lounge in this show picture

This is the Type B 3-Storey Terrace. As with the 3-Storey Terrace of Type A, the built up of this Type B is generous with over 4000sq ft covering 5 bedrooms and 1 Utility room and 6 bathrooms. Furthermore, the top floor opens out into a very large entertainment terrace or balcony.
2 ½ -Storey LYDEN Semi-D Type D
- Type D: 2 ½ Storey 40’ by 80’
Gross Built-Up from 3777sq ft | 6 Bedrooms + 1 Utility Room + 6 Baths + 1 Powder Room + Outdoor Entertainment Terrace
Feature Highlights ─ Double Volume Ceiling in Dining Area | Spacious Open Plan Concept for Living and Dining | North-South Orientation| Large Windows for Ample Natural Lighting and Ventilation | Outdoor Entertainment Deck| Home Alarm System | Solar Hot Water System to Selected Bathrooms and Various Faucets and Showers | Rainwater Harvesting System for Garden Irrigation | 3-Phase Wiring
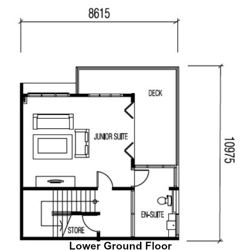
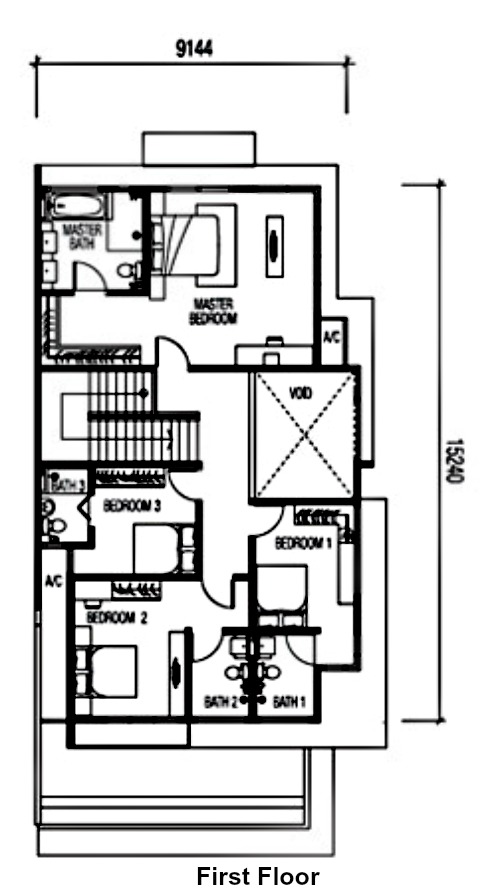
Floor Plan of LYDEN Type D Semi-D
Specifications

The Blue and Orange denotes the limited edition Semi Ds and Bungalows. Note: There are only 35 such units
Show Unit Look Around

This is what you will see as you step into the Type D1 Show house. All the Show Units in 16 Sierra are located in the actual houses so that owners get a feel of what it is like in the real home. Even the Condominium show units of La Thea Condominium are located in the condominium itself

It is a lovely Living Hall as you can see, spacious, very breathable and overlooks the courtyard garden. With the right ID, this could even be idyllic

This is the Wet Kitchen, so to speak. Again the workspace inside is roomy enough for several people to cook up a storm at the same time

And now this is the interesting part ─ the Lower Ground Floor. This is a nice private hangout area for private relaxation or entertainment

Here is the same room again from another angle. Of course, this space can be converted into anything else that suits your lifestyle
Location

Sierra Zentro, the commercial component of 16 Sierra has high visibility along the SKVE. Sierra Zentro are shop-offices
Sierra Zentro would be the first thing you’d see of 16 Sierra if you were driving along the SKVE anywhere near the Plaza Toll Ayer Hitam East-Bound. Sierra Zentro is the commercial component of the 16 Sierra township and comprises very eye-catching 3 and 4 storey shop offices perfect for banks, supermarkets and such to serve the needs of the growing township and its surrounding neighbourhoods. Sierra Zentro (phase 1) was launched in 2013. Today, the project is putting in its finishing touches, ready to serve an emergent community.
Indeed, 16 Sierra the township, launched in 2010, is fast becoming a household name now that it is in its 6th year of development, and having completed or is in the midst of completing 8 of its developmental phases. (There are 16 lined up, hence the name 16 Sierra).
Many of the earlier residential phases such as 251-unit Linkhouses ADENIA and ARECA, 441-unit Townhouses ODORA and 228-unit 2-Storey Terraces LYDEN in Sierra 8, Sierra 1 and Sierra 2 (respectively) are already filled up, lived in and thriving. (note: Sierra 8, Sierra 1 and Sierra 2 refer to the precincts as can be seen in the Masterplan below.)
Well Connected
16 Sierra, located on “high-ish” ground about 90m above sea level, can be prominently seen and accessed through 3 existing highways ─ SKVE, LDP, MEX and MAJU, and a fourth upcoming one SKIP, as well as through a few trunk roads from the Bukit Jalil Highway.
Getting There
If coming from the Bukit Jalil Highway, one can use the inner roads through Kinrara to join to Persiaran Puncak Jalil. Or you could turn in to Taman Puncak Jalil itself from the said highway which then cuts through to 16 Sierra via Persiaran Puncak Jalil (the same straight, traffic-less, residential road if you had turned in from Kinrara), then to Persiaran Puncak Jalil 1, then to Persiaran Lestari Perdana, pass Giant Hypermart/The Atmosphere and Sfera and then straight across the bridge that goes over the LDP then on to Persiaran Alpinia where you will see the wall sign that announces your arrival at 16 Sierra.
Or you could use the SKVE itself if you are coming from Putrajaya, Semenyih, Kajang, KL and Cheras. The SKVE is the most direct access to use. Or if you are coming from Puchong, PJ, Sunway and Klang, you could use the LDP and make a turn back at the Diamond Interchange.

From Persiaran Lestari Perdana, turn right to Jalan Putra Permai, pass by Giant Hypermart Seri Kembangan, Sfera Residences and The Atmosphere to head straight across the bridge for 16 Sierra

Going over the overhead bridge intersection. This bridge straddles the LDP from Seri Kembangan over to 16 Sierra and D’Alpinia

Bird’s Eye View of 16 Sierra. In the forefront where you see swimming pools is the residents’ clubhouse called Amigo. The tall highrise is La Thea
Connnection by Rail: MRT and HSR
16 Sierra is not only connected by roads but also by rail. The Sungai Buloh-Serdang-Putrajaya (SSP line) will have Station 31 (S31) at Equine Park, S33 at 16 Sierra, S35 at Cyberjaya City Centre and S36 at Putrajaya Sentral to interchange with KLIA Transit.
And speaking of the KLIA Transit, there is exciting news for frequent travelers as in the pipeline, is the RM43b High Speed Rail KL-SG line (HSR) that will cut KL to Singapore travelling time to a mere 90 minutes. This project will commence in 2017.
Here is an except from Wikipedia.
Malaysia’s Land Public Transport Commission chairman, Syed Hamid Albar announced the planned stops for the HSR on 22 October 2014. The stations are in:
Bandar Malaysia KL, Putrajaya, Seremban, Ayer Keroh, Muar, Batu Pahat, Kempas Baru and Iskandar Puteri (formerly known as Nusajaya).
The Putrajaya Sentral station is 9.1km or just 10 minutes away from 16 Sierra.

As seen on the google map, Putrajaya Sentral HSR station is 9.1km or just 10 minutes away from 16 Sierra
Amenities All Within Reach
16 Sierra is 2.5km or 5 to 10 minutes to Giant Hypermart, The Atmosphere and Pasar Borong Selangor, 4.3km or 9 minutes to Taman Ekuin’s AEON Jusco, and 8.9km or 9 minutes to the super-regional IOI City Mall in IOI Resort City, Putrajaya (via the breezy, mostly traffic-free SKVE).
The township is 13km or 13 minutes to the Government Administrative Centre in Putrajaya and over at the other end, also 13km or 15 minutes (via the LDP) to the famous IOI Mall in Bandar Puchong Jaya, Puchong.
And when it comes to the City Centre of Kuala Lumpur City Centre: 26km, KLIA: 34km and Hospital Serdang: 7km.
Education
In terms of education, it is close to tertiary institutions such as LimKokWing University, MMU, UPM and Uniten and Alice Smith International School (in Taman Ekuin) as well as Rafflesia International and Private School within 16 Sierra itself. Chinese schools will include SJK © Bukit Serdang in Seri Kembangan and SJK © Union in Cyberjaya.
Analysis
IOI Properties Group Berhad is one of Malaysia’s leading public-listed property developers. It has a solid reputation and is renowned as one of the largest property companies in the country with a proven track record spanning more than three decades in the property development industry.
Its principal activities include property development, property investment, leisure and hospitality. It has successfully developed sustainable townships in sought-after regions of Klang Valley and Johor in Malaysia while embarking on property developments in Singapore and the People’s Republic of China.
Source: http://www.ioiproperties.com.my/
Township Developments
In terms of Township developments, IOI Properties has many under its belt. They include: Bandar Puteri Puchong, Bandar Puchong Jaya, Bandar Putera Klang, Bandar Puteri Klang, the recently-launched Bandar Puteri Bangi, Bandar Puteri Warisan, Bandar IOI Bahau, Bandar Putra Kulai, Bandar IOI Segamat, Desaria and of course, coming back to Selangor ─ IOI Resort City, Putrajaya with its glittering Putrajaya Marriot Hotel & Spa, Palm Garden Hotel, Palm Garden Golf Club, and the much touted IOI City Mall.
To read more about IOI Resort City, Putrajaya, click on the link provided to theSundaily’s coverage of the group’s launch of IOI Resort City’s Conezion Condominium recently.
Over in Puchong South, in January 2010, 16 Sierra was launched. Through the years, this development has won many awards, both for the individual property types in 16 Sierra (“Best Landed Development”) as well as for the 16 Sierra Township as a whole (“Best Family-Centric Development”).
The Figures

For reasons shown in the above map, 16 Sierra homes are often compared to D’Alpinia homes by Hap Seng Land. D’Alpinia homes also comprise low-density, gated landed properties (both 2 and 3 storey) and also highrises such as their latest launch of Andana, d’Alpinia Condo (with landed Villa options). The following are the comparative figures collated.
For reasons shown in the above map, 16 Sierra homes are often compared to D’Alpinia homes by Hap Seng Land. D’Alpinia homes also comprise low-density, gated landed properties (both 2 and 3 storey) and also highrises such as their latest launch of Andana, d’Alpinia Condo (with landed Villa options). The following are the comparative figures collated.
| Name | Tenure | Unit Size | No of Units | Average Price PSF | Approx Start Price per Unit |
| AKIRA, 16 Sierra (3Storey Semi-D) | L hold | 4596sq ft ̶̶ 4617sq ft | 122 | RM350++ | From RM2.2M |
| DUMALIS, 16 Sierra (3 storey Superlink) | L hold | 4221sq ft (Type A) | 99 | RM350++ | From RM1.3M |
| NDira, 16 Sierra (3 Storey Townhouses) | L hold | 2099sq ft ─ 2573sq ft | 336 | RM350++ | From 709,920 |
| LA THEA, 16 Sierra (Condo) | L hold | 787sq ft ─1205sq ft | 526 | RM550 | From RM470,000 |
| SIERRA 6, 16 Sierra (2 and 3 Storey Superlink) | L hold | Builtups spanning both 2798sq ft ─ 3526sq ft | 3storey: 113 2storey: 104 | RM350++ | 3 storey: RM1.5M 2 Storey: RM1.2M |
| LYDEN, 16 Sierra (3 Storey Terrace and 2 ½ and 3 Storey Semi-D) | L hold | 2668 sq ft ─ 4,000sq ft | 35 Semi D and Zero Lot Bungalows | RM350++ | 2 ½ Storey: RM1.7M 3 Storey: RM1.92M Bungalows: RM2.1M |
| Urbana, D’Alpinia (Link Bungalows and Bungalows) | L hold | 3489sqft ─ 5846sq ft | 64 | RM350++ | RM1.7M at launch (Completed 2013) |
| Andana, D’Alpinia (Condo and Villa) | L hold | Condo: 1572sq ft – 1690sq ft Villa: 2568sqft ─ 2740sq ft | Condo: 116 Villa: 30 | RM407 | Condo: RM680,980 Villa: RM1,048,210 |
To find out more about the other available residential units in 16 Sierra, please click on the links provided below:
Summary

Perhaps a little lacking in elbow room for Semi-Ds when seen from the outside. The buffer zone on the curb also seems a little narrow
There weren’t many units of Lyden Semi-Ds made when the enclave was conceived many years back so it’s “limited edition” for the few dozen units still remaining. The 2-Storey Terraces have all been taken up already.
What’s good about these units is that they are north and south facing so you can be sure of not having to deal with the sun’s glare, and obviously they have been made for large families or even three-generational ones. The Lower floors of the 2 ½ Storey units are really interesting. The living space there is very private and one gets to enjoy the vista of tranquility from three levels, even if one is entertaining guests.
The only criticism about these otherwise well-made units is that there seems to be a lack of “elbow room” in between the units deserving of a Semi-D or Bungalow, even if that bungalow was a Zero-Lot. Even the roads in between seem to be a little narrow when compared to the later phases. But then, one could always argue that the expansive interior makes up for whatever lack thereof.
Location-wise, 16 Sierra is perfect for those working along the Southern Corridor of the Klang Valley such as Cyberjaya, Dengkil, Putrajaya, Seri Kembangan and its environs, and even Kinrara, Bukit Jalil, Old Klang Road going over to Bangsar, and of course, Puchong itself. Sometimes, it’s not the distance but the jam in between. Luckily, the SKVE provides a generally breezy drive.
Then again, 16 Sierra is becoming very self contained. The shoplots Sierra Zentro are almost completed, Rafflesia International School is already up and running with 300 students or so, Amigo the Clubhouse is definitely up and running too and the township is surrounded by so many matured neighbourhoods that residents need only take a short drive to access every conceivable amenity they would require.
So, on the whole, this is a good area to live in and raise a family. Your only dilemma would be your choice of units…and if your budget will permit of course.


































