Curvo Residences is the final residential phase of the first integrated development in Setapak, SkyArena.
Marina Residence, Bakar Batu Johor Bahru is a 28-storey, 168-unit leasehold Serviced Apartment situated on the scenic banks of the Tebrau River in laid-back Bakar Batu next to the famed Bayu Marina Resort.
Project Name: Marina Residence, Bakar Batu Johor Bahru
Address: Taman Bayu Puteri, Johor Bahru, Johore, Malaysia
Developer’s Address: 16, Jalan Angkasa Mas 6, Kawasan Perindustrian Tebrau II, 81100, Johor Bahru, Johore
Tel: 607-355-3461 (ext 165) Fax: 607-355-4961
Sales Gallery: #1-18, Apartmen Bayu Marina, No:1, Jalan Bayu Puteri 2/1, Taman Bayu Puteri, 80150 Johor Bahru, Johor, Malaysia (Beside Bayu Marina Resort)
Open Monday to Friday 9am – 6pm, Saturday 9am – 1pm. Tel: 607-336-3200
Property Type: Serviced Apartment
Land Title: Commercial
Tenure: Leasehold 99 years
Total Land Area: 23 acres
Land Area of Project alone: 1 acre
No of Towers: 1
No of Storeys: 28
No of Units in Total: 168
Residential Units start from: Level 8 to 28
Facility Level: At Level 7
Unit Types and Built Up:
- Type A: 1487sq ft (3+1R/3B)
- Type B: 1219sq ft (3+1R/3B) but smaller
No of Units per Floor: 8
No of Lifts per floor: 3 lifts
Parking Levels: Level 1 – 6
No of Free Car Park Bays per Unit: Mostly 2, although some units only get 1 depending
Price per sq ft: average: Average range RM680
Listed Price: RM830K++ to RM1.1 million++ (before discount). Price dependent on size and views of chosen unit
Discounts and Rebates: Promotion rate of 15% throughout
Maintenance Fee: RM0.35psf
Expected TOP: 2017
Unique Selling Points:
- Perfect residential location for those travelling between Singapore and Johore frequently
- 5mins drive or 6km of traffic lights-free road to and fro CIQ JB Customs Immigration Point
- 15% off listed price
- Located in the heart of Johor Bahru City and the Financial Hub of Iskandar Development Region Malaysia Flagship Zone A with easy access to amenities and infrastructure
Connectivity & Amenities:
- 1km to EDL Interchange joining North-South Highway
- 5km to the Customs, Immigration Quarantine Complex (CIQ) Johor Bahru
- Along the JB Coastal Highway to Pasir Gudang or Johor Port
- 5km to SouthKey Midvalley Megamall and SouthKey integrated township development of International School, Hospital etc (currently under construction)
- 3km to 6km to existing major shopping arcades like Aeon Bukit Indah Shopping Centre, KSL City Mall, Johor Bahru City Square Shopping Mall
- 8km to existing Puteri Specialist Hospital
- 5km to Regency Specialist Hospital
- 5 to 2.5km to National primary and secondary schools: SK Tebrau Bakar Batu, SK Sri Tebrau, SMK Sri Tebrau, SMK Permas Jaya, SMK Taman Molek, Sek Agama Taman Sri Tebrau, and SK Taman Pelangi
- 6km to the famous Chinese Foon Yew High School
- 8km to the international school REAL Schools Cahaya Campus
- 28km to Legoland Theme Park/Water Park
- 10km to 18-hole, par 72 Ponderosa Golf and Country Resort, and 4.6km to the 9-hole Pernas Jaya Golf Club.
- Residents’ private access to adjacent-to-residence 7 acres of Lake Gardens
Facilities (on 7th Floor)
- Infinity Pool
- Wading Pool
- Children’s Playground
- Surau
- Sauna
- Study Room
- Gym
- Childcare Centre
- Multi Function Room
- Barbeque Pit
Project Details
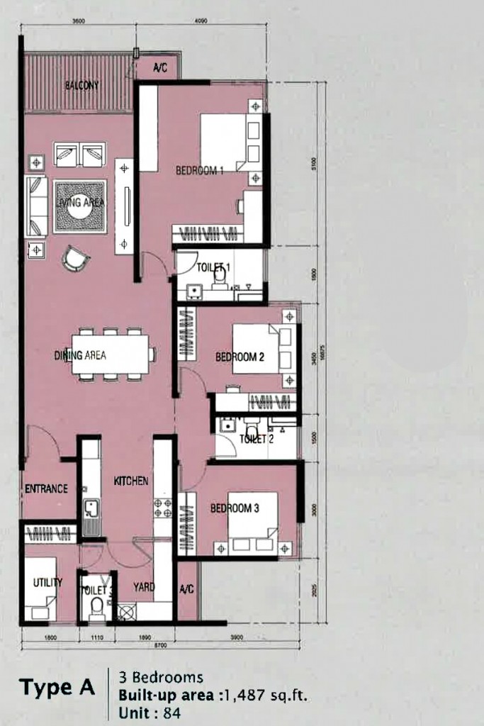
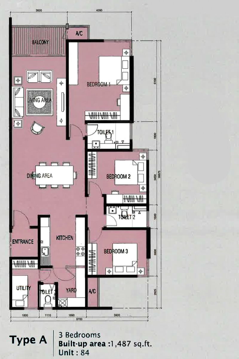
There are two types of Floor Plans available.
Type A, at 1,487sq ft which has 3+1 bedrooms and 3 bathrooms offering excellent 7 acres of Lake Gardens view. There are other Type A units that offer just-as-scenic views such as the waterfront view, the golf course view or city view. The generous balcony affords all these panoramic views. Altogether there are 84 such units for your choosing.
Type B, at 1,219sq ft which also has 3+1 bedrooms and 3 bathrooms but with slightly different and smaller configurations. The 84 Type B units offer waterfront, golf and city views too. See below:

Here are some of the views available to buyers depending on which unit they choose. This is the North West View
There are quite an array of facilities offered. Apart from the 7 acre Lake Gardens, residents may also enjoy swimming and frolicking on the 7th floor podium above the carparks. There are at least 10 recreational facilities there as can be seen in the legend.
As there is no showroom available for personalised observations, here are some of the building’s specifications that may be helpful for buyers’ consideration in making a decision.
where you can choose your units and the direction it will face.
Location
The picturesque waterways of Johor Bahru rivers makes for a sublime home.
And so it is that Marina Residence, situated near the mouth of the tranquil Tebrau River, is offering such a home – magnificent views every which way you look, quietude and solace away from the hustle and bustle… a sanctuary, so to speak.
The 28-storey residence, neighbouring the Bayu Marina Resort in the Tebrau Batu Bakar locale, overlooks the Johor Straits and offers sweeping views of the river coastline and mangroves right up to the Permas Bridge and even Woodlands, Singapore. It is seated so close to the Bayu Marina Resort, one can see its construction activity from the pool area on the 9th floor.
Marina Residence is currently about 20% completed and construction is underway everyday.
The backdrop of Marina Residence, ie Kampung Batu Bakar or Tebrau Batu Bakar as it is called, is in itself an awakening tiger. Once it was a sleepy village, but now − having been designated as part of the Iskandar Development Region Flagship Zone A − has found its place on the map, evolving into a thriving township with businesses, condominiums, resorts and six-lane highways.
So while it offers laid-back tranquillity, it has also begun to pick up pace, hurrying along with rapid development seen particularly at the Tebrau banks, and proffering every modern lifestyle amenity one can think of within reach of its ever-elongating fingertips.
Marina Residence’s locality is bordered by Taman Iskandar, Taman Sentosa, Permas Jaya and so on and so forth. There are many matured “tamans” (housing estates) that border it. Of them all, Permas Jaya is the most prominent, simply because of the shopping, educational and financial services available there.
Permas Jaya
Permas Jaya or Bandar Baru Permas Jaya is a housing estate and light industrial area. (It’s council is MBJB or Johor Bahru City Council, in case you want to know).
There are about 45,000 residents in Permas Jaya residing in areas divided into numbered sections based on the phases when the town was built. There is a nine-hole Golf Course there, beautiful temples, great dining restaurants and shopping complexes in Permas Jaya. The main shopping complex in Permas Jaya is Jusco. Also in Permas Jaya is the international school REAL Schools Cahaya Campus located at Lot 2361, Jalan Persiaran Sri Plentong, Bandar Baru Permas Jaya, 81750, Johor Bahru, Johor.

REAL is an international and private school offering British education. It is located in Permas Jaya. Can you see Jusco’s logo in the background? Permas Jusco is one of the main shopping complexes in Permas Jaya
Taman Sentosa
Taman Sentosa is a town-centre sort of township with small businesses catering to its middle class inhabitants. It is famous for its seafood, durians and, for Singaporeans, cheap petrol. Apparently Hotel Grand Sentosa is a famous landmark, it is even on the map denoting Taman Sentosa.

The views around Marina Residence are breathtaking. This is what will reward residents and make their day everyday
Pasir Gudang
Pasir Gudang is in the Flagship D Zone of the Iskandar Malaysia Development Plan. This area is characterised by its shipbuilding yards and has a population of more than 300,000. Pasir Gudang has Jusco Permas Jaya, which is one of the earliest Jusco branches in Johor Bahru.
Pasir Gudang is the Eastern Gate Development hub of Iskandar Malaysia and is the industrial and manufacturing hub in the southeastern region. This flagship zone covers Pasir Gudang Port, The Pasir Gudang Industrial Estate, Tanjung Langsat Port and the 3,000-acre Tanjung Langsat Industrial Complex.
Connections Everywhere
Permas Jaya has about 45,000 residents who ply between Kampung Bakar Baru, Taman Sentosa and downtown Johor Bahru via the Permas Jaya Bridge as Tebrau River runs between these townships. A second Permas Jaya Bridge has been constructed to reduce traffic jams.
EDL
The new Eastern Dispersal Link (EDL) was opened on 1 April 2012, easing traffic and allowing vehicles from Singapore to drive directly drive into the highway and to Pasir Gudang.
Johor Bahru East Coast Highway
The Johor Bahru East Coast Highway or Johor Bahru-Pasir Gudang Highway, Federal Route is a toll free highway and a part of the Iskandar Malaysia project. It is the fourth east-west-oriented expressway in Iskandar Malaysia after Pasir Gudang Highway, the Pontian-Johor Bahru Link of the Second Link Expressway and the Senai Desaru Expressway.
The Johor Bahru East Coast Highway is connected from Bakar Batu in the city centre to the town of Pasir Gudang, passing through Bandar Baru Permas Jaya and Taman Rinting. This highway passes through the Permas Jaya Bridge and is the alternative route to Pasir Gudang
CIQ Access
Marina Residence is in close proximity to CIQ, the all-important checkpoint for Malaysians going out to work in Singapore and for Singaporeans coming in to Malaysia. CIQ stands for the Customs, Immigration and Quarantine Complex. It is located a mere 5 to 6km away on a smooth traffic-lights free drive via the EDL. (See above on EDL).
Proximity to CIQ is an all-important factor for those who commute often to and fro Singapore. Purchasing a unit nearby would be an astute decision.
Summary
The Tebrau Coastline is filled with developments as can be seen in the photos. Each has its own plus and minus points. All offer more or less the same amenities.To be fair on Marina Residence, one should wait until the website and showrooms and more information are ready before making any decision. However bookings are open now for those who have already made their decisions.


















