Indah Heights, located at the heart of Taman Skudai Indah 2 is soon to to be the ‘go to area’ for those who can afford spending the millions in Johor. Gated and secluded, the residents will not have any woes of traffic and high density population. An ideal place for a family to live, carefreely.
Phase 12A Precinct 12 Taman Desa Tebrau: A numbered review.
This project is the latest offering by Plenitude Berhad, the developer responsible for the growth of Taman Desa Tebrau into what it is today – a mature, established township.
Phase 12A is the second phase to Precinct 12 Taman Desa Tebrau development (Phase 12B being for the bungalow units that were launched way earlier, and are now completed with VP), offering 92 units of Semi-Ds and only two units of Bungalows.
On that note, happy reading on this review for Phase 12A of Precinct 12 Taman Desa Tebrau.
Project Details.
Address: Taman Desa Tebrau, Ulu Tiram, Johor Bahru, Johor
Land Title: Residential
Tenure: Freehold
Site GPS Coordinates: 1°33’48″N 103°47’40″E
Website: http://www.plenitude.com.my/p_desatebrau.html
Expected Date of Completion: January 2016
Property Details
Property Type: Semi-D and Bungalow
Total Units: 94
Built Up in Sq. Ft.: 3743, 3878, 4004, 4164, 4190, 4221, & 4339
Listing Price: Starts from RM1,700,000
Maintenance Fee per Sq. Ft.: Starts from RM250 per month
Special Features:
- Freehold
- Low density (only 94 units)
- Fibre-optics connectivity ready
Unit Type:
- 3 Storey Semi-D Type A – 4 + 1 Rooms, 5 Baths, 3878 Sq. Ft.
- 3 Storey Semi-D Type B – 5 + 1 Rooms, 6 Baths, 4164 Sq. Ft.
- 3 Storey Semi-D Type B1 – 5 + 1 Rooms, 6 Baths, 4190 Sq. Ft.
- 3 Storey Semi-D Type C – 5 + 1 Rooms, 6 Baths, 4004 Sq. Ft.
- 3 Storey Semi-D Type C1 – 5 + 1 Rooms, 6 Baths, 3743 Sq. Ft.
- 3 Storey Bungalow Type D – 5 + 1 Rooms, 6 Baths, 4339 Sq. Ft.
- 3 Storey Bungalow Type E – 5 + 1 Rooms, 6 Baths, 4221 Sq. Ft.
Project Details
Phase 12A Precint 12 Taman Desa Tebrau: The twelfth phase of business.
Freehold. Low density. Superb location.
These are the three things that result in the starting listing price of a Semi-D unit in Phase 12A Precint 12 Taman Desa Tebrau from a whopping RM1.7 million.
There are seven unit types offered altogether whereby two of them are bungalow types.
Type A 3-Storey Semi-D is 3878 square feet in built-up size with 4 plus 1 rooms, and 5 bathrooms. Although not the smallest unit offered, the third floor only houses the second family room and nothing else. There are 36 units offered for Type A where eight of them are bumi units.

Specifications for Semi-D Type A of Phase 12A Precint 12 Taman Desa Tebrau. Pic taken from the website.
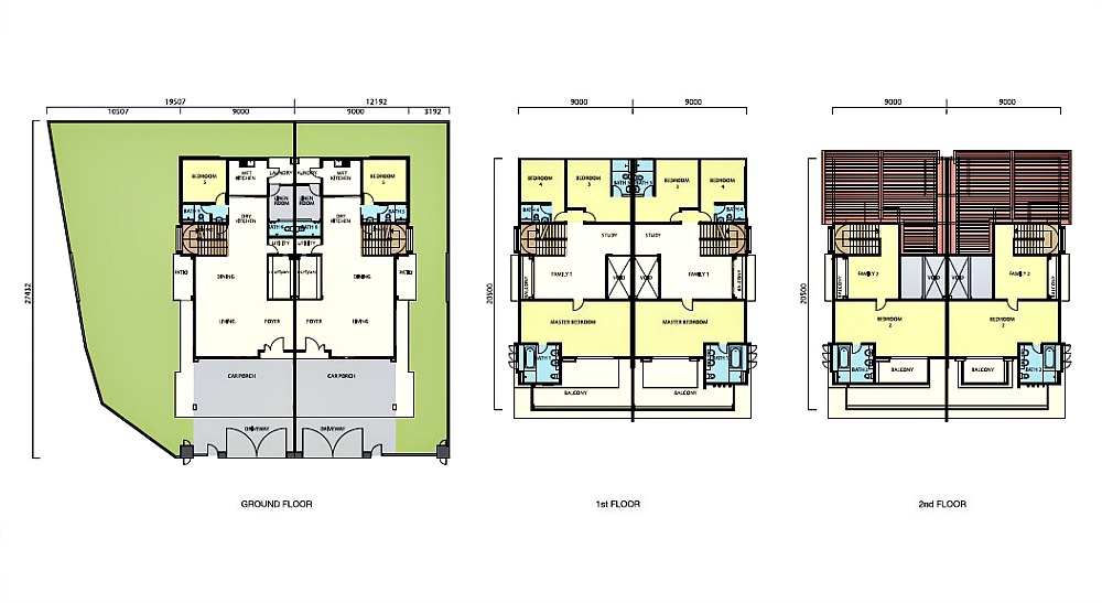
Type B and Type B1 3-Storey Semi-D are 4164 square feet and 4190 square feet in built-up size respectively, both having 5 plus 1 rooms and 6 bathrooms. These two types have the biggest balcony space on both the second and third floors. There are 22 units offered (11 each) for Type B and Type B1 where four of them (two each) are bumi units.

Specifications for Semi-D Type B & Type B1 of Phase 12A Precint 12 Taman Desa Tebrau. Pic taken from the website.

Layout for Semi-D Type B & Type B1 of Phase 12A Precint 12 Taman Desa Tebrau. Pic taken from the website.
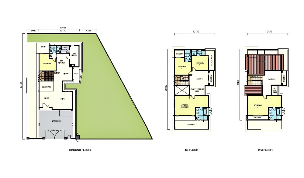
Type C and Type C1 3-Storey Semi-D are 4004 square feet and 3743 square feet in built-up size respectively, both having 5 plus 1 rooms and 6 bathrooms. These two types have smaller balcony space on the third floor as compared to Type B and Type B1. There are 28 units offered for Type C where four of them are bumi units, and only six units offered for Type C1 where two of them are bumi units.

Specifications for Semi-D Type C & Type C1 of Phase 12A Precint 12 Taman Desa Tebrau. Pic taken from the website.

Layout for Semi-D Type C & Type C1 of Phase 12A Precint 12 Taman Desa Tebrau. Pic taken from the website.
Type D 3-Storey Bungalow is 4339 square feet in built-up size while Type E 3-Storey Bungalow is 4221 square feet in built-up size with both having 5 plus 1 rooms and 6 bathrooms. There are however only one unit offered for each of these types, both of which are non-bumi units

Specifications for Phase 12A Precint 12 Taman Desa Tebrau Bungalow Type D. Pic taken from the website.

Specifications for Phase 12A Precint 12 Taman Desa Tebrau Bungalow Type E. Pic taken from the website.
All the units come unfurnished except for the show units which depending on unit type, will be sold for an extra cost of around RM200,000 and above (since that is the price quoted for the interior design work and furnitures etc.).
Though this project has no fancy or modern extras like solar powered hot shower, all master bathrooms will be fitted with a bath tub. Which means that except for Type A, all other types will have two bath tubs since their bedroom 2 can be considered a second master bedroom, both having the same room size and same bathroom size.
Facility wise, except for security, a small park, a children playground and landscaping here and there, there literally is nothing else for the residents of Precinct 12. Bad news: No lifestyle facilities like swimming pool or gymnasium. Good news: Cheaper maintenance fee but even that starts from around RM250 per house per month.
The price may seem a bit exorbitant but then again, that’s only because the units sold are huge in built-up sizes.
And taking into account the prime location of Taman Desa Tebrau, the pricing of these homes may just be justified.
Location
Johor and the Five Iskandar Zones.
I say Johor, you say… golf caddy, ustaz, and runaway lawyer? Oh dear.
Keeping abreast on noble scandals aside, it’s unthinkable for a Malaysian not to know of Johor’s royal family. After all, they’re the ones with their own private army (Royal Johor Military Force), a football team (JDT Club) owned by the crowned prince of Johor which recently won the AFC Asian Cup, and their own royal heartthrob (TMJ Tunku Ismail).
This constitutional monarchy has been in power of Johor, the southernmost state of Peninsular Malaysia since the early 16th century and has remained powerful till today.
Take the current Sultan of Johor, Sultan Ismail Ibrahim for example. A well-known investor and filthy rich to boot, his purchase of a Mack truck rumoured to cost well over $1 million USD shows just how strong Johor state is financially.
The renowned filmmaker, the late Yasmin Ahmad is also a Johor-born (from Muar to be exact), a fact Johoreans can be proud of.
But then again, Johor is not without faults. Famous for being a crime capital, Johor was even once portrayed by a Lithunian-born artist, Ernest Zacharevic, through a mural of a Lego woman on one side of a wall, and a knife wielding Lego man on the other. A pretty accurate observation on Johor’s pride over the international theme park, Legoland Malaysia in Nusajaya, and denial over the state’s high crime rate.
Even when the artist later (due to much critics) added a Lego policeman trailing the Lego criminal, the mural was still whitewashed by the local authority, causing Ernest to retort by photoshopping a picture where the knife is replaced with a flower bouquet, and a ‘Visit Malaysia 2014’ logo added. Go figure.
Hopefully through the Iskandar Malaysia project that’s aimed to be finished by 2025, things will change for the better for Johor.
Established in 2006 and named after the late Sultan of Johor, Almarhum Sultan Iskandar, Iskandar Malaysia (formerly known as Iskandar Development Region) comprises of five flagship zones covering a land size of 2,217 square kilometres – roughly more than three times the land size of our neighbouring country, Singapore.
Expected to have a total population of 3 million, a workforce of half of that (1.5 million) and a Gross Domestic Product (GDP) per capita of $31,100 by 2025, one is not wrong to say that Iskandar Malaysia looks like the rise of a mini country, aimed to capitalise on the economic collaborations with Singapore just like how Shenzhen and Hong Kong complement one another.
The five flagship zones of Iskandar Malaysia are Flagship Zone A, Flagship Zone B, Flagship Zone C, Flagship Zone D, and Flagship Zone E.
The first flagship zone, Flagship Zone A, covers Johor Bahru City, Larkin, Mount Austin, Maju Jaya, and Kempas among others. Set to focus on financial and commercial activities, key landmarks include Danga Bay and the Bangunan Sultan Ibrahim (BSI) CIQ Complex.
The second flagship zone, Flagship Zone B, covers Nusajaya, Jelutong, Gelang Patah, and Pulai among others. Set to focus on mixed property development and Johor’s administrative, key landmarks include Puteri Harbour, Kota Iskandar, Edu City, Legoland Malaysia, and Medini Iskandar Malaysia.
The third flagship zone, Flagship Zone C, covers the Tanjung Pelepas area and is also known as the Western Gate Development. Set to focus on port and marine services, key landmarks include Port of Tanjung Pelepas, Ramsar Heritage Park, and the Malaysia-Singapore Second Link.
The fourth flagship zone, Flagship Zone D, covers Pasir Gudang, Masai, and Tanjung Langsat among others, and is also known as the Eastern Gate Development. Set to focus on industrial and manufacturing, key landmarks include APTEC City, Johor Port, Tanjung Langsat Industrial Complex, and Pasir Gudang Circuit.
The fifth flagship zone, Flagship Zone E, covers the Senai, Skudai, Saleng and Kangkar Pulai among others. Set to focus on airport services and electronics manufacturing, key landmarks include the Sultan Ismail International Airport (Senai International Airport), MSC Malaysia Cyberport, Senai Airport City, and Johor Premium Outlet.
Precinct 12 Taman Desa Tebrau, as the name rightly indicates is located in Taman Desa Tebrau, a mature address neighbouring other well-established townships like Taman Mount Austin and Taman Molek.
Located roughly 14 kilometres away from Johor Bahru City Cenre, Taman Desa Tebrau is in Iskandar Malaysia Flagship Zone A, spanning 965.7 acres of land of terrace houses, semi-detached homes, bungalows, shop offices, and high-rise apartments.
Some of the major highways around the neighbourhood include Desa Tebrau Interchange (that’s directly linked to Taman Johor Jaya, Johor Bahru, and Kota Tinggi), Lebuhraya Pasir Gudang, and North South Expressway (that leads to Malaysia-Singapore Second Link),
The immediate amenity for residents of Taman Desa Tebrau (no matter which precinct) is of course the shopping centre, Jusco AEON Tebrau City. Located less than three kilometres away, this shopping mall is so popular among Johoreans and Singaporeans alike that it had to add a mega carpark (recently completed) to accommodate the huge crowd.
Need to do some light shopping far away from the AEON mob? No worries. There are extensive rows of shophouses located along Jalan Harmonium 37 just before the mall, belonging to Plenitude Berhad, the developer for Precinct 12 (and other precincts) of Taman Desa Tebrau. From clinics to restaurants to even (oddly) karaoke supplies shop, there’s even a huge new glass building between the shophouses supposedly to be Plenitude’s new headquarter.

Phase 12A Precint 12 Taman Desa Tebrau – Amenity – More shophouses along Jalan Harmonium 37 and the new Plenitude HQ
Another good news is the fact that there is also a hospital literally beside AEON Tebrau called Sultan Ismail Hospital. In short, convenience is Taman Desa Tebrau’s middle name.
In any case, if one were to get sick and tired of Tebrau, one can always drive to other attractions in other parts of JB. Take Kilang Bateri for example that’s located 15 kilometres away from Taman Desa Tebrau. Housing shops and eateries, it was once actually an Eveready Battery Factory, opened somewhere around September 2015 into a vintage, hangout place. The foods there are awesome, and the businesses offered are aplenty. A definite must checkout.

Phase 12A Precint 12 Taman Desa Tebrau – Attractions in Kilang Bateri including a skate park and busking performance
If however you’re still doubtful of the area’s prime location, the next IKEA store rumoured to be opened after IKEA Cheras is in Tebrau, also beside AEON Tebrau. How sure is the news? Well, having a few position openings like Store Sales Manager and HR Manager for IKEA Tebrau in Jobstreet.com seems definite enough doesn’t it?
“Let’s get ‘cher as’ to Cheras” is d**n catchy by the way!
Let me have a go: How now brown cow, Tebrau.
No? Okay.
Analysis
Phase 12A Precint 12 Taman Desa Tebrau: Twelve times table.
No, there won’t be twelve properties comparison. The title is chosen simply because it’s catchy.
There will however be a price comparison between this project and the future development by Sunway Group called Sunway Lenang Heights in Taman Molek. Let’s also compare Phase 9D/9E terrace homes development also by Plenitude Berhad in Taman Desa Tebrau and Taman Redang Lakeview by Rawhide Sdn Bhd, also in Taman Molek.
That way, you’ll understand better the overall worth of Taman Desa Tebrau.
| Name | Tenure/Land Title | Approximate Listing Price | No of Units | Average Built-up | Type |
| Phase 12A Precinct 12 Taman Desa Tebrau | Freehold/Residential | Starts from RM1.7 million | 94 | 4100 Sq. Ft. | Semi-D and Bungalow |
| Sunway Lenang Heights | Freehold/Residential | Starts from RM1.6 million | 112 | 4000 Sq. Ft. | Semi-D and Bungalow |
| Phase 9D/9E Taman Desa Tebrau | Freehold/Residential | Starts from RM650,000 | 250 | 3000 Sq. Ft. | Terrace |
| Taman Redang Lakeview | Freehold/Residential | Starts from RM600,000 | 133 | 2000 Sq. Ft. | Terrace |
Both townships did well in scoring freehold tenure status and residential land title. Taman Molek is one of the ‘it’ place so it’s no surprise that the prices of the homes there are quite competitive to the bigger units of houses (for both terrace and Semi-D) in Taman Desa Tebrau. Nevertheless, landed properties in Johor Bahru have shown steady trajectory up over the past few years even after the cooling measure in Iskandar Malaysia took place last year, as well as over 2015’s bad economy.
Plenitude Berhad: New-age old-school.
This developer is the one responsible for developing most of Taman Desa Tebrau. Incorporated in the year 2000, Plenitude Sdn Bhd became a public limited company in the same year and renamed Plenitude Berhad.
And the fact that the piece of land where IKEA Tebrau will be built was sold to Ikano by Plenitude shows just how strong they’re financially.
Overall response for Plenitude is fairly good. As the title of this section indicates, although this developer started quite recently about 15 years back, some people are labelling them as old-school developer.
Why? Take Precint 12 for example. For a Semi-D and Bungalow development, isn’t it old-school to just stick to houses without providing a modern, common clubhouse? Well at least that’s what most other developers are offering in this day and age anyway.
But the old-school style does has its merits. Like how some people commend them for doing honest business e.g. not overselling their properties with marketing gimmicks (Future train station! Upcoming shopping mall! Imminent space shuttle launch field!)… you get the gist.
Like during the selling of Phase 9D/9E, there were already rumours of IKEA Tebrau, but as one can see from the brochure, it was never mentioned as a selling point. Only later once the rumour grows truer (in a way) did they then include it for Phase 12A brochure.
All in all, a reliable developer indeed.
Summary
Phase 12A Precint 12 Taman Desa Tebrau: The conclusion.
Apart from the lack of desirable facilities, this project turns out not so bad.
Location is undoubtedly good, though still with room for improvements. Plenitude needs to up their game a bit though so that potential buyers (especially from the newer generations who are more into lifestyle) can better relate to their products.
If one were to argue it’s too expensive, imagine a future where the economy is more stable and buying power increases, do you think the price will go down? The key is to outpace inflation.
So if you’re looking for a nice place to settle down, this project is actually worth considering.





























