Curvo Residences is the final residential phase of the first integrated development in Setapak, SkyArena.
Eco Sanctuary, by Eco World Development Group Bhd, is a 308.72-acre parcel of land sandwiched between ILM Land’s 1,879-acre Bandar Rimbayu and Tropicana Corp Bhd’s 860-acre Tropicana Aman in Telok Panglima Garang.
The Eco Sanctuary parcel was acquired from Tropicana Corp’s Tropicana Aman and together, the three developers will be co-developing the former Kuala Langat plantation land called Canal City into separate townships, each with their own unique sets of attributes.
For Eco Sanctuary, the direction will be towards turning the land bank into a luxury enclave with eco-inspired mixed residential and commercial developments. The entire development is estimated to take eight years with the completion date set around 2022.
Terraza (Double-Storey Terrace), Monterey (Semi-Ds, Zero-Lot Bungalows and Bungalows), and Parque Residences (Condominium) represent their first phase of development which are luxury residential homes incorporating intelligent and sustainable elements as well as aesthetically-pleasing designs within gated and guarded enclaves. (Click the highlighted links to read about the other developments)
As Terraza is gated and guarded, there are no gates for the individual units. Hence porches can park up to 4 cars or more (in tandem) as the porch areas also feature a wide buffer zone. The landsize of the units ranges from 24’ x 85’ to 26’ x 80’.
Terraza’s Belleza villas Type A/A1/A2 and A3 feature an interesting pavilion design which is connected but yet, not connected to the house as you will see in the layout plans below.
For this reason, these Types don’t feature a 4th bedroom downstairs but the pavilion itself can be turned into the 4th bedroom or anything else according to one’s imagination and lifestyle needs. The unit type does have 4 bathrooms + 1 powder room, balconies, and a utility room (which can be turned into a maid’s room) and a yard.
That means the rest of the unit types, along with Belleza Type B/B1/B2 and B3, sport 4 bedrooms and 5 baths, along with utility room, yard, many balconies and enough porch space to park up to 4 cars or more (in tandem).
To read more about the developments in this area, goto: Klang Valley’s latest suburban hotspot
To read more on the development of the township, goto: Better Living By Design.
Project Name: Terraza Residences, Eco Sanctuary
Developer: Eco Sanctuary Sdn Bhd
Sales Gallery: EcoWorld Gallery @ Eco Sanctuary, Eco Sanctuary Sdn Bhd (1076483-V), Lot 41296, Persiaran Eco Sanctuary, 42500 Telok Panglima Garang, Selangor.
Tel: +603 3344 2525 Fax: +603 3341 6125
Email: ecosanctuary@ecoworld.my
GPS Coordinates: N 2° 56′ 47.1″ E 101° 32′ 30.7″
Waze: 2.946407, 101.541855
Website: http://ecoworld.my/ecosanctuary
Total Land Area of Eco Sanctuary Development: 309 acres
Total Land Area of Terraza Residences: 40 acres
Property Type: 2-storey Terrace
Land Title: Residential ─ Strata Title
Tenure: Leasehold 99 years
Unit Types and Built Up:
Belleza Villa (Type A, A1, A2, A3 & B, B1, B2, B3 – Terrace Villa) | Total Units: 68 for Type A/A1/A2/A3 | Total Units: 186 for Type B/B1/B2/B3 | Built-up: 2,596 sq ft (Intermediate Type A/A1), 2,965sq ft (Corner Type A2/A3); 2,537sq ft (Intermediate Type B/B1), 2,788 sq ft (Corner Type B2/B3) | Minimum Price: Type A/A1/A2/A3: RM1,225,400, Type B/B1/B2/B3: RM1,088,000, Maximum Price: Type A/A1/A2/A3: RM1,812,800, Type B/B1/B2/B3: RM1,729,200 |
Hermosa Villa (Type C, C1, C2, C3 & D, D1, D2, D3 – Terrace Villa) | Total Units: 66 for Type C/C1/C2/C3 | Total Units: 38 for Type D/D1/D2/D3| Built-up: 2,741sq ft (Intermediate Type C/C1), 2,848 sq ft (Corner Type C2/C3); 2,622sq ft (Intermediate Type D/D1), 2,920sq ft (Corner Type D2/D3) | Minimum Price: Type C/C1/C2/C3: RM1,355,200, Type D/D1/D2/D3: RM1,301,300, Maximum Price: Type C/C1/C2/C3: RM1,809,500, Type D/D1/D2/D3: RM1,828,200 |
Price per sq ft: average: Average RM500++psf
Maintenance Fee: Around RM550 a month
Listed Price of 2-storey Terrace range: From RM1,088, 000 to RM1,828,200
Expected Date of Completion: July 2018
Facilities
- Gated and Guarded with 10ft perimeter fencing, CCTV and intercom systems connecting all units with a central guard house to facilitate visitor management system
- Eco Sanctuary Exlcusive Residents Only Clubhouse with full facilities such as pool, sports courts, gym and so on
- Bicycle and Pedestrian Paths integrated into landscaping
- Relaxation Gazebos throughout green areas and for each precinct
- Green areas are 30% of land Area featuring more than 1,200 trees and plants from 80 species
Connectivity and Accessibility
Eco Sanctuary is near to Kota Kemuning, Shah Alam, giving you access to a comprehensive range of excellent amenities within a 5 km radius. The township is also well served by Klang Valley’s network of major expressways and arterial roads. See map above.
Project Details
Eco Sanctuary is designed to be a tranquil haven replete with cascading terraces, flowing brooks, and verdant landscaping and forests. With the Sustainability and Health Empowered Lifestyle masterplan in place, this 308-acre, eco-themed township development offers the ideal environment in which to nurture a sustainable and rejuvenating lifestyle that is at once modern yet close to nature.
Connected to five major highways like KESAS, LKSA, ELITE, SKVE and West Coast Expressway, with many major trunk roads in between and new ones being planned, accessibility doesn’t come into question.

The Eco Sanctuary portion of the land is denoted in red. The area in grey on its left is Tropicana Aman while the area in white to its right is Bandar Rimbayu
Terraza Residences
Terraza Residences comprises 358 terrace homes built over a 40-acre parcel in a gated and guarded enclave. The enclave is called Terraza and it is made up of Belleza Villas (24 X 85) in all their variations as well as Hermosa Villas (26 X 80) and all their variations.
Some Belleza and Hermosa designs sport interesting and innovative architecture as you will see below.
But first, take a look at the Terraza Site Plan below.
Belleza Villa Type A at 24’ X 85’

Belleza Villa Type A is especially interesting as it has the innovative design of a 10’ X 13’ “glass box” called a Pavilion. Here is the front view of the facade

Here is the back view of Belleza Villa Type A 10’ X 13’ “glass box” called a Pavilion. Look at the picture and you will see 4 such Pavilions, although only one has been marked out. The Pavilion design is a touch of modernism and can be converted into anything you like. Some ideas include a TV and private bar, a home recording studio or art studio or a games room. This Pavilion is connected and yet disconnected from the main unit in that it is separated from the home by a few feet. This means guests do not have to go through the house to access it.

Here is another view of the Pavilion. It is located within the land area of the home, so it is a part of the home
Floor Plan of Belleza Type A and Type A1
These are Intermediate lots ─ Type A and Type A1 (2,596sq ft). One interesting aspect of this design is that the Master bedroom is located at the back of upstairs and not in front. Furthermore, Belleza Type A and Type A1, doesn’t have a fourth bedroom as the space for a fourth room is taken up by the Pavilion. But this type of design will suit many people’s lifestyle and offers a quaint alternative.
Floor Plan of Type A2 and Type A3
Type A2/A3 Belleza Villa at 2,9765q ft are end/corner lots. The design is the same as Type A and Type A1
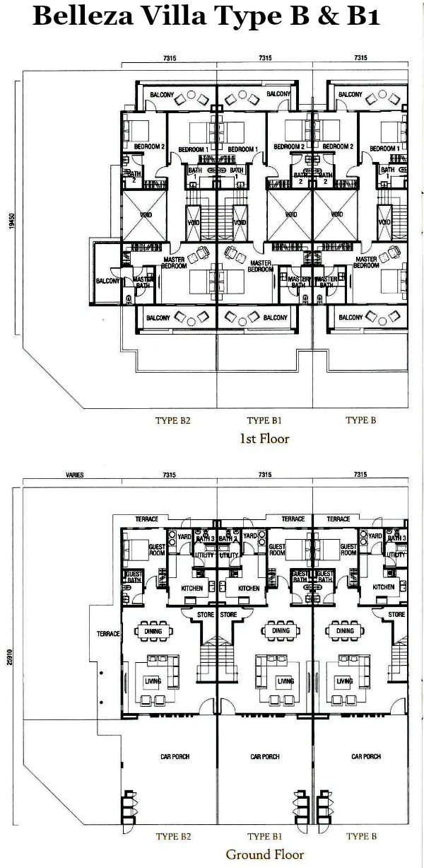
Belleza Villa Type B at 24’ X 85’
Floor Plan of Type B and Type B1
Belleza Type B and Type B1 at 2,537sq ft are intermediate lots. The floor plan here is quite conventional. It has 4 bedrooms
Floor Plan of Type B2 and Type B3
Same layout here but Type B2 and B3 (2,788sq ft) are end and corner lots.
Hermosa Villa Type C at 26’ X 80’
Floor Plan of Type C and Type C1
Hermosa Villa is 2ft wider at the front than Belleza. That’s the main difference. Hermosa Type C also has an innovative design if you will observe the Floor Plan. The utility room and back bathroom and yard can be locked out of the main unit. It has four rooms with the downstairs bedroom in the front of the house, not the back as in more conventional designs.

Type C2 and C3 (2,848sq ft) are end and corner lots. These units sport very huge terraces and balconies.
Hermosa Villa Type D at 26’ X 80’
Floor Plan of Type D and Type D1
Hermosa Type D and D1 (2,622sq ft) sports a more conventional design.
Floor Plan of Type D2 and Type D3
Type D2 and D3 (2,920sq ft) are end and corner lots. These units sport very huge terraces and balconies.
Specifications for Terraza’s Belleza and Hermosa
Facilities
Apart from the residents’ only Clubhouse, here are some very appealing other facilities for residents.
Location
Eco Sanctuary is actually sandwiched in between 1,879-acre Bandar Rimbayu and 860-acre Tropicana Aman. Eco Sanctuary’s 308.72-acre parcel was acquired from Tropicana Corp.
The total tract of over 3,000 acres encompassing all three above-mentioned townships is in what was formerly called Canal City, a 5,000-acre flood barrier tarn connected to both Sungai Klang and Muara Sungai Langat in Tanjung Dua Belas and Teluk Panglima Garang, Kuala Langat.
This was back in 2003. In the ensuing years, the area was restructured and sold and today, what one sees rising up from the vast expanses of flat land ─ tagged by Focus Malaysia as Klang Valley’s Latest Suburban Hotspot (see above link) ─ are brand new self-sustaining cities complete with residential, commercial, educational and other growth-supporting amenities.
“The key attraction of this new residential hotspot,” noted the business newspaper, “is its strategic location not far from major townships like Kota Kemuning (developed by Gamuda), Putra Heights (Sime Darby) and Bandar Saujana Putra (LBS Bina Group). It is smack in the middle of fast-growing areas of the affluent Klang Valley.”
But although vibrant urbanisation is envisaged, much of the tranquility of the former Canal City is still being retained in the blueprint of all three township’s masterplans with water features, canals, ponds, lakes and Mother Nature in all her greenest splendour, landscaped into the environs.
Take Eco Sanctuary, for example. Working with the Forest Research Institute of Malaysia, more than 1,000 trees and many more flowering and non-flowering plant species have been identified and will be planted in the eco-themed development to create mature boulevards and parks. Green spaces are 30% of the land area, backdropped by a secondary forest, with additional areas reserved for cycling and walking paths.
Eco Sanctuary launched Phase 1 of its landed properties in mid 2015 with the completion date of the projects set for 2018. Meanwhile, the nearest mature township with all amenities in, including golf courses, is in Kota Kemuning. Eco Sanctuary is around 8.2km to Kota Kemuning according to the google maps above.

Here is a google satellite map showing the proximity of all 3 townships of Eco Sanctuary, Tropicana Aman and Bandar Rimbayu.
Getting There
The most straightforward way to get to Eco Sanctuary, is through Kota Kemuning. If you use the KESAS Highway, slip off at Exit 5068 to Kota Kemuning, Shah Alam. If you’re coming from elsewhere, there are, of course, other routes you can use.
If using the route through Kota Kemuning, you will arrive at the new Shah Alam section, just newly developing among plantations, called Section 29. After you pass this intersection, you will be guided the rest of the way by the many banners hung along the way.

The Section 29 signboard that marks the start of the route into Telok Panglima Garang where Eco Sanctuary is situated

Road signs to Eco Sanctuary are situated at strategic points along the way as well as in Kota Kemuning itself
The iconic towers of Eco Sanctuary. On the right, above the hill, is where the Show Gallery and all the show units are located
The Nearest Matured Neighbourhood
Eco Sanctuarty is still in the early stages of development but all the show units are up for your viewing pleasure. You will discover that Kota Kemuning, although said to be 8.2km away which sounds far, is really only a just a short and pleasant drive away.
Kota Kemuning is a bustling, affluent area demarcated into many sections, like Section 30, 31 and so on. They house all kinds of amenities such as primary and secondary schools, banks from Hong Leong to CIMB, large electronic stores like Onking, budget hotels like Orange, hospitals like Columbia Asia, Educational Institutions like MIT, petrol stations, shopping areas and supermarkets like Hero and Gamuda Walk, food and beverage restaurants like Starbucks, Mac Donalds, PapaRich, Old Town White Coffee, Secret Recipe and even golf courses such as Bukit Kemuning Golf and Country Resort and Kota Permai Golf and Country Club. Generally-speaking, Section 31’s Jalan Anggerik Vanila and all its subroads in Kota Kemuning is where it’s all at, which explains its exceptional vibrancy.
Take a look.

Bustling Anggerik Vanilla, Kota Kemuning. Red arrows point out some of the fast food joints and franchises, mosque, hospital and shopping centres

Anggerik Vanilla, Kota Kemuning Section 31 is a haven for banks. Seen here is RHB bank. There are many others
Analysis
Although relatively new, Eco World Development Group Bhd which was set up by the experienced hands of SP Setia Bhd’s former directors and executives, has made its mark in the industry. The hallmark of SP Setia’s past developments, however, can still be seen, through such iconic developments as Setia Eco Park, Setia Alam etc ─ all of them being green developments with a slant towards preserving ecology and the environment.
The follow-through is evident in Eco World Group’s products. On new frontiers, it has charted some very impressive milestones.
Today, the eco brand is spread across three key economic regions in Malaysia with 17 development projects in total that include new townships, integrated commercial developments, luxury high-rise apartments and green business parks.
The Group presently has approximately 7,443.9 acres of landbank with a total gross development value (GDV) of RM81 billion.
Outside of Malaysia, through Eco World International, the brand has also gone on to London, United Kingdom and Sydney, Australia.
On home ground, some of its Malaysian residential and/or commercial or industrial developments include:
- Bukit Bintang City Centre
- Eco Sanctuary, Telok Panglima Garang
- Eco Tropics, Pasir Gudang, Johor Bahru
- Eco Business Park 1 industrial hub, Tebrau, Iskandar, Johor Bahru
- Eco Business Park III, (retail, office, showroom and warehouse) Tebrau, Iskandar, Johor Bahru
- Eco Terraces, Penang
- Eco Meadows, Penang mainland
- Eco Sky, Taman Wahyu, Kuala Lumpur
- Eco Majestic, Semenyih-Kajang
- Eco Botanic, Nusa Cemerlang Industrial Park, Iskandar Malaysia, Johor
- Eco Spring, Tebrau Corridor, Iskandar Malaysia, Johor Bahru
- Eco Summer, Iskandar Malaysia, Johor Bahru
| Name of Project | Tenure | Price PSF | Built-Up | Launch Prices |
| Terraza Residences (across Belleza and Hermosa), Eco SanctuaryTelok Panglima Garang | LHoldstrata | RM500++ | 2,537sqft ─ 2,920sqft | RM1,088,000 ─RM1,828,000 |
| Bayan Residences, Tropicana Aman, Telok Panglima Garang | LHoldstrata | RM350++ | 2428sqft ─ 2852sqft | RM858,800 ─ RM1,554,800 |
| Wisteria Residences, Rimbayu, Telok Panglima Garang | LHoldstrata | RM300++ | 2,388sqft ─ 2,492sqft | From RM936.800 |
Summary
As Eco World’s first luxury township in the Klang Valley, no leaf has been left unturned to ensure that Eco Sanctuary follows the group’s ethos of delivering ‘World Class Eco Living’.
Sure, it is not yet a booming community but everything has been put in place to ensure it becomes so in the future.
Eco Sanctuary’s chief advantage is its locality. The rest is inside the sanctuary itself which can be seen through its quality, spacious, intelligent homes surrounded by the splendour of nature like cascading terraces, flowing brooks and a verdant landscaping and forests. In concert, they offer the ideal environment in which to nurture a sustainable and rejuvenating lifestyle.
Eco Sanctuary is all about Lifestyle or ‘The Good Life’ and is positioned a little differently from the other two neighbouring developments, reflected by its slightly higher prices. Still, it is a good buy.
If you are looking for a safe, secure, serene but modern, spacious, luxurious and eco-friendly haven to live your life and bring up your family while still maintaining the lifestyle that keeps your station in life, do keep in mind ─ Eco Sanctuary.



































