Alanis Residence Warisan Puteri Sepang
Warisan Puteri, Kota Warisan, Sepang, Selangor
RM 335,000
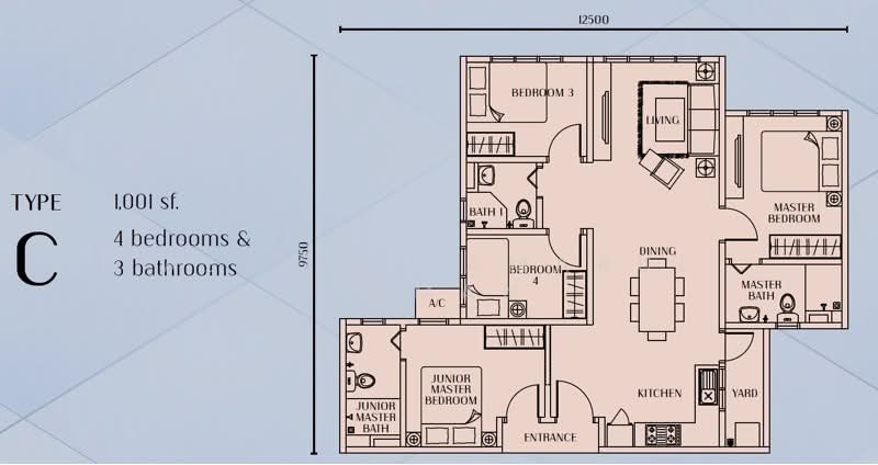
4
BT
3
BM
1,001
kps (lantai)
RM 335
PSF (lantai)

Gambar

Pelan Lantai
Tentang hartanah ini
Arena Residence Warisan Puteri Sepang Baru
Arena Residence @ Kota Warisan Puteri Dengkil Selangor
PAKEJ JUALAN:
- Bumi & bukan bumi boleh beli
- PERCUMA Perabot (Kitchen Cabinet, Fridge, Wardrobe, Aircond, Kipas, Lampu)
- PERCUMA Yuran Guaman SPA & Yuran Guaman Pembiayaan
PAKEJ JUALAN:
- Bumi & bukan bumi boleh beli
- PERCUMA Perabot (Kitchen Cabinet, Fridge, Wardrobe, Aircond, Kipas, Lampu)
- PERCUMA Yuran Guaman SPA & Yuran Guaman Pembiayaan
Kemudahan
Air conditioner
Modern kitchen furnishing
Peti sejuk
Wardrobe
Kemudahan bersama
Bbq
Dewan serbaguna
Gim
Keselamatan 24 jam
Kemampuan
Mampukah saya membeli hartanah ini?
Beritahu kami pendapatan dan perbelanjaan bulanan anda untuk melihat sama ada rumah ini sesuai dengan bajet anda.
Perincian Pinjaman Gadai Janji
Anggaran Bayaran Balik Bulanan
RM 0 / bulanan
RM 0 Prinsipal
RM 0 Faedah
Kos Pendahuluan
Jumlah Bayaran Pendahuluan
RM 0
Bayaran Pendahuluan
RM 0 Jumlah Pinjaman dari 0% nilai pinjaman
Soalan Lazim
Seunit di Sepang, Selangor dijual pada harga RM 335,000.
Tidak.
Warisan Puteri, Kota Warisan, Sepang, Selangor.
Anggaran bayaran bulanan pinjaman ialah RM 1,404 / bulanan.
Terokai Pilihan Lain Di Dalam Dan Sekitar Sepang
Berdasarkan kriteria hartanah, anda mungkin berminat dengan yang berikut
Servis Apartment Untuk Dijual




