Eaton Residence
28 Jalan Kia Peng, KLCC, KL City Centre, Kuala Lumpur
RM 2,644,500
3
BT
3
BM
1,668
kps (lantai)
RM 1,585
PSF (lantai)
Tentang hartanah ini
Eaton Residences KLCC facing 3 Bed 3 Bath
KLCC View | Northwest Facing
RM 2,644,500
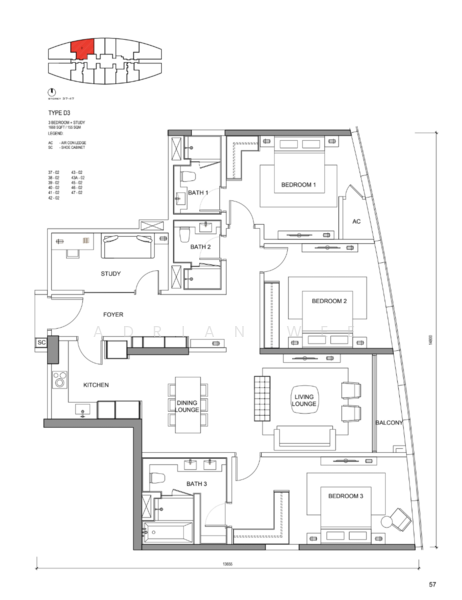
Type D3 represents one of the most spacious and distinguished layouts at Eaton Residences, crafted for homeowners who appreciate expansive interiors, premium detailing, and a commanding city skyline view. With 1,668 sq ft of thoughtfully designed space, this residence is perfectly suited for families or buyers seeking a luxury home in an exclusive high-rise address.
Key Features
Northwest-Facing with KLCC View
Enjoy an impressive, unobstructed view of the KLCC towers and the vibrant Kuala Lumpur skyline. The northwest orientation offers striking evening cityscapes and comfortable daylight conditions.
Expansive Living and Dining Area
A wide, open-plan configuration enhances spatial flow, creating an ideal environment for both daily living and hosting guests.
Well-Zoned Layout for Privacy
Bedrooms and private spaces are strategically separated from the main living area, offering both comfort and functionality for families.
Premium Finishes Throughout
Modern fittings, refined materials, and floor-to-ceiling windows create a luxurious atmosphere that complements the residence’s upscale positioning.
Generous Master Suite
A large master bedroom with ample wardrobe space and a hotel-inspired bathroom provides a private retreat within the home.
Exclusive Resident Facilities
Access to Eaton Residences’ signature rooftop infinity pool overlooking KLCC, a fully equipped gym, concierge services, function rooms, and secure, controlled access at all levels.
Why Type D3 Stands Out
One of the largest and most premium layouts in the development
Stunning KLCC-facing northwest view
Ideal for families seeking spacious city living
Strong investment value due to size, view, and location
Kemudahan
Air conditioner
Barbeque pavilion
Barbeque pits
Cooker hood
Kemudahan bersama
Bilik yoga
Keselamatan 24 jam
Kolam mengembara
Sky lounge
Kemampuan
Beritahu kami pendapatan dan perbelanjaan bulanan anda untuk melihat sama ada rumah ini sesuai dengan bajet anda.
Eaton Residence

Eaton Residences is breaking all barriers in providing luxurious homes around Jalan Kia Peng. At 52 storeys high, it comes with 632 units that offer an array of layouts that include one-bedroom units to penthouses. The units here range from 635 sq ft to 2,982 sq ft at RM1,600 psf. The selling price for a property that nestles in a residential area that is known for high-end serviced residences and condominiums starts at RM1.13 million
Lihat butiran projek












