Kajang East
Jalan Semenyih, Semenyih, Selangor
RM 799,000
4
BT
3
BM
1,850
kps (tanah)
RM 432
PSF (tanah)
Tentang hartanah ini
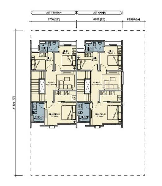
【New Lauched Project】4R3B 22' x 70' Kajang East Double Storey Terrace
4 Bedrooms, 3 Bathrooms
Tenure : Freehold
Land area : 22’ x 70’
Built up : 1850sqft
Individual Title
Gated and guarded
Limited Unit & Low Density
Selling Price : RM799,000
REGISTER TO GET FIRST HAND INFO WHEN LAUNCHING
GINNY SEOW - www.h*****
GINNY SEOW - www.h*****
GINNY SEOW - www.h*****
Kemudahan
Covered car parking
Security guard
Kemudahan bersama
Keselamatan 24 jam
Rumah kelab
Kemampuan
Beritahu kami pendapatan dan perbelanjaan bulanan anda untuk melihat sama ada rumah ini sesuai dengan bajet anda.
Kajang East

Kajang East is a freehold terraced house development project located in the area of Semenyih, Selangor. It is located on Jalan Semenyih, Selangor. The Kajang East terraced house development project was completed quite recently in 2015. This development project was developed by MKH Berhad. MKH Berhad (formerly known as Metro Kajang Holdings Berhad) was established in 1979 and is an established and respected property developer listen on the Main Market of Bursa Malaysia. Their businesses include property investment, oil palm cultivation, furniture manufacturing and trading. Kajang East is a gated terraced house community that aims to provide their residents with the highest possible level of convenience. Designed with modern architecture, residents will be able to enjoy tranquil living and outdoor fun in the residence’s community park without having to leave home. It also provides the perfect environment for children to grow up safe and sound while parents relax and unwind from the pressures of daily life. Furthermore, Kajang East is highly accessible due to its strategic location. As mentioned above, being highly accessible is one of Kajang East’s strongest selling points. Residents are advised to have their own vehicles due to the absence of public transport within walking distance. However, Kajang East is just a short drive away from Kajang’s growing variety of lifestyle amenities and the Kajang KTM and MRT interchange station for endless accessibility possibilities. Apart from that, nearby highways are the Kajang Dispersal Link Expressway (SILK), Grand Saga Highway, Kuala Lumpur-Seremban Highway and Kajang-Seremban Highway. Residents can get to Kuala Lumpur City Centre (KLCC) via these highways for more amenities in only 25 minutes. Being close to numerous education amenities is one of the reasons why it is highly suitable for family living. One of the major schools available is the Rafflesia International School and the distinguished University of Nottingham Malaysia. Other educational amenities include Pusat Tuisyen Minda Interaktif (Semenyih), Sekolah Menengah Kebangsaan Engku Husain, Apple King Kindergarten Semenyih Centre and many more. Medical amenities near Kajang East include Kajang Specialist Hospital (KPJ), Britannia Women and Children Hospital, Pantai Medical Centre, Alpro Pharmacy Semenyih and Ample Effect Sdn Bhd. There are also many eateries within close proximity of the Kajang East development. These eateries include D’ Café Nur Ayiena, Tim Chooi Dim Sum, MaiZhaoKai Fried Chicken, Restoran Mamak Cendol and many more. Malls that are also nearby include Eco-Shop Semenyih and Roboz Hyperstore Semenyih. Kajang East takes care of its residents by providing various facilities. 24 hours security is available around the compound in order to ensure the safety and security of the residents. There is a 2-storey clubhouse and a multipurpose hall for the residents to utilize for various functions. There is a swimming pool within the compound for those who enjoy swimming to stay in shape. There is also a gym room for those who are into resistance training or to hop on the treadmill to stay healthy. Moreover, there are tracks for specific uses like a jogging track, walk way and bicycle track to keep the residents safe while they enjoy their exercise. There is also a game room for residents of all ages to enjoy and also a playground for the children. There is a barbecue area for a good family time and a cafeteria for those who do not want to go over the hassle of cooking themselves. The tenure for Kajang East units are freehold. Each unit consists of 2 floors and there are a total of 346 units. The selling price for each unit is RM650K to RM1.15mil with RM314 to RM386 per square feet. The rental price range is from RM1,100 to RM1,600 per month. Other projects that are by the same developer include Nexus @ Kajang Station, MKH Boulevard, MKH Boulevard II and TR Residence. Other projects that are in the same area include Eco Majestic, Setia Ecohill, Anggerik Villa 2 Apartment, Kiara Plaza Service Apartment @ Semenyih and D'Cassia Apartment.
Lihat butiran projek


















