Taman Tasik Damai
Taman Tasik Damai, Sungai Besi, Kuala Lumpur
RM 9,500,000
Boleh dirunding2
BM
15,093
kps (lantai)
RM 629
PSF (lantai)
Tentang hartanah ini
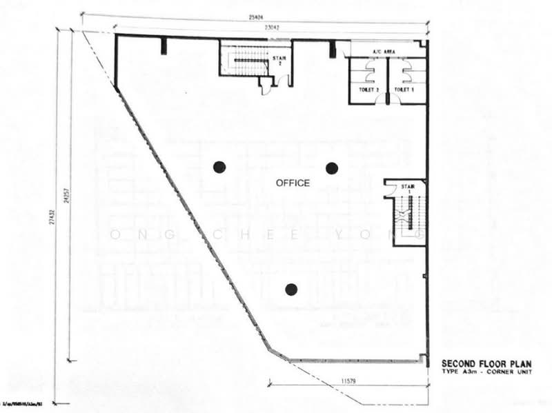
Sungai Besi Prime Location Corner Ground Floor Shoplot
Shoplot @ Sungai Besi, Kuala Lumpur
Prime location (surround by banks and popular brands....)
Corner lot (Grd Flr fully renovated)
3 Storeys
5,031sqft per floor
Total built up 15,093sqft
Tenanted at RM40K a mth / 5.1% ROI
For sale at RM9.5 million
CY Ong
0*****
Prime location (surround by banks and popular brands....)
Corner lot (Grd Flr fully renovated)
3 Storeys
5,031sqft per floor
Total built up 15,093sqft
Tenanted at RM40K a mth / 5.1% ROI
For sale at RM9.5 million
CY Ong
0*****
Anggaran Pinjaman Gadai Janji
Perincian Pinjaman Gadai Janji
Anggaran Bayaran Balik Bulanan
RM 0 / bulanan
RM 0 Prinsipal
RM 0 Faedah
Kos Pendahuluan
Jumlah Bayaran Pendahuluan
RM 0
Bayaran Pendahuluan
RM 0 Jumlah Pinjaman dari 0% nilai pinjaman
Soalan Lazim
Seunit di Taman Tasik Damai, Sungai Besi dijual pada harga RM 9,500,000.
Tidak.
Taman Tasik Damai, Sungai Besi, Kuala Lumpur.
Anggaran bayaran bulanan pinjaman ialah RM 40,819 / bulanan.
Terokai Pilihan Lain Di Dalam Dan Sekitar Taman Tasik Damai
Berdasarkan kriteria hartanah, anda mungkin berminat dengan yang berikut
Kedai / Pejabat Untuk Dijual
Pengangkutan awam terdekat
Sekolah Terdekat

















