Located in the leafy suburb of Semenyih-Kajang corridor, this self-sustaining master planned township has bungalow lots, cluster homes, semi-detached homes, apartments, and shop offices.
The 1,001-acre Bandar Seri Coalfields by KLK Land Sdn Bhd is one of the more prominent developments in Sungai Buloh. It was launched in 2011, and it is an integrated township with a total gross development value (GDV) of RM5.6 billion. So far, this township has attracted families and working executives with its affordable landed homes.
One of the township’s offerings is North Haven Coalfields, which will consist of premium hilltop homes, bungalows, semi-detached houses, superlink houses, terraced houses, and shop offices. In 2018, KLK Land launched its premier home series, Hemingway Residences, comprising 158 superlink houses and 94 semi-dees.
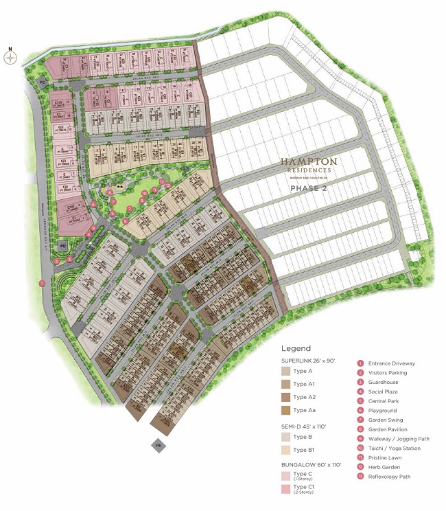
The following project in North Haven Coalfields is Hampton Residences, a hilltop guarded development with spacious home designs, living with nature. Hampton Residences comprises superlink, semi-detached, single-storey bungalow, and double-storey bungalow houses. There’ll be a total of 344 units; 191 units in Phase 1, and 153 units from Phase 2.
Hampton Residences is connected to amenities like education institutes, shopping districts and other daily conveniences; all accessible via a network of roads and highways.
Hampton Residences’ key features:
- Freehold & individual title
- Large land sizes
Practical built-ups - Guarded community
- 2 acres of neighbourhood park
- Elevated ground
- Internet-ready
- Solar water heater for all units
As Hampton Residences is within Bandar Seri Coalfields, residents will have access to a 50-acre Central Park, which serves as a landscaped pedestrianised connector within the township. Other lifestyle features in the township include restaurants, cafes, clinics, and educational institutions.
Bandar Seri Coalfields is also the first township within Sungai Buloh West and Shah Alam North to have its own Auxiliary Police. Complementing this is its single entry and exit point from the guarded community. In May 2019, the developer opened the doors to their new Bandar Seri Coalfields (BSC) Residents’ Clubhouse along with their new KLK Land Sales Gallery. Spanning 2.5 acres of land and sited adjacent to each other, the BSC Clubhouse is designed to encourage a healthy lifestyle for the community in Bandar Seri Coalfields. It has swimming and wading pools, tennis, basketball and badminton courts, a gym, a yoga/dance room, a café, and function rooms for residents to host private events.
Address: Bandar Seri Coalfields, Sungai Buloh, Selangor
Property Type: Superlink / Semi-D / Bungalow
Land Title: Residential
Total Units: 191 (Superlink – 108, Semi-D – 56, 1-storey bungalow – 19, 2-storey bungalow – 8)
Tenure: Freehold
Sales Gallery: Lengkok BSC 2/4, Presint 2 Bandar Seri Coalfields 47000
Sungai Buloh, Selangor
Year of Completion: 2021
Built-up Area: 2,215 sq ft – 3,299 sq ft
Facilities:
- Social plaza
- Central park
- Playground
- Garden swing
- Garden pavilion
- Walkway / jogging path
- Taichi / yoga station
- Lawn
- Herb garden
- Reflexology path
Launch Price: From RM1.16 million
Project Details
Hampton Residences sits across 33 acres of freehold land. It offers 191 units:
- 108 two-storey superlink houses: 2,215 sq ft to 2,481 sq ft
- 56 semi-dee units: 2,870 sq ft to 2,903 sq ft
- 27 bungalow units: 2,866 sq ft to 3,299 sq ft
Hampton Residences feature a modern façade with earth-toned hues, and functional built-up designs, with spacious interior layout, ensuite bathrooms in all bedrooms, and solar water heaters (which is one of the sustainable features to reduce residents’ carbon footprint).
|
Unit Types |
Built-Up |
Launch Price |
|
Superlink
Type Aa
Type A / A2
|
· 26’ x 90’ · 2,259 sq ft · 4 bedrooms · 4 bathrooms · Porch: Fits 4 cars
· 28’ x 90’ – 2,481 sq ft (corner) · 26’ x 90’ – 2,215 sq ft (intermediate) · 4 bedrooms · 4 bathrooms · Porch: Fits 4 (intermediate) / 5 cars (corner) |
From RM1.16 million |
|
Semi-D
Type B
Type B1
|
· 45’ x 110’ · 2,870 sq ft · 4 bedrooms · 2 utility rooms · 1 powder room · 5 bathrooms · Porch: Fits 6 cars
· 45’ x 110’ · 2,903 sq ft · 4 bedrooms · 2 utility rooms · 1 powder room · 5 bathrooms · Porch: Fits 6 cars |
|
|
1-storey Bungalow
Type C |
· 60’ x 110’ · 2,866 sq ft · 4 bedrooms · 2 utility rooms · 1 powder room · 5 bathrooms · Porch: Fits 6 cars |
|
|
2-storey Bungalow
Type C1 |
· 60’ x 110’ · 3,299 sq ft · 4 bedrooms · 2 utility rooms · 1 powder room · 5 bathrooms · Porch: Fit 6 cars |
Location
Bandar Seri Coalfields is connected to several major highways, including Guthrie Corridor Expressway (GCE), KL-Kuala Selangor Expressway (LATAR), North-South Expressway (NSE), Damansara-Shah Alam Expressway (DASH), and the West Coast Expressway (WCE).
Hampton Residences promises urban conveniences as it is within a convenient distance to commercial centres, schools, shopping, and other amenities. The Wesley Methodist Private School is located in Bandar Seri Coalfields and it began its operations in Jan 2019. The school provides a national syllabus programme and dual-language from pre-school to secondary education. Approximately 4km away from this school is Universiti Teknologi Mara Puncak Alam.
As for healthcare centres, there’s Hospital Selayang, Hospital Sungai Buloh, KPJ Specialist Damansara, UiTM Private Specialist Centre, and Putra Medical Centre Bukit Rahman Putra.
Hampton Residences is surrounded by other upcoming and mature townships such as Bandar Puncak Alam, Denai Alam, Bukit Rahman Putra, and Rawang.
Accessibility
- Kuala Lumpur-Kuala Selangor Expressway (LATAR)
- Guthrie Corridor Expressway (GCE)
- Jalan Kuala Selangor
- Jalan Kuala-Bestari Jaya
- North-South Expressway (NSE)
- West Coast Expressway (WCE)
- Damansara-Shah Alam Elevated Expressway (DASH)
Education
- Wesley Methodist School
- ELC International School Sierramas
- HELP International School
- IGB International Schools
Medical Care
- Hospital Selayang
- Hospital Sungai Buloh
- KPJ Specialist Damansara
- Hospital Sungai Buloh
- UiTM Private Specialist Centre
- Putra Medical Centre Bukit Rahman Putra
Shopping
- Econsave in Alam Jaya
- Tesco in Puncak Alam
- Setia City Mall in Setia Alam
Recreation
- BSC Gallery & Club
- BSC Waterfront
- BSC Central Park
- Coalfields Avenue
Analysis
Sungai Buloh has developed rapidly over recent years. There are more property types available in the market to cater to the growing demand. The accessibility and variety of amenities are major selling points for both buyers and investors.
Additionally, the impact of MRT Sungai Buloh-Kajang (SBK) line and Sungai Buloh-Serdang-Putrajaya (SSP) line is expected to drive up the demand and property values in Sungai Buloh further.
According to the developer, Hampton Residences is targeted at high and middle-class upgraders, professionals, empty nesters, and families with young children.
Here’s a brief look at residential properties in Sungai Buloh / Rawang.
|
Project |
Land Tenure |
Unit Type |
Completion |
Built-up |
Approximate Launch Price |
|
Hampton Residences at Bandar Seri Coalfields by KLK Land Sdn Bhd |
Freehold |
2-storey superlink house |
2021 |
2,215 sq ft – 3,299 sq ft |
From RM1.16 million |
|
Freehold |
2-storey terrace house |
2019 |
2,266 sq ft – 2,655 sq ft |
From RM705,000 |
|
|
Alstonia by MRCB |
Freehold |
3-storey garden villas |
2022 |
24’ x 75’ |
From RM1.8 million |
|
Leasehold |
Superlink terrace house |
2021 |
2,288 sq ft – 2,958 sq ft |
From RM940,000 |
|
|
E Park Residences by Eng Beng Group |
Freehold |
Condominium |
2021 |
1,335 sq ft – 2,659 sq ft |
From RM430,000 |
|
Tresna Trianda @ Saujana Putra by Glomac |
Freehold |
2-storey terrace house |
2022 |
1,750 sq ft |
From RM483,800 |
Summary
Hampton Residences is a signature development by KLK Land Sdn Bhd, a homegrown Malaysian company with a strong track record. This development can be purchased under the Home Ownership Campaign (HOC 2020/2021), featuring the same set of benefits as previously, notably:
- Stamp duty exemption on the instruments of transfer and loan agreement for the purchase of residential homes priced between RM300,000 to RM2.5 million (subject to at least 10% discount provided by the developer).
- The exemption on the instrument of transfer is limited to the first RM1 million of the property price, while full stamp duty exemption is given on loan agreement effective for Sales and Purchase Agreements (SPA) signed between 1st June 2020 to 31st May 2021.
If you’re looking at unit priced at RM1.2 million, the monthly repayment is approximately RM4,1071. This is based on:
- LTV / margin of finance: 70%
- Loan amount: RM840,000
- Loan term: 25 years
- Interest rate: 3.2%
- Approximate required gross annual income: RM165,000*
These calculations are based on the PropertyGuru Home Loan Calculator, and PropertyGuru’s Home Loan Eligibility and Affordability Calculator.
* Assumptions: No other monthly debt obligations, with 30% of gross income to be spent on the loan
To know exactly how much home loan you can get from the banks and whether you can afford this property, you can use the PropertyGuru Loan Pre-Approval. It is FREE to use and helps you avoid loan rejections. It has a 99.9% accuracy so you can be sure of home loan approval!
Keep browsing Malaysia’s largest property site for more project reviews.












