Built to fit today’s fast-paced work-life ideals, Kenwingston Square Garden on Persiaran Bestari, Cyber 9, Cyberjaya is a 6.85 acre mixed development that comes complete with a business centre and retail boulevard backdropped by two 35-storey towers of freehold, fully-furnished SoHos in four sizes. Free carparks for the SoHos range from 1 to 3 and SNP prices start from as low as RM300++K.
Trion888 marks the final phase of the 8.7 acre newly-completed TTDI Dualis business hub in the centre Taman Equine, Seri Kembangan. As can be seen in the picture, Trion888 is 1 block of 194 SoHo units above 40 Shop Offices and Shoplots.
The parking is in the basement. Sitting next to Wisma Penyayang, Trion888 is the remaining 3.2 acre ‘live-work-play’ boutique community comprising one 12-storey block housing 194 units of 450 sq ft, leasehold SoHo lifestyle suites and 40 units of shop offices and retail lots.
The Trion888 block, which is “hugged” by the TTDI Dualis 2, 2 ½ and 4 ½ storey Semi-D shop offices, is due for completion in 2017. Prices for the SoHos which are all 450sq ft, start from RM349,000 before discount.

Trion888 marked out in purple in the diagram above. The entire area is now called Pusat Komersil Equine.
About the Developer
The developer is none other than Naza TTDI, the very same people that built Taman Tun Dr Ismail. When the idea was mooted by the company in 1973, the address which now stands as one of the most acclaimed in the Klang Valley, was considered too far away from the KL city centre. But the company saw its potential and transformed what can be described as one of the earliest planned townships in Kuala Lumpur into the shining success that it is today. Taman Tun Dr Ismail is Naza TTDI’s flagship development. (For more on the developer, please scroll down to the Analysis section).
Project Name: Trion888, Equine Park
Name of Road: Jalan Equine and Persiaran Dr George Lim Ah Soo, Taman Equine, 43300, Seri Kembangan, Selangor
Developer: Naza TTDI Sdn Bhd
Developer’s Address: Naza TTDI Sdn Bhd, No 11, Jalan Judo 13/45, Section 13, 40100 Shah Alam, Selangor, Malaysia
Tel: 03-5101-5600/5601 03-5511-1988 Email: customercare@nazattdi.com
Website: http://www.nazattdi.com/
Property Type: SoHo
Land Area: 3.2 acres
Land Title: Commercial
Tenure: Leasehold
No of Towers: 1
No of Storeys: 12
Total No of SoHo Units: 194
No of Units per floor: 18 to 20
Available Unit Types and Built Up:
- Type A: Square-shaped Studio with Yard| Built Up: 450sq ft
- Type B: Square-shaped Studio with Yard| Built Up: 450sq ft
- Type C: Rectangle Studio with Yard| Built Up: 450sq ft
No of Lifts per Floor: 2 + 1 Service Lift = 3
No of Car Park Bays given per Unit: 1
Price of Units: From RM349K
Price per sq ft: RM660++
Maintenance Fee: 25sen including sinking fund
Expected Date of Completion: 2017
Project Details
Trion888 has 194 units of SoHos in all. All of them sport built-ups of 450 sq ft in three configurations. This is a leasehold project due for completion in 2017.
Trion888 SoHos are unique in that they come with condominium-like facilities such as an Infinity Sky Pool, gymnasium, function room, barbecue area, changing rooms, laundry areas, Management Office and Sky Gardens located in the residential/work areas on the higher floors.
Floor Plans and Entire Layout Plan
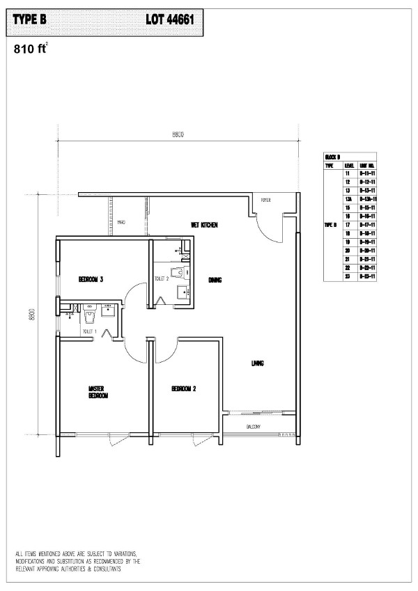
Trion888 SoHos sport three Floor Plans: Types A and B (“squarish” 450 sq ft) and Type C (“rectangle” 450 sq ft). All three have yards. Do have a look at the floor plans.

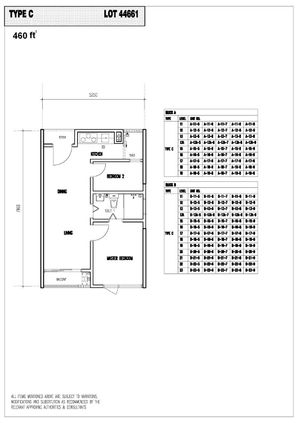
This is Type C. It is long and rectangular. If you look at the plan below, there are more Type Cs than there are Types A and B.

Now that you have seen the individual Floor Plans, here is the layout of the units across the floor.
Specifications
Location
Trion888, Equine Park stands directly in front of the Alice Smith International School on Jalan Equine and turning down to Persiaran Dr George Lim Ah Soo. The Naza TTDI project including the TTDI Dualis shop offices “envelops” and stands shoulder-to-shoulder to Wisma Penyayang, barely 20 metres across the road of Jalan Equine from the school. In fact, Trion888 can be seen rising out of the ground next to Wisma Penyayang in the picture below.

Here’s the site progress from the other end of the development. Trion888 is literally back-to-back with TTDI Dualis shops.

Here’s from another perspective. There will be two levels of basement parking but they cannot be seen in this picture.
Speaking of Wisma Penyayang, do you know what it is?
Penyayang is a Malay word that means Love, Care or Kindness in English. Yayasan Budi Penyayang Malaysia or the Foundation for Loving Kindness and Care (Penyayang) was founded by Allahyarham YABhg Tun Endon Mahmood, the late wife of our former Prime Minister Tun Abdullah Haji Ahmad Badawi. The non profit organisation was set up for the purpose of receiving donations and funds for needy Malaysians requiring education, welfare, medical and other assistance. Even though Tun Endon passed away in 2005, her voice of compassion has carried on and to-date, the foundation, through their growing number of “Keluarga Bahagia” and care programmes, has grown from strength to strength.

As you drive out of Persiaran Dr George Lim Ah Soo to join Jalan Equine, you will see The Alice Smith International School.

Here is a closer look at the school. Picture taken from outside of the hoarding where Trion888 is being built.
The Alice Smith International School ─ the leading British international school in Malaysia established in 1946 by Mrs Alice Fairfield-Smith ─ moved its secondary campus to Taman Equine from Jalan Bellamy, Ampang in 1996 when they bought over a plot of land from Global Oriental (GOB) or Equine Capital Berhad (ECB) as the Group was known then. (GOB or ECB were the founding fathers of Taman Equine as they had, earlier in 1994, acquired 550 acres of leasehold Seri Kembangan land to develop it into Taman Equine, Putra Permai apartments and business centre and subsequently, with the acquiring of another 300 acres, Bandar Putra Permai).
The picture above depicts Equine Park, built by Global Oriental Berhad (GOB). It was named Equine Park because of the Akademi Ekuestrian DiRaja Selangor. It is Malaysia’s first full-fledged equestrian academy, conferred Royal Status by the Sultan of Selangor, Duli Yang Maha Mulia Sultan Salahuddin Abdul Aziz Shah Al-Haj ibni Almarhum Sultan Hisamuddin Alam Shah Al-Haj ─ and is located here on Jalan Equine a stone’s throw from Trion888. The land here is thus, full of significance and regality.
The Alice Smith Secondary Campus in Taman Equine was personally opened by HRH Prince Edward in 1997 and many Malaysians have gone on to great heights from there, having travelled through the scintillating educational paths of this esteemed school. Click on the link here to see the list of Inspiring Alumni of Alice Smith. You’ll be very surprised.

Another important development in recent times is Equine Boulevard business centre by Global Oriental Berhad (GOB)
Trion888 ─ Surrounded by Eminence, Verve and Poised for Success
Thus Trion888 is surrounded by very important landmarks. A further important landmark is GOB’s Equine Boulevard, a relatively new and thriving business centre of shoplots filled with as many as four banks ─ CIMB, Hong Leong, Maybank and Public Bank. Of course, there are many other retail and businesses inside there as well, such as furniture shops, a boutique hotel, gyms, dentists, restaurants and many more.

The Equine Boulevard business square was completed in 2013. The four banks here can be seen in the picture above.
Equine Boulevard sits directly opposite Naza TTDI’s Pusat Komersil Equine encompassing TTDI Dualis shop offices and Trion888. The Dualis shop offices have all been sold and so are many of the shop offices and retail units in Trion888. What remains are some of the SoHos. Those who can see the potential of living at their place of work and vice versa, are grabbing them up fast.

Opposite Equine Boulevard on Persiaran Dr George Lim Ah Soo is Naza’s Pusat Komersil Equine with Trion 888

Pusat Komersil Equine many entrances. This is one of three entrance points. The crane marks the construction site of Trion888.
Above is another shot of the 8.7-acre Naza TTDI commercial block taken from yet another entrance. As you can see, the architecture speaks of style and class, with (obviously) refined workmanship. It will therefore attract tenants of calibre. The completed units are a testament that the same tastefulness and attention to detail will follow through to Trion888.
Aeon Jusco
AEON Jusco is often quoted as one of the many important landmarks of Taman Equine as well. AEON Jusco opened its doors in 2006. From Trion888, it would take only 3 minutes or 700 metres to reach the shopping complex situated along the same Jalan Equine. Talk about convenience. But that’s only if you need to do major grocery shopping as Trion888 and indeed, all the shops within Pusat Komersil Equine, will have many retail and F&B outlets of their own.
Or slip down to Persiaran Akademi Perdana via Persiaran Dr George Lim Ah Soo or Jalan Equine, travelling just 550 metres or 1 minute by car and you will join Jalan Putra Permai (an artery that leads to the SKVE and LDP) along which you will find Putra Walk, Pasar Borong Selangor, Giant Hypermart and the Atmosphere.
Here’s a look at a section of Jalan Putra Permai. It’s a long road of 5.3km starting from Taman Universiti in the older section of Seri Kembangan and ends at the mouth of the LDP after Giant Hypermart and The Atmosphere. Can you see Jusco and Zeva along the way?
MRT Convenience
For further transportation convenience, the Serdang-Putrajaya MRT will be passing this way. There will be 2 MRT Stations here by 2021 and 2022, stopping by Taman Equine at Station 31 (S31) and further up at Giant Hypermart/The Atmosphere at S32. See map below.
Well-Connected Location
Amenities Galore
Obviously, Taman Equine is as ripe for the picking as any matured township can get. But just in case you would rather see things in point-form, here are all the conveniences at a glance again. See picture below. Do note the great number of colleges and universities nearby. Trion888 SoHos will be great for renting out, not just to students but also to the workforce that will surely be converging here in droves due to the growth of job and business opportunities here.
To read about other properties in the Seri Kembangan area, click on:
Akira Residence, 16 Sierra and other property types in 16 Sierra
Galleria I and II, Taman Equine
Analysis
About the Developer
“Incorporated in 1973, Naza TTDI Sdn Bhd is the primary property arm of the diversified Naza Corporation Group. From developing the acclaimed 662-acre award-winning Taman Tun Dr Ismail township in Kuala Lumpur, Naza TTDI has moved on to successfully complete many other high impact developments such as the 7.5-acre KL Metropolis; Platinum Park ─ a mixed commercial and residential development and TTDI Gateway ─ a 38-acre business lifestyle hub.”
Excerpted from: http://www.nazattdi.com/V4/naza-ttdi/
The Figures
The comparative figures below are between 3 new developments located very closely in the same area of Taman Equine: Springville Residence and Galleria by GOB, and of course, Trion888 by Naza TTDI. Do note that Trion888 is the only true SoHo project here, although Galleria also has studio units built with the same ‘live-work-play’ intent in mind.
| Name | Tenure | Unit Size | No of Units | Average Price PSF | Approx Start Price per Unit |
| Springville Residence, Equine Park Completed 2016 | L hold | 1,044sq ft ─ 1,185sq ft | 277 | RM576 | From RM638+K |
| Galleria, Equine Park expected completion: 2016 | L hold | 450sq ft ─ 760sq ft | 504 | RM520 | From RM274+K |
| TRION888, Equine Park expected completion: 2017 | L hold | 450sq ft ─ Types A,B,C | 194 | RM660 | From RM349+K |
Summary
Trion888 joins the fray as the next project to help Taman Equine make that quantum leap from laid-back township to buzzing metropolis.
Well actually, it won’t be a quantum leap. Taman Equine or Equine Park is already half way there. All it needs is time.
And as for the relevance of SoHos at this time?
“Since when did Taman Equine need SoHos?” asked a cynic once.
Since now, we suppose. Since Trion888. Build them and they will come, as they say.
In fact, the whole of Puchong South is now a-buzz with activity, getting ready for the time when it will become a metropolis. After all, Taman Equine is the most affluent and successful community of them all, spearheading the way for all the other communities of Seri Kembangan.
Everything is in place already. Everything ─ from shopping malls, F&B, business centres to stately bungalows, highrise residences of all rank and grade…and now, swanky SoHos for the up and coming.
A SoHo is a great place to start your start-up, right there from the comfort of home and it’s totally in keeping with the work and lifestyle trends of today.
If this trend is a part of your lifestyle, and if Taman Equine is where you’ve decided it will all happen for you, then Trion888 might just be the thing. It’s even got “Fatt, Fatt, Fatt” all nicely appended in its name to usher in prosperity to you. Surely that will bode well for you.




















