18 Madge
18 18 Jalan Madge, Ampang Hilir, Ampang, Kuala Lumpur
RM 3,199,999
Boleh dirunding3+1
BT
4
BM
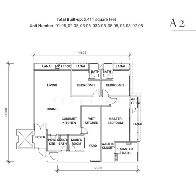
2,411
kps (lantai)
RM 1,327
PSF (lantai)
Tentang hartanah ini
Affordable Deal! Immaculate Low Floor Unit
Kemudahan
Air conditioner
Balkoni
Barbeque pits
Basic lights
Kemudahan bersama
Bbq
Gim
Keselamatan 24 jam
Kolam mengembara
Kemampuan
Beritahu kami pendapatan dan perbelanjaan bulanan anda untuk melihat sama ada rumah ini sesuai dengan bajet anda.
18 Madge
18 Madge is a high end, freehold condominium located at Ampang Hilir, Kuala Lumpur. This condominium is worth 0.836 acres of land and it has built-up areas from 2,234 sq ft to 2,776 sq ft. KSL Holdings Bhd is the developer for 18 Madge. KSL Holdings Bhd has a track record in the development industry for over 20 years and they strive to establish themselves as the fastest growing property developer in building chic and affordable residential and commercial properties concentrating mainly in Johor Bahru. 18 Madge is a condominium with a single block that has 12 storeys. It consists a total of 50 condominium units only, as 18 Madge is a low-density development, allowing privacy to the residents. There are 3 floors of car park spaces and a total of 50 parking lots per floor with a total of 150 parking lots available for residents at the basement. 18 Madge is relatively affordable as compared to other existing and upcoming condominiums. 18 Madge is strategically located in Ampang Hilir. 18 Madge is surrounded by various known amenities and facilities, such as Pavillion KL, Starhill gallery, Fahrenheit 88, Lot 10, Sungei Wang Plaza, Royal Selangor Golf Club and KLCC. 18 Madge is also strategically located as 18 Madge is easily accessible via Jalan Ampang, Jalan Tun Razak, Jalan U-Thant, and SMART Highway. Buses and taxis are easily available as well. Ampang Park LRT Station and Raja Chulan LRT Station are located nearby for the convenience of 18 Madge’s residents. In addition, schools are easily access from 18 Madge as there are a number of schools in the vicinity of 18 Madge, such as Sekolah Kebangsaan Desa Pandan, Sekolah Jenis Kebangsaan (Tamil) Kampung Pandan, Sekolah Kebangsaan Tun Hussein Onn, Sekolah Rendah Agama Nurul Islam Desa Pahlawan, Sekolah Kebangsaan Taman Keramat 2, SMK Taman Keramat, SK Dato’ Abu Bakar, SMK Bandaraya, SK Jalan Pasar, Matta School of Tourism, Institut Kemahiran Mara, The Children’s House, Masjid University Teknologi Malaya, Universiti Kuala Lumpur and Berjaya University College of Hospitality. Moreover, healthcare centres such as Prince Court Medical Centre, KSC Medical Center, Beverly Wilshire Medical Center, Gleneagles Hospital Kuala Lumpur and Twin Towers Medical Centrel are within close proximity from 18 Madge. Owners of 18 Madge are able to enjoy the facilities at Level 10. Residents from 18 Madge will be able to enjoy various posh facilities such as, infinity lap pool, wading pool, gymnasium, children’s playground, meditation court, sauna, reflexology path, bamboo court and barbeque area. Residents will be able to workout at their own leisure time to lose the extra pounds gained and relax at the same time at their own pace and preferred time without worrying about human congestion. Most important, 18 Madge is a freehold high end condominium with 3 tier security, 24 hours security and CCTV. Moreover, each condo unit comes with a panic button and an intercom linking the guard house so residents of 18 Madge can feel secured and safe at all times. 18 Madge covers a total of 0.836 acres of land and consists of 12 storeys. Residential units start from the Ground floor to the 9th floor. 18 Madge has a total of 50 condominium units with 6 different layouts for buyers to choose from. These layouts are Type A at 2,415 sq ft, Type B at 2,669 sq ft, Type C at 2,234 sq ft, Type C1 at 2,686 sq ft, Type D at 2,776 sq ft and Type E at 2,629 sq ft. All these layouts come with 3 + 1 bedrooms and 4 bathrooms. At 18 Madge, residents will be able to enjoy a breathtaking panoramic view of Kuala Lumpur skyline from the recreational area at the 10th floor. All units are given 3 parking spaces as well. As mentioned earlier, KSL Holdings Bhd is a reliable and well-known developer in the development industry. 18 Madge is now completed and open for sale. The selling price for an unfurnished unit for 18 Madge is starting from RM 2,590,000, which is equivalent to approximately RM1,200 per square feet. The maintenance fee is priced at RM0.40 per square feet. There are a few prestigious projects developed by KSL Holdings Bhd worth checking out, these include D'Inspire Residence @ Nusa Bestari, D'Esplanade Residence @ KSL City, D'Secret Garden @ Kempas Indah, and KSL Residences @ Daya. Nonetheless, there are also other projects around Ampang Hilir area where it is worth checking out such as, Seri Ampang Hilir Residences, Gallery @ U-Thant, Nobleton Crest, Rimbun @ Embassy Row Kuala Lumpur and Mutiara Upper East Ampang.
Lihat butiran projek



















