Eco Business Park 2 Senai
Eco Business Park 2 Senai, Senai, Johor
RM 18,000 /bulan
2
BM
7,982
kps (lantai)
Tentang hartanah ini
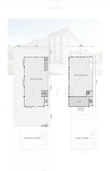
For Rent Senai Eco Business Park 2 (Phase 3)
Senai Eco Business Park II (Phase 3)
1.5 storey Semi-Detached Factory (Light Industry)
Land size:80x180
Build up:7982sqft
Power Supply 200amp
Floor Loading 10kn/m2
Gated & guarded
Rental RM18K
Contact
Dennis Cheang
0*****
1.5 storey Semi-Detached Factory (Light Industry)
Land size:80x180
Build up:7982sqft
Power Supply 200amp
Floor Loading 10kn/m2
Gated & guarded
Rental RM18K
Contact
Dennis Cheang
0*****
Soalan Lazim
Sewa bulanan di Eco Business Park 2 Senai, Senai ialah RM 18,000 /bulan.
Tidak.
Eco Business Park 2 Senai, Senai, Johor.
Berikut adalah panduan untuk menyewa di Malaysia termasuk deposit sekuriti dan memahami kepentingan perjanjian sewaan.
Terokai Pilihan Lain Di Dalam Dan Sekitar Eco Business Park 2 Senai
Berdasarkan kriteria hartanah, anda mungkin berminat dengan yang berikut
Kilang Untuk Disewa








