Elmina Business Park
Jalan Inovasi 1, Sungai Buloh, Selangor
RM 60,000 /bulan
Boleh dirunding6
BM
30,928
kps (lantai)
Tentang hartanah ini
Want To Let Factory
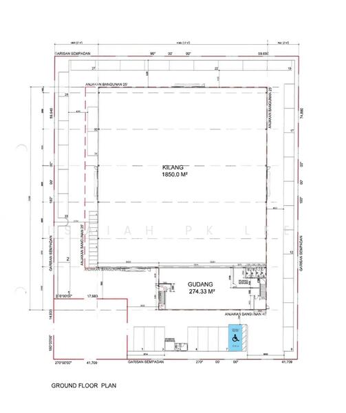
Factory For Rent located at Elmina East Business Park,
Sekyen U16, Shah Alam Selangor.
Build up : 30,928 sq.ft.
Grd Flr Factory : 22,845 sq.ft.
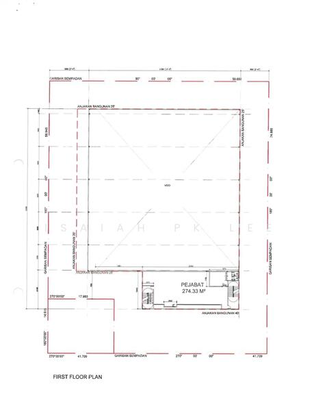
1st Flr office : 2,737 sq.ft.
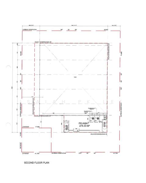
2nd Flr office : 2,737 sq.ft.
Asking Rental : Rm 60K
Asking Sale Price : Rm 20mil
Sekyen U16, Shah Alam Selangor.
Build up : 30,928 sq.ft.
Grd Flr Factory : 22,845 sq.ft.
1st Flr office : 2,737 sq.ft.
2nd Flr office : 2,737 sq.ft.
Asking Rental : Rm 60K
Asking Sale Price : Rm 20mil
Kemudahan bersama
Parkir
Elmina Business Park
Soalan Lazim
Sewa bulanan di Sungai Buloh, Selangor ialah RM 60,000 /bulan.
Tidak.
Jalan Inovasi 1, Sungai Buloh, Selangor.
Berikut adalah panduan untuk menyewa di Malaysia termasuk deposit sekuriti dan memahami kepentingan perjanjian sewaan.
Terokai Pilihan Lain Di Dalam Dan Sekitar Sungai Buloh
Berdasarkan kriteria hartanah, anda mungkin berminat dengan yang berikut
Kilang Untuk Disewa
Sekolah Terdekat






