Kempas Utama
Kempas Utama, Tebrau, Johor
RM 2,700,000
Boleh dirunding3
BM
5,600
kps (lantai)
RM 482
PSF (lantai)
Tentang hartanah ini
Kempas Utama 1.5-Storey Cluster Factory Light Industrial For Sale
For Sale- Kempas Utama
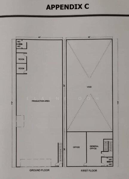
1.5 Storey Cluster Factory
Land Size 60x135
Build up 5,600sqft (Ground Floor 4,400sqft; 1st 1,200sqft)
Light Industry
Power Supply 100amp
Ceiling Height 8 meter
Freehold
International Lot
Tenanted with rental RM 7800 (Tenancy Expired)
Selling Price RM 2.7mil nego
First Come First Serve
Contact for more info/ Viewing appt:
Elaine 0*****
(REN 64163)
1.5 Storey Cluster Factory
Land Size 60x135
Build up 5,600sqft (Ground Floor 4,400sqft; 1st 1,200sqft)
Light Industry
Power Supply 100amp
Ceiling Height 8 meter
Freehold
International Lot
Tenanted with rental RM 7800 (Tenancy Expired)
Selling Price RM 2.7mil nego
First Come First Serve
Contact for more info/ Viewing appt:
Elaine 0*****
(REN 64163)
Anggaran Pinjaman Gadai Janji
Perincian Pinjaman Gadai Janji
Anggaran Bayaran Balik Bulanan
RM 0 / bulanan
RM 0 Prinsipal
RM 0 Faedah
Kos Pendahuluan
Jumlah Bayaran Pendahuluan
RM 0
Bayaran Pendahuluan
RM 0 Jumlah Pinjaman dari 0% nilai pinjaman
Soalan Lazim
Seunit di Kempas Utama, Tebrau dijual pada harga RM 2,700,000.
Tidak.
Kempas Utama, Tebrau, Johor.
Anggaran bayaran bulanan pinjaman ialah RM 11,601 / bulanan.
Terokai Pilihan Lain Di Dalam Dan Sekitar Kempas Utama
Berdasarkan kriteria hartanah, anda mungkin berminat dengan yang berikut
Kilang Untuk Dijual
Sekolah Terdekat












