Uptown 1
Unit 501, Level 5 Jalan SS 21/58, Damansara Utama, Petaling Jaya, Selangor
RM 29,000 /bulan
6
BM
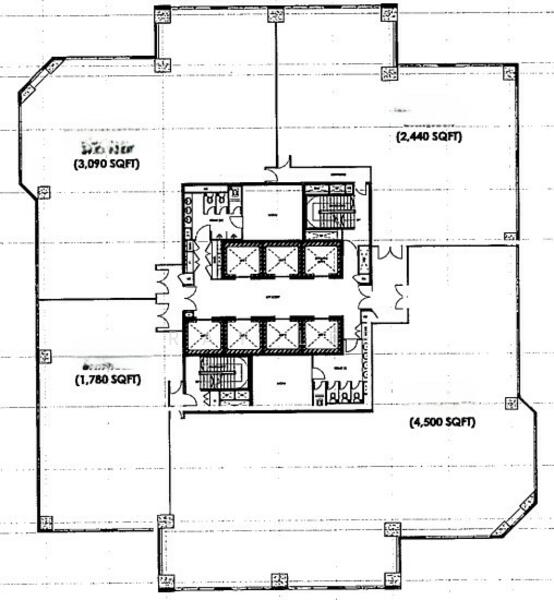
4,500
kps (lantai)
Tentang hartanah ini
Uptown 1 Office Basic Furnished Takeover Condition
■ 4,500sqft ■ Fitted as per photos (Takeover Condition)
■ 6 Passenger Lifts, 2 Car Park Lift, 1 Bomba Lift
■ TTDi MRT Station, Bandar Utama Station, LRT Kelana Jaya
■ Shuttle Services: Shuttle Bus from Mall to TTDI MRT & Kelana Jaya LRT Station
■ FOR RENT from RM29,250 (negotiable)
*Basic Furnished with Takeover Condition*
Owners welcome to list of properties.
We provide SELL | RENT | BUY for all category of Properties
══════════════════════════════════════
REN38940
Kemudahan
Akses 24 jam
Covered car parking
Security guard
Smoke alarm
Kemudahan bersama
Keselamatan 24 jam
Parkir
Uptown 1

Uptown 1 is a freehold office building located along Jalan SS 21/58, Damansara Utama, in Petaling Jaya, Selangor. Uptown 1 was completed in 1998 by See Hoy Chan Sdn Bhd Group, an established property developer with over 50 years of history in developing residential and commercial projects throughout Petaling Jaya and Kuala Lumpur. Uptown 1 comprises a single 19-storey tower with typical floor areas of around 12,390 sqft. Despite its relative age, the offices have been well-maintained over the years, with upgraded security systems and facilities to provide a comfortable and highly desirable location for its business tenants. Uptown 1 is located in an independent district, well-equipped with amenities. Several schools can be found in the vicinity, including SMK Damansara Utama, Sri Rafelsia, and SMK Damansara Jaya. Restaurants and cafes can be found scattered throughout the surrounding area, such as Village Park Restaurant, Red Kettle, and Brother John Burger. Nearby malls such as Starling Mall provide a selection of facilities including a supermarket, cinema, and assortment of retail outlets. Other amenities including parks, banks, clinics, and pharmacies can all similarly be found close by. Uptown 1 is located within a highly accessible area. Several bus stops are located within a 5-minute walk from the office, along Jalan SS21/1, while Taman Tun Dr Ismail (TTDI) MRT Station is located a short distance away. Multiple major routes and expressways run through through this district, including Damansara - Puchong Expressway (LDP), SPRINT Expressway, North South Expressway and New Klang Valley Expressway (NKVE), all of which provide efficient access to the office building for private transport owners. Uptown 1 offers a 3-storey basement car park equipped with panic buttons for increased safety, 24-hour security with CCTV monitoring, and electronic access card-gated security systems. The building is equipped with 6 passenger lifts and 1 emergency lift. The building is a designated MSC Malaysia Cybercentre capable of hosting MSC entities, and features several major tenants such as Deloitte Haskins and IMS Health Malaysia. Launched in 1998, units at Uptown 1 currently have estimated rental prices of around RM 21,700 per month, with a rental rate of approximately RM 5.50 psf. Uptown 1 is surrounded by a combination of residential and commercial properties, creating a healthy and sustainable community. Nearby commercial projects include Uptown 5, also developed by See Hoy Chan Berhad, as well as Menara Glomac and Menara LGB. Examples of nearby residential projects are Casa Tropicana, Pelangi Damansara, Riana Green Condominium, PJ Midtown, Greenfield Residence, Bandar Sunway and Neo Damansara.
Lihat butiran projek





















