Curvo Residences is the final residential phase of the first integrated development in Setapak, SkyArena.
Maya Ara Residences is developed by Sime Darby Property Bhd, and the project is located in Ara Damansara. It was virtually launched at the end of October 2021, and according to the developer, it achieved a take-up rate of 90%.
The project attracted great demand and the developer pointed out that it is a testament to their credibility in offering in-demand products at the right locations and price points. It is highlighted that a lot of research went into Maya Ara Residences, to ensure that it will suit current and future living and lifestyle trends.
This development is expected to inject a breath of fresh air into the established Ara Damansara township, while appealing to the younger generation and first-time homebuyers who are looking for a property to invest in. Maya Ara Residences has a total of 351 serviced apartments with a gross development value (GDV) of more than RM250 million.
Address: Jalan PJU 1a/1, Ara Damansara, 47301 Petaling Jaya, Selangor
Developer: Sime Darby Property
Property Type: Service Apartment
Tenure: Freehold
Total Units: 351
Sales Gallery: Ara Damansara Sales Gallery Jalan PJU 1A/A, Ara Damansara, 47301 Petaling Jaya, Selangor
Completion: Dec 2025 (expected)
Built-up Area: 764 sq ft – 1,055 sq ft
Facilities – Level 8:
- Games room with green screen
- Function hall
- Changing rooms
- Laundry (space only)
- Gym
- Infinity pool
- Jacuzzi
- Kids’ wading pool
- Pavilion
- Community BBQ area
- Parcourse (outdoor gym)
- 3-on-3 basketball court
- Kids’ playground
- Hammock zone
- Chill-out zone
- Baby changing room
- Pantry
Launch Price: From RM594,800
Launch Price Per Sq Ft: From RM778 per sq ft (estimated)
Project Details
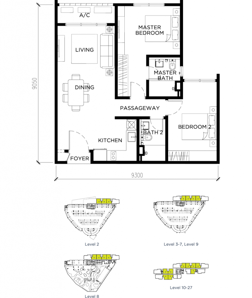
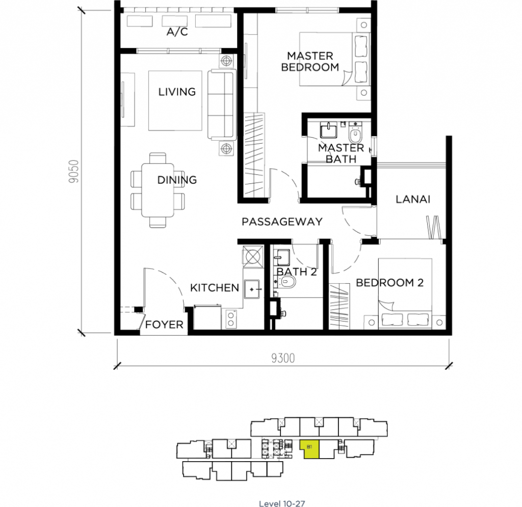
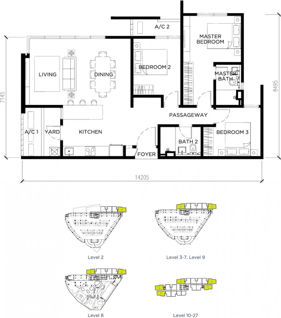
Type B and type B1 at Maya Ara Residences feature a two-bedroom, two-bathroom layout with built-ups of 764 sq ft, while the Type C units are 1,055 sq ft with a three-bedroom, two-bathroom layout.
Units are available from RM594,800, and purchasers will be able to design their units with customisable fully-furnished package, which has four different interior design themes.
This GreenRE compliant development comes with sustainable features such as open-plan layouts that encourage natural lighting and ventilation, herb-planting in the communal garden, energy conservation, efficient water use, composting bins, and several others.
As for facilities, they include a function hall that can be utilised as a co-working space, a game room with a green screen for video shoots, a community barbecue area, gymnasium, basketball court, pools, and hammock zone, among others. The full list is in the ‘Introduction’ section above. Maya Ara Residences also come with a multi-tiered security for additional peace of mind.
|
Unit Types |
Built-Up |
|
Type B |
· 764 sq ft · 2 bedrooms · 2 bathrooms · Level 2 – 27 |
|
Type B1 |
· 764 sq ft · 2 bedrooms · 2 bathrooms · Level 10 – 27 |
|
Type C |
· 1,055 sq ft · 3 bedrooms · 2 bathrooms · Level 2 – 27 |
Location
Getting to places is a breeze with connectivity to several key routes, and residents will enjoy heightened convenience due to its proximity to various amenities and facilities. Plus, Maya Ara Residences is close to these popular areas:
- Tropicana – 1.3km
- Kelana Jaya – 2km
- Damansara – 4.6km
- Kota Damansara – 5km
- Subang Jaya – 6.8km
As for Ara Damansara, it has Kota Damansara at its north, Taman Tun Dr Ismail (TTDI) at its the east, Subang Jaya at its south, and Kayangan Heights at its west. It also sits between Saujana Golf & Country Club, and the Tropicana Golf & Country Resort.
Accessibility
- New Klang Valley Expressway (NKVE)
- Jalan Lapangan Terbang Subang
- Persiaran Tropicana
- Lebuhraya SPRINT-Damansara Link
- Ara Damansara LRT station – 1.4km
- Lembah Subang LRT station – 1.4km
- Subang Skypark Airport – 3.4km
Education
- Open University – 2.5km
- INTI International College – 4.5km
- Sunway College – 6.1km
- Taylor’s Lakeside Campus – 7.4km
- Japanese School of KL
Medical Care
- Sime Darby Medical Centre Ara Damansara
- Sime Darby Medical Centre Subang Jaya
- Kelana Jaya Medical Centre
Shopping
- Lotus’s hypermarket – 500m
- Citta Mall – 700m
- Evolve Concept Mall – 1.1km
- Paradigm Mall – 2.3km
- NZX Commercial Centre
Recreation
- Community garden – 50m
- Ara Damansara Central Park – 320m
- Ara Damansara Eco Park – 1.3km
- Ara Damansara Medical Centre – 1.8km
- Oasis Square
- Tropicana Golf & Country Resort
- Saujana Golf & Country Club
- Kelab Golf Negara Subang
Analysis
Ara Damansara has been developed as a residential enclave and is a well-developed township. As developments in Ara Damansara mature, the newer projects have largely been high-rises such as serviced apartments, condominiums, offices and retail shops.
Developments in Ara Damansara have also benefitted from the spill-over from nearby established areas such as Taman Bukit Mayang Emas, Sunwaymas, Tropicana, Kelana Jaya, Bandar Utama, and Subang.
Here’s a quick look at residential properties in Ara Damansara.
|
Project |
Land Tenure |
Property Type |
Completion |
Built-up |
Approximate Launch Price |
|
Maya Ara Residences by Sime Darby Property |
Freehold |
Service Apartment |
2025 |
764 sq ft – 1,055 sq ft |
RM594,800
|
|
D’Aman Crimson by Crimson Land Bhd |
Freehold |
Condominium |
2001 |
From 845 sq ft |
From RM350,000 |
|
Urbana Residences by Loyal Paragon Sdn Bhd |
Leasehold |
Serviced Residence |
2016 |
807 sq ft – 2,033 sq ft |
RM521,250 |
|
Verde @ Ara Damansara by Villamas Group of Companies |
Freehold |
Service Apartment |
2016 |
1,383 sq ft – 2 ],110 sq ft |
From RM790,500 |
|
AraGreens Residences by HSB Development Sdn Bhd |
Freehold |
Condominium |
2016 |
684 sq ft – 3,834 sq ft |
From RM480,000 |
|
The Maisson by Newfields Group |
Freehold |
Service Apartment |
2017 |
500 sq ft – 1,594 sq ft |
From RM360,000 |
|
The Potpourri by See Hoy Chan Sdn Bhd |
Leasehold |
Condominium |
2018 |
525 sq ft – 2,440 sq ft |
From RM557,800 |
|
H2O Residences by Titijaya Group Sdn Bhd |
Freehold |
Serviced Residence & SOHO |
2019 |
449 sq ft – 1,500 sq ft |
RM415,000 |
|
AraTre’ Residences by Puncakdana Sdn Bhd |
Leasehold |
Service Residence |
2020 |
775 sq ft – 1,227 sq ft
|
From RM430,000 |
|
Cantara Residences by Sime Darby Property |
Freehold |
Condominium |
2020 |
646 sq ft – 2,077 sq ft |
From RM549,888 |
Summary
Those who purchased Maya Ara Residences had the option of following the launch event live on Facebook before registering their purchase via the developer’s Online Booking System (OBS).
OBS enabled homebuyers to reserve units at their leisure without having to visit a sales gallery. It also allows multiple concurrent transactions, and could be a game-changer in how home purchases are conducted at Sime Darby Property.
The developer said that Maya Ara Residences drew strong interest even before its launch. So, if you’re interested in a unit at Maya Ara Residences that’s priced at RM600,000, here are its estimated loan figures based on the PropertyGuru Home Loan Calculator and PropertyGuru Home Loan Eligibility and Affordability Calculator.
- LTV / margin of finance: 90%
- Down payment (10%): RM60,000
- Loan amount: RM540,000
- Loan term: 30 years
- Interest rate: 3.2%
- Monthly repayment: RM2,425
- Approximate required gross annual income: RM94,000*
* Assumptions: No other monthly debt obligations, and 30% of gross income will be spent on the housing loan.
Try the FREE PropertyGuru Loan Pre-Approval online service!
To know exactly how much home loan you can get from the banks and whether you can afford this property, you can use the FREE PropertyGuru Loan Pre-Approval online service. It has a 99.9% accuracy, so you can be sure of home loan approval!
Keep browsing Malaysia’s largest property site for more project reviews.







