• Writer
  • 28 April 2020

entrance - 03H

This last piece of development ever to be built on the 80-acre Bukit Jalil Recreational Park is fully sold out as of 2021.

Those interested to live in this property can check out SkyLuxe On The Park @ Bukit Jalil units that are listed for rent or for sale on PropertyGuru.

Read the full review here

SkyLuxe On the Park is by SkyWorld Development Sdn Bhd, a member of SkyWorld Development Group ─ innovative people who believe in stoking the passion and living the art. They don’t just build homes they profess in their website, they design experiences and have won several awards as Best Emerging Designer for changing quite a bit of Malaysia’s skyline.

Some of their works of art include: Sky Arena@Setapak, Sky Awani@Sentul, Sky Meridian@Sentul East, Sky Rise@Taman Danau Desa, and now SKYLUXE@Bukit Jalil. (For more on Skyworld, scroll down to the Analysis Section).

Bright Spark in the Industry: The SkyWorld logo, glowing brightly in the night at its Show Gallery’s location, situated just at the edge of the Bukit Jalil Recreational Park. The park begins from just behind the logo.

Bright Spark in the Industry: The SkyWorld logo, glowing brightly in the night at its Show Gallery’s location, situated just at the edge of the Bukit Jalil Recreational Park. The park begins from just behind the logo.

SKYLUXE On the Park, Bukit Jalil is Green Building Index and CONQUAS compliant. It sits on prime freehold land fronting the 80-acre Bukit Jalil Recreational Park right across from the 165-acre Bukit Jalil Golf and Country Resort and 500m from Pavilion Bukit Jalil City via a dedicated link bridge that will traverse right through the park by 2020. That’s why the development is called SKYLUXE On the Park.

SKYLUXE in summary is two towers of 44 storeys each with 477 units of various designs and built-ups ranging from 661sq ft to 1224sq ft. The podium on the 9th and 10th floor has 24 contemporary lifestyle facilities . Price starts from RM609,000 onwards. 

Project Name: SkyLuxe on The Park @ Bukit Jalil

GPS Coordinates: 3°013’12.7”N  101°40’34.0”E

Waze: SkyWorld Gallery@Bukit Jalil

Developer: SkyLuxe Development Sdn Bhd (A member of SkyWorld Development Group)

Developer’s Address: Level 1, Block B, Wisma NTP World, Excella Business Park, Jalan Ampang Putra, 55100 Kuala Lumpur

Website: www.skyluxe.com.my

Sales Gallery: SkyWorld Property Gallery @ Bukit Jalil, Jalan Jalil Perkasa 4, Bukit Jalil 57000, Kuala Lumpur.

Tel: 03-8082 2992    

Total Land Area of SKYLUXE: 1.85acres

Property Type: Serviced apartment

Land Title: Commercial

Tenure: Freehold

No of Towers: 2

Facing Direction and Views: see above pic

Facing Direction and Views: see above pic

No of Storeys:

  • Tower A | 44 storeys | 225 units | 7 units per floor
  • Tower B | 44 storeys | 252 units | 8 units per floor

No of Units: 477

No of Lifts per Floor: 3+1

Car Park Levels: Gr to Level 8

No of Car Park Bays given per Unit: 1 to 4 (depending on size of unit)

Facilities Podium: at Levels 9 and 10

Facilities:

  • Ground Floor: Guardhouse, Parking, Infinity Water Wall, Maze Garden
  • Level 1 – 8: Podium Car Park
  • Level 9 & 10:
    • Jacuzzi
    • Wet Deck
    • Infinity Pool
    • Wading Pool
    • Function Terrace
    • Pool Deck
    • Floating Cocoon
    • Cocoon Pavilion
    • Lawn
    • Garden Terrace
    • Ulam Terrace
    • Kitchen Garden
    • Games Room
    • Play Web
    • Surau
    • Reading Room
    • Library
    • Cantilevered Gym
    • Sauna / Steam Room
    • Deck
    • Multipurpose Hall
    • Changing Room
  • Level 23A&25 SkyGarden
  • Level 43&43A SkyTerrace – Tower A (Level 43); Tower B (Level 43&43A)

No of Storeys: Block B ─ 44 | Block A ─ 44

No of Units: 477

No of Units per Floor: 7 to 8 (depending on which block)

No of Lifts per Floor: 4

Car Park Levels: Gr to Level 8

No of Car Park Bays given per Unit: 1 to 3 (depending on size of unit)

Facilities Podium: at Levels 9 and 10

No of Facilities: 24, inclusive of Sky Garden at Levels 24 on Block B and 25 on Block A and Roof Top Sky Terrace on each block

Unit Types and Built Up (see floor plans under Project Section below): 

Note: Size, Balconies and placement of Balconies vary from unit to unit and are subject to change. Actual configurations can be made available by the developer’s sales personnel.

mcb

Price of Units: From RM609,000

Maintenance Fee: RM0.35 (inclusive of sinking fund)

Expected Date of Completion: Q1 2020

Project Details

facade - 02H

Apparently, according to the developers, SKYLUXE was a creation that was inspired by the most natural of elements ─ from the creatures of the soil.

“Surrounded by a green environment,” they explained in one of their placards, “it was only fitting to design SKYLUXE with earth’s elements ─ where the habitat of man meets the various habitats of fauna reflected in selected areas of the 80-acre recreational park.”

SKYLUXE's structure has been an inspired one, according to the designers, with the muse being Mother Nature herself.

SKYLUXE’s structure has been an inspired one, according to the designers, with the muse being Mother Nature herself. Look at the explanations below.

Mother Nature’s Muse

  • Ant Colony

Starting from the lowest floors where only organisms such as ants would inhabit, the Ground to 8th floor represneting the car park levels, (as can be seen in the picture above), the designers described how they were inspired by the ant colony:

“Taking a leaf from ants’ excellent organizational behavior, it’s a smooth flow from the entrance to the carpark as clear direction from the start brings everything into perspective.”

  • Spider Web

“Like the spider that starts with one thread and consistently builds upon it, the lower intermediate floor’s purpose is to be the firm foundation that ensures lasting strength.”

  • Butterfly Chrysalis

“The chrysalis emerges when the caterpillar’s skin is shed in its transition to become a beautiful butterfly. Representing there’s more to SKYLUXE, you’ll have to experience to believe.”

  • Bee Hive

“Even bees are structured in building their homes. The elements of beehive built into the terrace is a salutation to how the bee reminds us of building well and strong.”

  • Bird’s Nest

“A house is not just brick and motar. Inspired by the bird’s patience, care and detail, we built SKYLUXE to exude warmth, comfort and safety for you.”

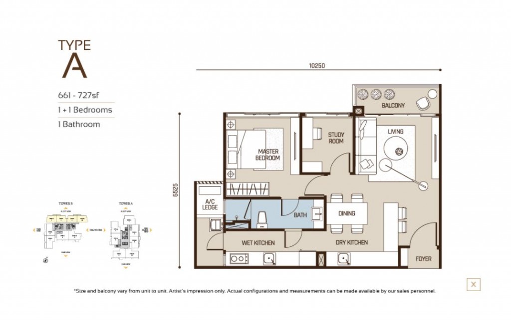
Types of of Units in Each Tower

type a living - 02H

Type A’s Living Area

skyluxe type A

Type A layout

type b living - 04H

Type B’s Living Area

Type B

There are two balconies for this unit type. A yard is included. Again, the layout is different from the norm.

Type B1 600

There are two balconies for this unit type. A yard is included.

Type C 600

Out of the box layouts applied here. Nice flow given to the movements of a household.

Value for Money

There are some free items coming along with the units. They are air-conditioners (Daikin or equivalent) going to all bedrooms and living rooms), Kitchen Cabinet, hood, hob and fridge.

The difference between D and D1 is the orientation of the balconies.

The difference between D and D1 is the orientation of the balconies.

Type D1 600

This is also the most expensive unit going for about RM950K. This unit comes with 3 car parks.

Layout of the Unit Types in each Tower and their Facing Direction

Colour Coded for Clarity: You can see clearly where each unit type will be located on which tower.

Colour Coded for Clarity: You can see clearly where each unit type will be located on which tower.

Facilities

Facilities Overview - 03H

There are 24 contemporary lifestyle facilities including Sky Gardens on designated floors and Rooftop Sky Terraces. One recurrent motif is the use of Floating Cocoons or Hanging Cocoons, just for the added feel of relaxing in mid air.

pool pavilion - 03H

The other interesting facility is the Cantilevered Gym which you can see a mock up of in the Artist Impressions of SKYLUXE above. Basically, the Gym Room protrudes out of the building so that you get the feeling that, (like the Floating Cocoons) you are exercising in mid air.

Show More

Location

One could describe SKYLUXE as sitting almost within the bosom of the 80-acre Bukit Jalil Recreational Park. The development is tucked very, very snugly against its lush forests and lakes and mere metres to the park’s main entrance on Jalan Jalil Perkasa 1. (SkyLuke is on Jalan Jalil Perkasa 4. It is the left inroad from Jalan Jalil Perkasa 1 heading toward Awan Besar LRT). See maps and video below.

In the Thick of Greenery

Bird’s Eye View of the park

Bird’s Eye View of the park.

This puts the development in the thick of greenery while overlooking yet another huge landscaped lawn called the Bukit Jalil Golf and Country Resort just across the road about 600m away. Actually, the 18-hole Bukit Jalil Golf and Country Resort is even larger than the recreational park. The golfing greens span 165 acres ─ just the perfect thing for those who love golf.

Bird’s Eye View of the golf greens.

Bird’s Eye View of the golf greens.

And just when you think that it couldn’t get better, it does!

In the Thick of Shopping and Leisure

SKYLUXE’s hoarding. The long and mostly quiet road infront is Jalan Jalil Perkasa 1. Where the treetops begin is the Bukit Jalil Recreational Park.

SKYLUXE’s hoarding. The long and mostly quiet road infront is Jalan Jalil Perkasa 1. Where the treetops begin is the Bukit Jalil Recreational Park.

Everyone has been so excited about Malton’s Bukit Jalil City and Pavilion 2 that Berjaya’s The Link 2, Bukit Jalil has been somewhat eclipsed in the furore.

Well, this is a reminder that The Link 2 is a biggie too.

The Link 2 is a 4.75-acre mixed development on Jalan Jalil Perkasa 1. Apart from offices, it comprises retails in the form of shops, shoplots, shoplets ─ you name it ─ and a street mall for the full spectrum of dining, entertainment and retail therapy required of today’s lifestyle.

The good news is: SKYLUXE is a mere 400m away from it ─ a 5 minute stroll actually.  The Link 2 has residentials too and it is interesting to note that the 2-tower highrise is quite similar to SKYLUXE in terms of density, unit size and built-ups.

This is the entrance to the Show Gallery. The road in is Jalan Jalil Perkasa 4. To get your bearing, look at the hoarding on the right of the picture.

This is the entrance to the Show Gallery. The road in is Jalan Jalil Perkasa 4. To get your bearing, look at the hoarding on the right of the picture.

But going back to Pavilion Bukit Jalil City, SKYLUXE is 1.4km from this 50-acre mixed lifestyle-residential-and-commercial development ─ IF you go by the main road, which, in this case, would be the Bukit Jalil highway 650m or 2 minutes away by car from SKYLUXE.

BUT! That would be the long and tedious way around. SkyWorld, the developer will be building a link walk bridge from SKYLUXE to Pavilion right through the Bukit Jalil Recreational Park itself. This will put SKYLUXE a mere 500m from the biggest shopping mall in Bukit Jalil.

And if that is not enough of back-to-back or front-to-back shopping, WCT has also joined the fray with Paradigm 2 or Paradigm Garden City on Jalan Awan Besar, 1.6km from SKYLUXE. Among other components in this 67-acre mixed integrated development, there will also be a 2m sq ft shopping centre called Paradigm Mall.

Pictures above taken from inside the park. A walkbridge of 500m will be built to link SKYLUXE and Pavilion Bukit Jalil City, right through the Bukit Jalil Recreational Park.

Pictures above taken from inside the park. A walkbridge of 500m will be built to link SKYLUXE and Pavilion Bukit Jalil City, right through the Bukit Jalil Recreational Park.

In the Thick of Connectivity (Highways and LRT)

In immediate access to SKYLUXE:

Highways

  • Bukit Jalil (650m away)
  • KL-Seremban
  • KESAS Highway
  • MRR2
  • MEX
  • Sungai Besi
  • LDP

This is the Awan Besar LRT. It is 1.2km away from SKYLUXE

This is the Awan Besar LRT. It is 1.2km away from SKYLUXE.

LRT

  • Awan Besar (1.2km away)
  • Muhibbah
  • Bukit Jalil
  • Sri Petaling

MRT

  • Technology Park

In the Thick of Education

  • International Medical University (IMU)
  • Bukit Jalil Sports School
  • Asia PacificUniversity of Technology & Innovation (APU)
  • Technology Park Malaysia College (TPM)
  • Lai Meng Kindergarten and Primary School
  • Sekolah Kebangsaan Bukit Jalil

In the Thick of Sports, Action and Recreation

  • Bukit Jalil Recreational Park
  • Bukit Jalil Golf and Country Resort
  • Bukit Jalil Stadium

Let’s Take a Drive to SKYLUXE in a Video

The Bukit Jalil Highway is currently in the throes of construction. Actually, the whole of Bukit Jalil is in the throes of construction, mostly due to the construction of Bukit Jalil City and the widening of roads.  You will see some of this in the video below.

 

Show More

Analysis

Some of SkyWorld’s projects

Some of SkyWorld’s projects

About the Developer

SkyWorld believes in the importance of integrating art into living spaces. Their tenet that design can redefine and elevate living experiences to new heights have won them numerous awards.  Here is an excerpt from their website in their own words….

“The Designer of Urban Sky Living” 

“At SkyWorld, we aim to be more than just a property developer. We pride ourselves to be the designer that creates unrivalled sky living experiences, and a provider of urban and modern lifestyles in the heart of major cities.

“The foundation of our business lies in our everlasting passion for design. We strongly believe that aesthetics plays an important role in shaping living experiences, and that belief motivates us to prove that form and function can indeed go hand-in-hand.

“SkyWorld is here to celebrate the intricate and interwoven connection between a development, its residents and the beauty of design. Which is why, our promise to the world is to Design The Experience for the finest urban sky living developments.”

For daring to be different.

For daring to be different.

“The Best Urban Sky Living Experience”

“At SkyWorld, everything we do ties back to our promise of providing the finest urban sky living experience. But, what does the finest really mean? To us, it’s about excellent social interaction and sense of community, connectivity, recreation, security, practical and functional living spaces, and self-sustainability and green living.

By focusing our efforts to perfect these aspects of living, we are confident that we will be able to design a holistic, wholesome and enjoyable living experience for all.”

excerpted from http://www.skyworld.my/

Some of their recent awards

Some of their recent awards

skyluxe line

The Figures 

The comparative figures below are between 3 new developments in the same area closest to the same LRT Station ─ Awan Besar: SkyWorld’s SKYLUXE, and their closest and most similar neighbour across the road The Link 2 Residences, and further down the road ─ Waltz Residences, Paradigm Garden City by WCT, (launched in Q2 2016, with expected completion date 2020).

Name Tenure Unit Size No of Units Average Price PSF Approx Start Price per Unit
SKYLUXE On The Park, Bukit Jalil Freehold  661sq ft ─ 1,224sq ft      477 RM700++ From RM600++K
The Link 2 Residences,  Bukit Jalil Freehold   667sq ft ─ 1,218sq ft      539 RM800++ From RM600++K
Waltz Residences                            Paradigm Garden City, OUG Freehold  948sq ft ─ 1,650sq ft       419 RM750 From RM760++K
Show More

Summary

Buying a home is not just about how much your floor space is going to cost you per sq ft. There are a myriad other considerations. The human emotion is not quantifiable and cannot and should not be measured in numbers, even if those numbers eventually make dollars and sense…investment sense that is.

But more than numbers, what is more important is what delights the heart and pleases the senses. This is especially true when it comes to selecting your home.

A home has got to be livable. It has got to be a place that you can be proud of, to feel good coming home to and of course, to grow in.

A prestigious address, elegance at every corner, inspired designs…they put you in your comfort zone in more ways than one.

So if art, artistry and style are important to you, if form and function are twin prerequisites of your lifestyle, if living in the zen spot of serenity while having a finger on the pulse of urbanity represent the elevation of your wellbeing…then SKYLUXE is what’s going to make it all come together for you.

Best of all, SKYLUXE’s numbers are one of the easiest to say yes to and the sweet site it is located in, in Bukit Jalil? That needs no further expounding.

Show More
Eric Wong

Writer