Curvo Residences is the final residential phase of the first integrated development in Setapak, SkyArena.
Elmina Green Four is part of the 6,500-acre township of The City of Elmina by Sime Darby Property. It is built on 29.1 acres of freehold land, and is the first Signature Series in the Elmina Green precinct. The RM255.2 million Elmina Green Four features 349 units of 2-storey linked homes with land sizes of 20ft by 70ft, and 20ft by 80ft.
With close to 8,000 linked homes built in the City of Elmina, Sime Darby Property continues to build sustainable and functional homes for all types of families, with emphasis on wellness, community, and sustainability.
The first phase of Elmina Green Four was launched in March 2021. A total of 98 units (71 are 20ft by 70ft and the rest are 20ft by 80ft) were launched and they were taken up in 2 minutes. Due to this overwhelming response, the developer released another 91 units for online and public walk-in bookings, and they were sold out in less than a day. Prices for the houses started from RM778,888, before rebates.
Stage 3 consisted of 89 units of Elmina Green Four, and it was open for booking in April 2021. The developer said Elmina Green Four is the culmination of years of research and design innovation for practical, comfortable and convenient spaces in homes. Use of space is vital to meet the demands of the new norm of working and studying from home. The Signature Series is developed to offer a new benchmark for conventional linked homes, by introducing larger spaces, practical design features, and quality fittings.
The City of Elmina is a 6,500-acre master planned development built in a holistic and green environment to nurture a healthy lifestyle. There are 1,118 acres of parklands, 90km of cycling and jogging track, and a commercial hub.
Address: Elmina Green, 40160 Shah Alam, Selangor
Developer: Sime Darby Property
Property Type: 2-storey linked homes
Land Area: 29.1 acres
Land Title: Residential
Tenure: Freehold
Total Units: 349 (Phase 1: 189, Phase 2: 160)
Sales Gallery: Elmina Pavilion, Persiaran Eserina, Elmina East Sek U16,
40160 Shah Alam, Selangor
Year of Completion: March 2023 & June 2023
Built-up Area: 2,051 sq ft – 2,633 sq ft
Facilities:
- Open space
- Shelter / gazebo
- Children’s playground
- Tai chi lawn
- Outdoor gym
- Reflexology path
- Picnic & leisure area
- Common fruit tree species
- Group chatting bench
Launch Price: From RM778,888 (before rebates)
Launch Price Per Sq Ft: About RM380 per sq ft
Project Details
Elmina Green Four is located in the City of Elmina, a wellness-centric township that’s next to the 2,700-acre Subang Dam Forest Reserve. The development features 349 units of 2-storey linked homes in 2 different lot sizes – 20’ x 70’ and 20’ x 80’. These units are targeted at young and multi-generational families, and those looking for a home upgrade.
As part of the Signature Series, the bedrooms in Elmina Green Four are generous in space, with room for a queen-sized bed, study table, and full height wardrobe. Additionally, each bedroom comes attached with a bathroom that comes with full height tiles, mirror, and premium sanitary wares. Homeowners can choose to turn their flexible spaces into a study area, a home office, an additional bedroom, a home gym, or a family area.
According to the developer, this first edition of the Signature Series by the City of Elmina features:
- 25% more space compared to the average built-up by similar projects in the Klang Valley
- A dedicated flexible suite which is ideal as a home office, children’s playroom or guest bedroom
- En-suite bathrooms for all 4 bedrooms
- High-quality fixtures and FittingsPlus+ such as built-in security grilles, air-cond piping, water heaters, booster pump and outdoor water filter
- 200m tree-lined welcome boulevard
- 2 football field-sized parks
- 15 neighbourhood facilities
Elmina Green Four’s design elements include rustic brick veneer cladding and pitched roofs that add a timeless look to the exterior. The interior has an open-plan layout that allows more natural light and airflow into the home. The multi-generational home also caters to the elderly, with features like ramps and a sliding door to the bathroom on the ground floor.
The units also come with branded sanitaryware, laminated timber flooring on the first floor, a built-in alarm system, and mineral wool roof insulation. The houses’ insulation helps regulate indoor temperature for better thermal comfort, while providing an additional safety measure due to its fire-resistant attribute.
The homes also come with FittingsPlus+, such as an outdoor water filter, built-in security grilles, air conditioning power points and ducts, booster water pump and water heaters. These value-added features were well-received in the previous developments in the City of Elmina, and they provide purchasers with a hassle-free move-in experience. The developer is also providing 1 year free subscription of high speed internet.
For an overview of Elmina Green Four, watch this short video that was published by Sime Darby Property on 25 Feb 2021.
|
Unit Types |
Built-Up |
|
Type A1 |
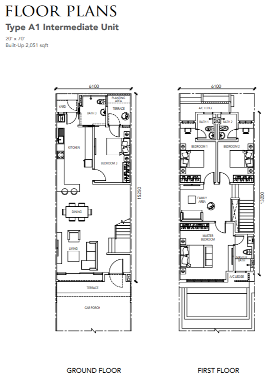
· Intermediate unit · 20’ x 70’ · 2,051 sq ft · 4 bedrooms · 4 bathrooms |
|
Type A2 |
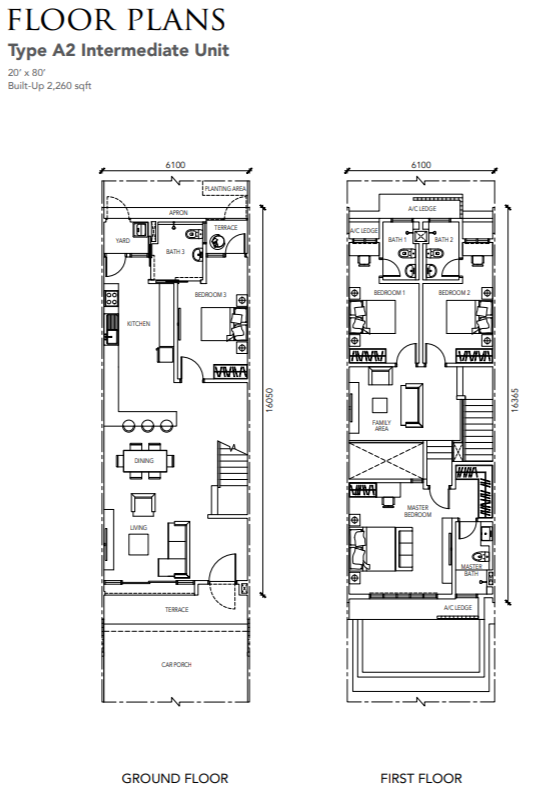
· Intermediate unit · 20’ x 80’ · 2,260 sq ft · 4 bedrooms · 4 bathrooms |
|
Type C1 |
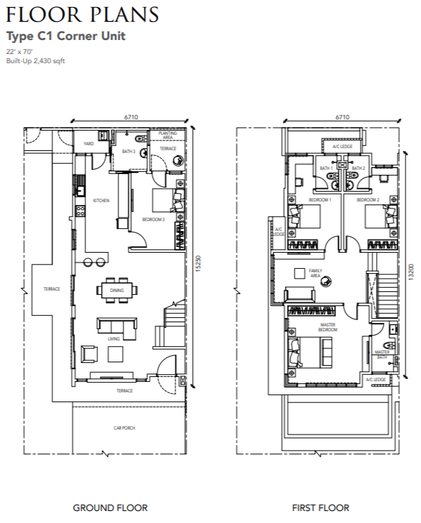
· Corner unit · 20’ x 70’ · 2,430 sq ft · 4 bedrooms · 4 bathrooms |
|
Type C2 |
· Corner unit · 20’ x 80’ · 2,633 sq ft · 4 bedrooms · 4 bathrooms |
|
Type E1 |
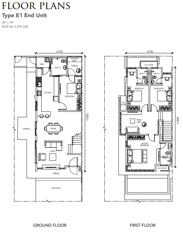
· End unit · 20’ x 70’ · 2,235 sq ft · 4 bedrooms · 4 bathrooms |
|
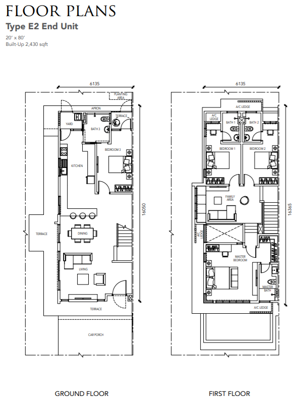
Type E2 |
· End unit · 20’ x 80’ · 2,439 sq ft · 4 bedrooms · 4 bathrooms |
Location
Elmina Green Four at the self-sustaining township of City of Elmina is located about 20km from Petaling Jaya and 30km from the Kuala Lumpur city centre (KLCC). The development is easily accessible via an extensive network of highways including the Guthrie Corridor Expressway (GCE), New Klang Valley Expressway (NKVE), Kuala Lumpur-Kuala Selangor Expressway (LATAR), and Damansara-Shah Alam Highway (DASH).
Here’s the distance of the development to several popular spots and areas:
- 9km to Subang Airport
- 11km to Kota Damansara
- 20km to Petaling Jaya
- 29km to Kuala Lumpur city centre
Accessibility
- Elmina Interchange
- Paya Jaras Interchange
- Guthrie Corridor Expressway (GCE)
- Kuala Lumpur-Kuala Selangor Expressway (LATAR)
- New Klang Valley Expressway (NKVE)
- North-South Expressway Central Link (ELITE)
- Damansara-Puchong Expressway (LDP)
- Damansara-Shah Alam Highway (DASH)
- Jalan Lapangan Terbang Subang
- Subang Airport Terminal
- MRT Kwasa Sentral
- KTM Skypark Link
- Rapid Shuttle Bus to MRT Kwasa Sentral
Education
- Global Oak Tree Scholars – 1km
- SK Taman Bukit Subang – 2km
- HELP International School & University – 4km
- Sekolah Seri Cahaya – 6km
- SK & SMK Saujana Utama – 9km
- SMK Bukit Jelutong – 10km
- UiTM Puncak Alam – 15km
- U4 Sekolah Kebangsaan
- Sekolah Menengah Kebangsaan Bukit Jelutong
- REAL Schools, Shah Alam Campus
- Greenview Islamic School Bukit Jelutong
- Sekolah Menengah Kebangsaan Subang Bestari
- Management and Science University
Medical Care
- Thomson Hospital Kota Damansara
- Putra Medical Centre Bukit Rahman Putra
- Hospital UiTM Puncak Alam – 13km
- Ara Damansara Medical Centre – 15km
- Tropicana Medical Centre
Shopping
- AEON Shah Alam
- Giant Hypermarket Shah Alam Stadium
- Mydin Bukit Jelutong
- Star Avenue Lifestyle Mall
- Pasaraya SEGI
- Setia City Mall
- Jaya Grocer Bukit Jelutong – 9km
- Sunway Giza Mall – 13km
- Citta Mall – 14km
- Paradigm Mall
- The Curve
- 1 Utama – 17km
- IKEA Damansara
- Empire Shopping Gallery – 18km
Recreation
- Denai Alam Recreational and Riding Club – 5km
- 300-acre Elmina Central Park
- Denai Alam Lake
- Monterez Golf & Country Club – 7km
- Kelab Rekreasi Tentera Udara
- Kelab Golf Seri Selangor
- Saujana Golf & Country Club
- Sultan Abdul Aziz Shah Golf & Country Club
- Guthrie Golf Academy Pitch & Putt Course
- Taman Botani Negara Shah Alam
- Shah Alam National Botanical Park (Skytrax Shah Alam) – 14km
- Oasis Ara Damansara – 14km
- Tropicana Gold & Country Club – 18km
- Kancing Waterfall – 23km
Analysis
Elmina Green Four has all the right features to provide owners with a practical, convenient, and comfortable home. The freehold units are ideal for those seeking spacious homes that cater to a family’s lifestyle needs in a strategically located, well-planned, and self-sustaining township.
Elmina Green Four incorporates elements such as a columnless car porch to accommodate more cars, an easy-split kitchen, bedrooms with attached bathrooms, and spacious flexible living spaces on the ground and first floors. These are some of the features that are often sought after by homeowners today.
Here’s a look at residential properties in or close to Shah Alam.
|
Project |
Land Tenure |
Property Type |
Completion |
Built-up |
Approximate Launch Price |
|
Elmina Green Four @ City of Elmina by Sime Darby Property |
Freehold |
2-storey terrace house |
2023 |
2,051 sq ft – 2,633 sq ft |
From RM778,888 |
|
Elmina Green Three @ City of Elmina by Sime Darby Property |
Freehold |
2-storey terrace house |
2022 |
2,262 sq ft – 2,983 sq ft |
From RM709,999 |
|
DK Impian by DK Properties Sdn Bhd |
Leasehold |
SoHo |
2020 |
583 sq ft – 893 sq ft |
From RM350,000 |
|
Arca by JAG Land Berhad |
Freehold |
Condominium |
2021 |
913 sq ft – 1,018 sq ft |
From RM537,000 |
|
Embayu @ Damansara West by PRG Holdings Berhad |
Leasehold |
Condominium |
2022 |
1,000 sq ft – 1,213 sq ft |
From RM460,000 |
|
Nadayu 801 @ Subang Murni by Nadayu Properties Berhad |
Leasehold |
Apartment |
2022 |
1,033 sq ft – 1,151 sq ft |
From RM794,000 |
|
Cora @ Eco Ardence by Ecoworld |
Freehold |
Double-storey semi-detached |
2022 |
2,567 sq ft |
From RM1.9 million |
|
Seiring Residensi @ Damaisuria by Titijaya Land Berhad |
Freehold |
Service Apartment |
2023 |
668 sq ft – 972 sq ft |
From RM459,000 |
|
Habitus @ City of Elmina by Newfields Group |
Freehold |
Serviced Apartment |
2023 |
451 sq ft – 998 sq ft |
From RM305,000 |
|
Ilham Residence at Elmina Grove by Sime Darby Property |
Freehold |
2-storey link houses |
2023 |
1,387 sq ft – 2,341 sq ft |
From RM583,999 (after discounts and rebates) |
Summary
The City of Elmina has won many accolades, and they include the following:
2021
- ILAM Malaysia’s Sustainable Landscape Awards: Editor’s Choice for Malaysia’s Exemplary Sustainable Community Park Winner in Landscape Planning Category – Elmina Central Park
2020
- ILAM Malaysia Landscape Architecture Awards (MLAA): Excellence Award in Landscape and Study Awards Professional Category – Elmina Sports Park
- International Federation of Landscape Architects (IFLA): Honour Award in Landscape Master Plan Award Developer Category – City of Elmina Master Plan
2018
- Malaysia Institute of Planners Planning Excellence Awards (MIPPEA): Design Excellence Award – Elmina West
- PropertyGuru Asia Property Awards Malaysia: Winner in Best Township Development, Winner in Best Landscape Architectural Design, and Highly Commended in Best Township Development
2017
- ILAM Malaysia Landscape Architecture Awards (MLAA): Excellence Award in Landscape Analysis and Study Awards, and Professional Category – Elmina East Landscape Master Plan
- JCI Malaysia Sustainable Development Awards: Winner in Sustainable Category – UN Sustainability Goals #13
If the awards and the hot response are any indication, it is that these houses have a lot of pluses going for them! For those looking at a unit at Elmina Green Four that’s priced at RM779,000, here are its estimated loan figures.
- LTV / margin of finance: 90%
- Down payment (10%): RM77,900
- Loan amount: RM701,100
- Loan term: 30 years
- Interest rate: 3.2%
- Monthly repayment: RM3,148
- Approximate required gross annual income: RM121,500*
Want to change the loan figures? Use these calculators:
Home loan basics: Know your Debt Service Ratio (DSR)!
DSR is a method used by banks in Malaysia to calculate whether you can afford the loan you’re applying for. To calculate your Debt Service Ratio (DSR), refer to the FREE PropertyGuru Loan Pre-Approval tool. It has a 99.9% accuracy, which greatly helps in avoiding loan rejections.
* Assumptions: No other monthly debt obligations, and 30% of gross income will be spent on the housing loan. As a rule of thumb, banks usually loan up to 30% of your gross annual income.
Keep browsing Malaysia’s largest property site for more project reviews.















