BK9
Jalan Impian Indah, Bandar Kinrara Seksyen 1, Bandar Kinrara, Selangor
RM 1,350,000
5
Beds
4
Baths
1,760
sqft (land)
RM 767
psf (land)
About this property
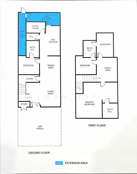
Double Storey Home, Bandar Kinrara BK9 Warna
House For Sale
#Spacious Size 22x80#
====================
Double Storey Home, Bandar Kinrara BK9 Warna
#Video Tour Available#
~Land area 22 x 80
~Built-up 2200sf
~5 bedrooms, 4 bathrooms
~Extended Kitchen
~Kitchen Cabinet (Wet & Dry)
~Built-in Wardrobe
~Additional Parking ***
~Close to Pavilion Bukit Jalil
~Freehold
~Gated & Guarded Community
~RM1.35mil
Facilities in Bandar Kinrara BK9 Warna:
~Playground
~24-hour Security
Major Highways in Bandar Kinrara BK9 Warna:
~KESAS
~LDP
~BUKIT JALIL HIGHWAY
Amenities near Bandar Kinrara BK9 Warna:
~Pavilion Bukit Jalil, IOI Mall
~1 minute to Retail shops, restaurants
~5 minutes to Petrol station, LRT
~5 minutes to Tzu Chi International School
Bandar Kinrara BK9 Warna, also referred to as Bandar Kinrara BK9, is a freehold terrace house situated at Jalan Impian Indah in Puchong, Selangor. This terrace house is ideally located, offering privacy for those who value seclusion and is perfect for individuals seeking to secure their own residential property. Bandar Kinrara BK9 Warna is a strategically positioned housing area with multiple access points to surrounding established neighborhoods, which benefits current and future residents.
Kindly call
=================
John Lee (REN 20607)
014 ## 234 ## 8091
014 ## 234 ## 8091
014 ## 234 ## 8091
------------------------------------------------
## Free Property Valuation ##
-------------------------------------------------
Amenities
Security guard
Common facilities
24 hours security
Parking
Playground
Affordability
Tell us your monthly income and expenses to see if this home fits your budget.
BK9

BK9 also known as Bandar Kinrara 9 is a freehold terraced house located at Jalan Impian Indah in Puchong, Selangor. This terraced house is well located as it gives seclusion for those who enjoy their privacy and it is very suitable for those who are looking to own their own housing residence. BK9 is strategically placed housing area with many points of access to other established neighbourhoods. This is an advantage to current and future residents. BK9 is a mature landed property development located in the established township of Bandar Kinara. The neighbourhood consist of older and newer units that comes with a variety of layouts and designs for residents to choose from. BK9 is located in a place where accessibility and connectivity are stable and there are plenty of ways for residents to get by, hassle-free on a daily basis. This development will be well secured to make sure the safety of residents is well taken care of. As Bandar Kinrara is a highly populated township, this means that amenities are aplenty here and residents living in BK9 can easily gain access to these amenities. Residents of BK9 will have easy access to a variety of amenities this is because there are numerous highways that pass through this neighbourhood, making it easier for residents to commute to and from their homes. This area is well equipped with an abundance of amenities. Residents can find schools, clinics, supermarkets, malls and leisure spots in the surrounding area that is not too far from the development. Just to mention a few schools such as Tasks Bonda Mama Permata hati, Tadika kemas blok D pinggiran bkt jalil, TalentsTech® Personalities & Talents Discovery Center, Tzu Chi International School transportation and Pusat Jagaan SmartKid / Taska Anak Bistari. There are clinics located in the vicinity that residents can go to when they are not feeling well or in case of any emergencies. Some of the clinics are Guardian and Hock Hua Tonic. Supermarkets in the area are Raahath Enterprise, BBG Convenience Store, Giant Hypermarket Bandar Kinrara, Hong Yang Oriental Food and Meat Empire. In case of cash emergencies residents can go to the nearby ATM machines. Restaurants that residents can go to enjoy a variety of cuisines are Nasi kukus bonda ayam berempah, Berkat berdiri berdua ayam goreng singgit, Ayam goreng singgit ppr pinggiran puncak jalil, Medan Selera Pinggiran Bukit Jalil and Restoran Kings Tomyam Bandar Kinrara. The facilities available in the compounds of BK9 terraced house is covered car parks which makes it easier for residents with vehicles as they do not have to park away from the development. Most importantly the development provides 24 hours security system that ensures the safety of residents is well taken care of at all times and protects the residents from outside danger. There is also playground that is convenient for children. BK9 terraced house has a variety of working space that residents can choose from. There are units available for rent or for sale. Each unit vary in terms of price, size and layout. The built up size ranges between 1,500 square feet to 4,000 square feet. Residents will find a unit that they like for sure. Each unit is priced accordingly and affordably making it suitable for those looking for a classy yet affordable living space. There are other developments in the area that residents can check out if they would like to. The developments in the area mainly consist of service residences, apartments and condominiums. There are other developments in the area that residents can check out if they would like to. The developments in the area mainly consist of flats and condominiums. Residents can check out Koi Kinrara Suites, The Wharf Residence, The Nest Residences, X2 Residency, Koi Tropika and Tasik Residency.
View project details




















