Meridin Suites Residences @ The Meridin
Jalan Legoland, Medini, Iskandar Puteri (Nusajaya), Johor
RM 2,800 /mo
View to Offer3
Beds
2
Baths
1,115
sqft (floor)

Photos

Map View
About this property
Pangsapuri Meridian Medini
Pangsapuri Meridian Medini (Meridin Residence)
Apartment
land size: 1115sqft
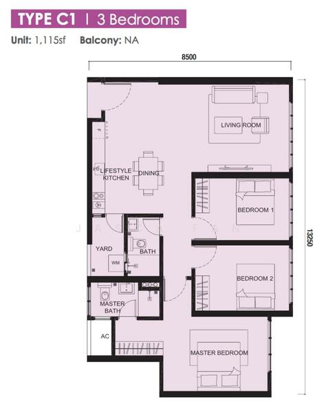
Type : C1 (no balcony)
Bedrooms : 3
Bathrooms : 2
Furniture : Fully furnished
Renovations: Yes
G&G : Yes
car park: 2
Jasca Fan
0*****
**No Co-Broke Unit**
Common facilities
24 hours security
Bbq
Gym
Landscaped garden
Meridin Suites Residences @ The Meridin
Updated: 12 March 2021Meridin Suites Residence @ The Meridin better known known as Meridin Residence, is a leasehold apartment located at Iskandar Puteri (Nusajaya), Johor. Completed in 2017, Meridin Suites Residence was developed by Mah Sing Group. The Meridin Suites Residence are part of a mixed development project which comprises a 4-star hotel, condominium, executive suites and retail shops. Located in a fast growing area, Meridin Suites is a lavish and modern condominium with a unique design. It is an ideal home for families and those who are working in the area. The Meridin Suites Residence is also just a short drive away from the neighbouring country of Singapore. The Meridin Suites Residence can be accessed via the Second Link Expressway. This expressway links the property to the other parts of Johor and connects to the North South Highway which connects Johor to the other states in Malaysia. Additionally, Singapore is just 15 minutes away (when there is no traffic) via the Second Link Expressway. Meridin Suites Residence @ The Meridin sits on 8.19 acres of land and has a total of 756 units spread across six blocks of 36 floors. Units here have a build up the size of 570 to 2,134 square feet. The configurations of each unit type are as follow:Type A - Studio units (570 to 732 square feet)Type B - 1 bedroom (633 to 1,105 square feet)Type C - 2 bedrooms (1832 to 1,425 square feet)Type D - 2 + 1 bedrooms (1,095 to 1,331 square feet)Type E - 3 bedrooms (1,064 to 1,916 square feet)Type F - 4 bedrooms (1,642 to 1,916 square feet)Type G - 4 + 1 bedrooms (2,110 to 2,134 square feet)Units are partially furnished with kitchen cabinets, hood and hob, bathroom fittings as well as wardrobes for the bedrooms. Facilities at Meridin Suites Residence include a gymnasium room and swimming for residents to keep fit, a jacuzzi to unwind in, a multipurpose hall, a recreation room, and a barbeque area to cook up a delicious meal. There is also a landscaped garden where one can breathe in the fresh air and enjoy tranquility in the midst of some greenery. Families with children can head over to the playground for hours of fun. There is also 24 hours security to keep residents and their homes secure. There are numerous schools in the vicinity including Raffles American School, Sunway International School Sunway Iskandar, Marlborough College Malaysia, and Shattuck - St Mary’s Forest City International School. If medical attention is ever needed hospitals such as Gleneagles Hospital Medini Johor, Kensington Green Specialist Centre, Columbia Asia Hospital - Iskandar Puteri and KPJ Johor Specialist Center are all just a short distance away. There are also clinics near Meridin Suites Residence. Numerous. shopping malls with retail outlets are located just a short drive from Meridin Suites Residence @ The Meridin. These include the Mall of Medini, Sunway Big Box Retail Park, and Aeon Bukit Indah. There are also mini-marts, grocery stores and other convenience stores that are just a stone’s throw away. There are plenty of restaurants and eateries that are located close to Meridin Suites Residence. Residents here can easily head to restaurants such as Di Mattoni, Pizza, Pendas Floating Restaurant, Sunny Train and Vanakam India for a good meal. If you love trying new restaurants, then check out this list of must-eats in Iskandar Puteri Meridin Suites Residence is just a short drive to tourist attractions such as Legoland Malaysia and Puteri Harbour Theme Park. Additionally, the Singapore Zoo is just across the causeway less than an hour away by car. With holiday spots such as Legoland Malaysia located nearby, there are plenty of job opportunities in this area. Mah Sing is a well-known developer in Malaysia and is listed on the Main Board of Bursa Malaysia. Their projects include quality residential homes and prime commercial projects as well as industrial in the Klang Valley, Johor Bahru, Penang and Kota Kinabalu. Winners of numerous awards, Mah Sing is committed to continuous efforts to ensure that they deliver developments with groundbreaking concepts, innovative design, grand landscaping and top-notch security. Meridin Suites Residence @ The Meridin was launched in 2013. The average price per square feet ranges between RM900 to RM1000. The current market price for units here ranges between RM380,000 to RM990,000. Check out this list for more properties in a similar price range. Either you are a single individual or a family, the wide variety of types of units for sale are suitable for you. The larger units can accommodate for a medium-size family to live in. Investors of this project can also put up units for rent to those who are working in the area.
View project details






