Rumah Tanjong, Port Dickson, Negri Sembilan
Port Dickson, Negeri Sembilan
RM 5,500,000
Negotiable5
Beds
4
Baths
7,270
sqft (land)
RM 757
psf (land)
About this property
Seaview Mid-Century Modern Home in Port Dickson
An exceptional chance to OWN or INVEST in this Classic Mid-Century Modern Seaview Home in Port Dickson.
With its distinctive architectural design, vast grounds, sweeping sea vistas, and a prime coastal setting in the heart of Port Dickson’s top beachside community, this residence presents remarkable possibilities as a luxurious private home, boutique getaway, or exclusive vacation estate.
Created in the early 1960s by celebrated architect Datuk Kington Loo of BEP, this home has been thoughtfully updated over the years, preserving its striking mid-century modern essence while providing comfortable and ample living areas.
Situated on an elevated 1.1-acre (0.45 ha) parcel approximately 60 ft (20 m) above sea level, this residence boasts stunning south and southwest views across the Malacca Strait.
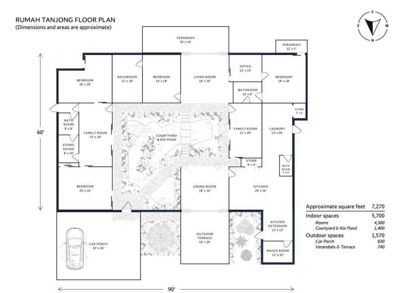
With a total area of around 7,270 sq ft (675 sq m)—featuring 5,700 sq ft of indoor living space and 1,570 sq ft of outdoor areas—this home offers an exceptional combination of spacious interiors and picturesque outdoor living.
This residence showcases a remarkable open-plan design centered around a large inner courtyard and serene koi pond, facilitating a seamless interaction between nature and living areas.
Residence Features
• 5 bedrooms and 4 bathrooms, inclusive of maid’s quarters
• Expansive living and dining spaces perfect for entertaining
• Two cozy family rooms for relaxation and gatherings
• Fully equipped kitchen and laundry area
• Covered car porch accommodating three vehicles
• Fully furnished with unique furniture, adding character and timeless appeal
Surrounded by lush landscaped gardens, this residence features several outdoor living spaces designed to embrace its breathtaking surroundings. Two sea-view verandahs, ideal for enjoying sunset moments, while the dining terrace overlooks a vibrant garden and outdoor lily pond, perfect for al fresco dining.
Contact me, Zach Gan, to set up an appointment to view this residence before finalizing your decision!
With its distinctive architectural design, vast grounds, sweeping sea vistas, and a prime coastal setting in the heart of Port Dickson’s top beachside community, this residence presents remarkable possibilities as a luxurious private home, boutique getaway, or exclusive vacation estate.
Created in the early 1960s by celebrated architect Datuk Kington Loo of BEP, this home has been thoughtfully updated over the years, preserving its striking mid-century modern essence while providing comfortable and ample living areas.
Situated on an elevated 1.1-acre (0.45 ha) parcel approximately 60 ft (20 m) above sea level, this residence boasts stunning south and southwest views across the Malacca Strait.
With a total area of around 7,270 sq ft (675 sq m)—featuring 5,700 sq ft of indoor living space and 1,570 sq ft of outdoor areas—this home offers an exceptional combination of spacious interiors and picturesque outdoor living.
This residence showcases a remarkable open-plan design centered around a large inner courtyard and serene koi pond, facilitating a seamless interaction between nature and living areas.
Residence Features
• 5 bedrooms and 4 bathrooms, inclusive of maid’s quarters
• Expansive living and dining spaces perfect for entertaining
• Two cozy family rooms for relaxation and gatherings
• Fully equipped kitchen and laundry area
• Covered car porch accommodating three vehicles
• Fully furnished with unique furniture, adding character and timeless appeal
Surrounded by lush landscaped gardens, this residence features several outdoor living spaces designed to embrace its breathtaking surroundings. Two sea-view verandahs, ideal for enjoying sunset moments, while the dining terrace overlooks a vibrant garden and outdoor lily pond, perfect for al fresco dining.
Contact me, Zach Gan, to set up an appointment to view this residence before finalizing your decision!
Affordability
Can I afford this property?
Tell us your monthly income and expenses to see if this home fits your budget.
Mortgage breakdown
Est. monthly repayment
RM 0 / mo
RM 0 Principal
RM 0 Interest
Upfront costs
Total downpayment
RM 0
Downpayment
RM 0 Loan amount at 0% Loan-to-value
FAQs
The unit for sale in Port Dickson, Negeri Sembilan is RM 5,500,000.
No.
Port Dickson, Negeri Sembilan.
The estimated loan repayment amount is RM 23,064 / mo.
Explore other options in and around Port Dickson
Based on the property criteria, you might be interested on the following
Nearest Schools



































