Setia Business Park II
0 Jalan Perniagaan Setia 1, Setia Business Park 2, Johor Bahru, Johor
RM 4,380,000
4
Baths
9,802
sqft (floor)
RM 447
psf (floor)
About this property
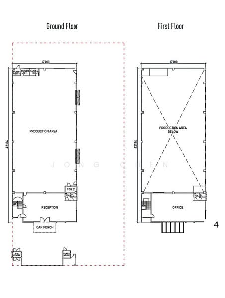
Setia Business Park 2 Dato Onn Semi D Factory
Bigger Semi D Type Factory 80x200ft
For Sale : Rm4.38mil
Address : xx, Jalan Perniagaan Setia x Taman Perniagaan Setia 81100 Johor Bahru.
Type : 1.5 Storey Semi detached(Light Industry)
Unit Type : Intermediate
Tenure : Freehold non bumi
Land Size : 16,000sqft(80x200)
Built up : 9802sqft
Renovation : Partial
Furnishing : Partial
Direction : South
G&G : Yes
Maintenance Fee : Rm500
House Year : 4years+-
Ceiling Height:8Meter
Power Supply:150-200Amp
Call Or Whatsapp
Jong
0*****
www.w*****
No cobroke
REN47291
Amenities
24-hour access
Covered car parking
Security guard
Common facilities
24 hours security
Eateries
Parking
Perimeter fencing
Estimated mortgage
Setia Business Park II

Setia Business Park II is a freehold industrial property located at Taman Perniagaan Setia, Johor near Johor Bahru. The developer of this project is S P Setia Bhd Group, a Malaysia-based property development company founded in way back in the year 1974. In addition to Malaysia, the company has expanded its property development business to other countries like the United Kingdom, Vietnam, Singapore, Australia and China. Completed in the year 2015, Setia Business Park II has cluster and semi-D factory units with built-up areas per unit ranging from 7053 square feet to 13155 square feet. It is gated and guarded with 24-hour security and is set for high-speed broadband internet connections. The surrounding amenities include schools, shopping malls, food and beverage outlets and healthcare facilities, among others. The property is easily accessible from Singapore through Causeway Link and from North-South Highway through Exit 255C Bandar Data Onn. Alternatively, one can reach the development from North-South Highway through Exit 255 Kempas.Setia Business Park II stands in a strategic location which access is simply a breeze. From North-South Highway, a drive of five minutes through Exit 255 Kempas or Exit 255C Bandar Data Onn is enough to reach the development. It is also easily reachable from Singapore through Causeway Link, a drive between the two being a 15-minute drive. Access to the property by air is also convenient as it is just a 15-minute drive from Senai International Airport. As is that is not enough, water transport is also convenient to the business people operating at Setia Business Park II, with Johor Port being just a 20-minute drive away from the development. When it comes to amenities, the project takes pride in world-class infrastructural facilities such as high-speed broadband infrastructure and 24-hour security surveillance. Featuring the green and clean concepts of an industrial park, the development achieves the threshold required for sustainable development to the environment, complementing Malaysia’s socioeconomic goals. The window shutters of the property feature angled horizontal slats for not only for proper air circulation hence heat reduction, but also for the penetration of the natural light. Another good thing about this project is that it is a freehold property, meaning that you can own a unit here for as long as you would want. If you are looking for a strategically located, eco-friendly and strategically located place for setting up an office, warehouse or factory in the vicinities of Iskandar, then rest assured that you can’t go wrong with Setia Business Park II.Setia Business Park II is easily accessible from Singapore through Causeway Link and from different parts of Malaysia through North-South Highway and Exit 255C Bandar Data Onn. Otherwise, one can reach the development from North-South Highway through AExit 255 Kempas. It is a 20-minute drive away from Johor port and a 15-minute drive to Senai International Airport, 53 km from Changi International Airport and a drive of seven minutes from Pasir Gudang Highway. Being only 18 km away from Johor Bahru City Centre, the property is surrounded by many amenities including education institutions, AEON Shopping Mall, 7-Eleven convenience stores, healthcare facilities and much more. The nearest healthcare facilities are KPJ Specialist Hospital and Klinik Desa Maju Jaya while the closest education institutions include Fairview International School, KFCH International College.The facilities offered by Setia Business Park II include covered parking, world-class telecommunications, high-speed broadband internet infrastructure, recycling systems and 24hr security surveillance.Built on freehold land, Setia Business Park II offers six types of factory units with built-up areas ranging from 7053 square feet to 13155 square feet per unit. Of the six types, four are cluster factory units types namely, 60' x 120', 85’ x 148’, 72' x 160' and 93’ x 230’ while their respective built-up areas per unit are 4324 square feet, 7053 square feet, 7488 square feet and 13155 square feet. The other two types are Semi-D factory units, 80' x 180' and 80' x 200', whose built-up areas per unit are 8570 square feet and 9802, respectively. This building is developed by SP Setia developer, who is famous for its quality developments such as Setia Sky Ville, Setia Sky 88, Setia V Residence and KL Eco City Vogue Suites 1. Setia Business Park II neighbors other much-sought-after properties like Greenfield Regency ,Tropez Residences, D'Ambience , Seasons Luxury Apartments and Impiana @ East Ledang.
View project details



















