Sri Yaacob Sri Yaacob Sris Yaacobs
Taman Perindustrian JB Perdana, Johor Bahru, Johor
RM 1,680,000
Negotiable0
Bath
3,498
sqft (floor)
RM 480
psf (floor)
About this property
1.5 storey terrace factory near Sri Yaacob Skudai, hot industrial area
FOR SALE (CL8656)
1.5 Storey Terraced Factory
Taman Perindustrian JB Perdana, Skudai
(near Taman Sri Yaacob)
Property Highlights:
• Freehold industrial unit
• Vacant & ready for immediate use
• Suitable for light industrial / production / office setup
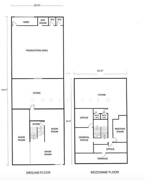
• Well-designed layout with production area + office
Specifications:
• Built-up: 3,498.27 sqft (≈325 sqm)
• Land area: 35’ x 100’
• Type: 1.5 Storey Terraced Factory
Asking Price: RM1.68 Million
For viewing, please contact Chris 010*369*8656
code-058
1.5 Storey Terraced Factory
Taman Perindustrian JB Perdana, Skudai
(near Taman Sri Yaacob)
Property Highlights:
• Freehold industrial unit
• Vacant & ready for immediate use
• Suitable for light industrial / production / office setup
• Well-designed layout with production area + office
Specifications:
• Built-up: 3,498.27 sqft (≈325 sqm)
• Land area: 35’ x 100’
• Type: 1.5 Storey Terraced Factory
Asking Price: RM1.68 Million
For viewing, please contact Chris 010*369*8656
code-058
Estimated mortgage
Mortgage breakdown
Est. monthly repayment
RM 0 / mo
RM 0 Principal
RM 0 Interest
Upfront costs
Total downpayment
RM 0
Downpayment
RM 0 Loan amount at 0% Loan-to-value
FAQs
The unit for sale in Taman Perindustrian JB Perdana, Johor Bahru is RM 1,680,000.
No.
Taman Perindustrian JB Perdana, Johor Bahru, Johor.
The estimated loan repayment amount is RM 7,218 / mo.
Explore other options in and around Taman Perindustrian JB Perdana
Based on the property criteria, you might be interested on the following
Terrace Factory For Sale
Nearest Public Transport
Nearest Schools







