Taman Desa Cemerlang
Off Jalan Tanjong, Ulu Tiram, Johor
RM 5,915,694
0
Bath
8,881
sqft (floor)
RM 666
psf (floor)
About this property
New semi detached factory in desa cemerlang
81800 Ulu Tiram Johor Bahru
Semi Detached Factory For Sale
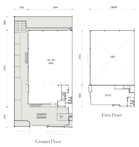
Land area : 13,516 Sqft
Build up : 8,881 Sqft
Freehold
Target completion : 2027 Q4
Floor loading capacity
Production area : 15kn/M2
Electrical installation
200A power supply ( 3 phase )
Roller shutter size :
Front : 4.5m (W) X 4.5 m(H)
Side : 4.5 m ( W) X 4.5 m ( H)
Factory height ;
Production area : 9m
Selling Price RM5,915,694
Contact :
Zoe Lee 0*****
Common facilities
24 hours security
Landscaped garden
Parking
Playground
Estimated mortgage
Taman Desa Cemerlang
Taman Desa Cemerlang is a freehold terrace house development. It is located along Jalan Tanjong, Ulu Tiram, Johor Bahru, Johor. Taman Desa Cemerlang is developed by Crescendo Corp Bhd. It is family property development company. Crescendo Corp Bhd is based in Malaysia, with its headquarters located in the state of Johor. Their extensive service portfolio ranges from property construction and development, education as well as trading and manufacturing. Having come a long way since its inception, Crescendo Corp Bhd aims to operate and sustain communities in Johor with their diverse range of services via strategic town planning and by providing living solutions that are effective. Taman Desa Cemerlang is a family themed terrace house development. The primary target market of this particular development is families. This project comes with a nice variety of facilities. Such facilities include an indoor car park, 24 hour security and even a playground for the little ones. Here, children can get some exercise instead of staying cooped up in the house for the whole day. Besides that, this project also comes with a beautifully landscaped garden where adults and children alike can take a relaxing stroll as they spend quality time with their family. On top of that, there is also a nice recreation lake in the vicinity of Taman Desa Cemerlang. Taking a walk or having a picnic while taking in the view of the lake is sure to take one's breath away. These facilities clearly make Taman Desa Cemerlang a safe and relaxing place for the entire family to live. Taman Desa Cemerlang is fairly easily accessible via public transportation, making it a convenient choice for those who either do not own their own vehicle or simply prefer to travel by bus. This is because it is situated near to a bus terminal. The Johor Jaya Bus Terminal is a half an hour walk away from this terrace house development. Besides that, the Taman Desa Cemerlang housing area is an established neighbourhood with plenty of amenities that are located in close proximity to it. To begin with, there are several educational institutions nearby including the Crescendo Help International School, Sekolah Kebangsaan Taman Desa Jaya, Sekolah Kebangsaan Taman Desa Cemerlang, Tadika Kristal Karisma and Kindergarten Excellent Talents. Apart from that, although there are no shopping malls situated in close proximity to this housing area, there is a supermarket nearby, Econsave Cash and Carry Sdn. Bhd. There are also sundry shops, namely Pasar Mini Jin Mao, Mini Market Store Tawakal Sdn. Bhd., Ah Siang Mart and Al-Rizqi Frozen Foods. Here, residents will be able to purchase their groceries and other daily needs so having there shops and the supermarket close to this landed property development will prove more than satisfactory. In addition, there are restaurants not far from Taman Desa Cemerlang such as Restoran Pekin, Era Chicken Chop, Yong Xin Kopitiam, Restoran Ah Huang and Big Belly Kitchen. Other amenities in the area include a pharmacy called KK Care Pharmacy. Furthermore, there are recreational facilities that are located in close proximity to Taman Desa Cemerlang, namely Taman Rekreasi Desa Cemerlang. The fact that it is situated close to this recreational facility is another plus point as this makes it easy for the residents of this terrace house development to recreate with their friends and family. This particular freehold terrace house development comprises residential units that measure from 1,400 sqft to 1,760 sqft. Prospective buyers can choose from terrace houses with 2 bedrooms and 1 bathroom , 3 bedrooms and 1 bathroom, 4 bedrooms and 3 bathrooms, 4 bedrooms and 4 bathrooms and even 6 bedrooms and 4 bathrooms. The layout and size combination of Taman Desa Cemerlang residential units that is the most popular among buyers is the 4 bedroom units that are 1,760 sqft in size. Taman Desa Cemerlang is developed by Crescendo Corp Bhd. The current market price for residential units range from RM4,600 to RM12,194,280. This means that they cost RM1 to RM487 per sqft. The highest median price per sqft that has ever been recorded is RM266 per sqft in the third quarter of the year 2019 whereas the lowest was RM101 per sqft, recorded in the second quarter of 2011. There are other projects in the area that are worth taking a look at including Greenfield Regency, R&F Princess Cove, Palazio, Tropez Residences @ Tropicana Danga Bay and Eco Summer.
View project details







