TAMAN JENJAROM PERMAI
Socr taman jenjarom permai socr
New Project: 2025
Semi-Detached House
Cluster House
Terraced House
Starting from
RM 430,000
Indicative price as of 1 Feb 2025 taken from KPKT.
Est. Repayment RM 1,803/ mo
Check your eligibility 
4 bed
2 bath
N/A
See Unit Types and Prices
About this property
Socr taman jenjarom permai socr
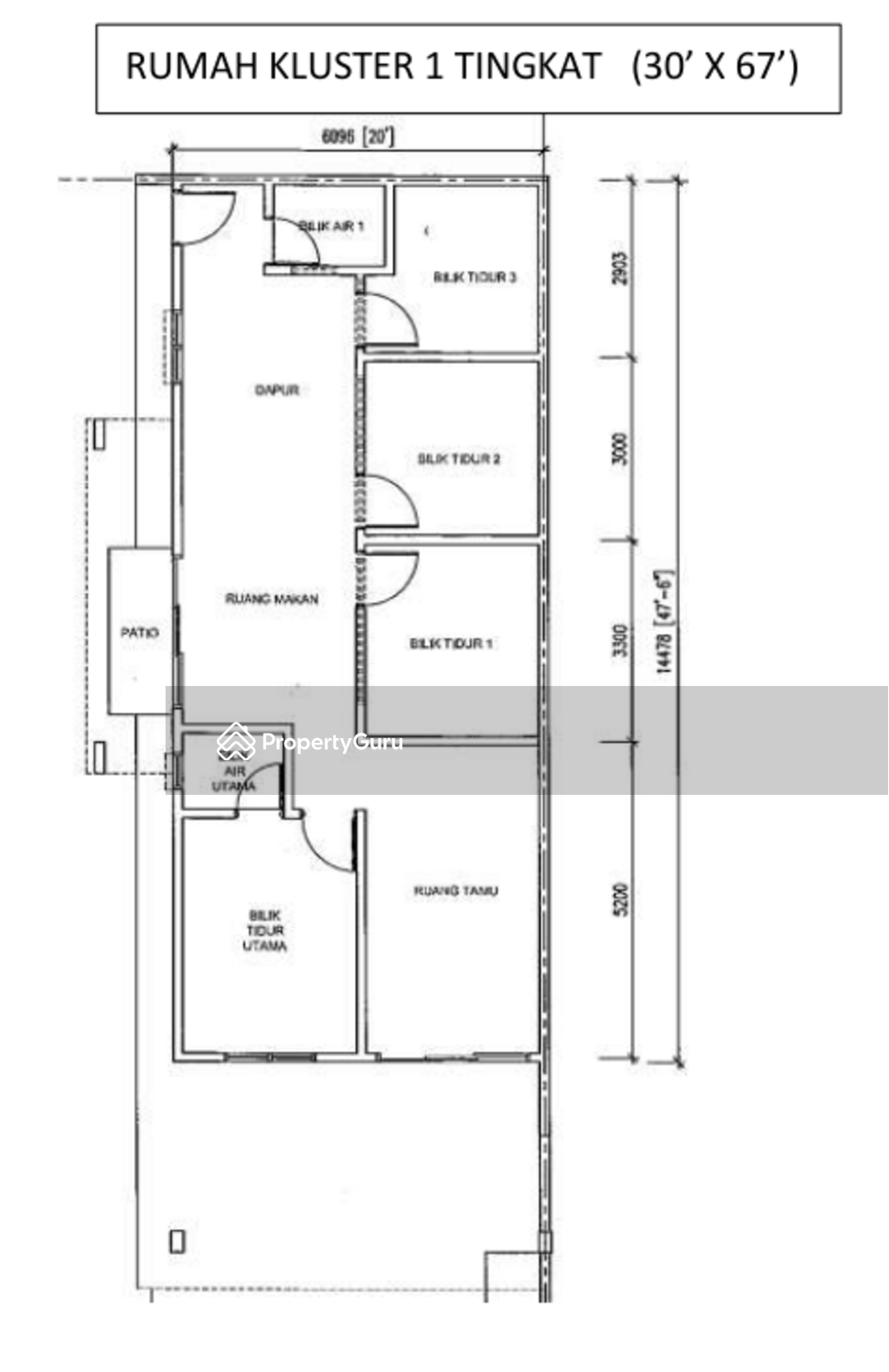
This property is a leasehold property with expected completion in January 2025. There are three types of units available, namely 2 units of 1-storey semi-detached (50x67), 4 units of 1-storey cluster (30x67), and 16 units of 1-storey terrace (21x65). It offers a 7% discount for Bumiputra buyers. This property is developed by MESWARA DEVELOPMENT SDN BHD and is located at No.22, Jalan Cermai, Taman Gembira, 42600 Sg Jarom, Selangor.
Available Unit Types
Price information is currently unavailable
4
2
Explore other options in and around Banting
Based on the property criteria, you might be interested on the following
Nearest Schools










