BIG COMPOUND SHOP/OFFICE IN BUTTERWORTH FOR RENT
BAGAN LUAR, Bagan Luar, Butterworth, Penang
RM 32,000 /mo
Negotiable5
Baths
26,438
sqft (floor)
About this property
Iconic Former Bank Building,Basement Parking,3 Mins to Penang Sentral
Rare opportunity to lease a corporate building in Butterworth
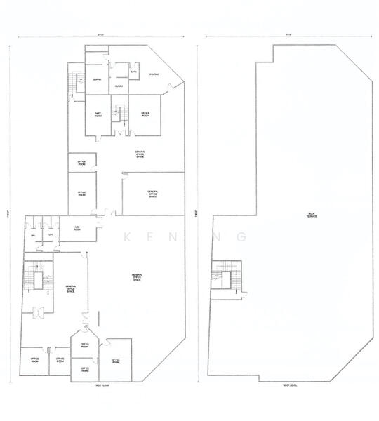
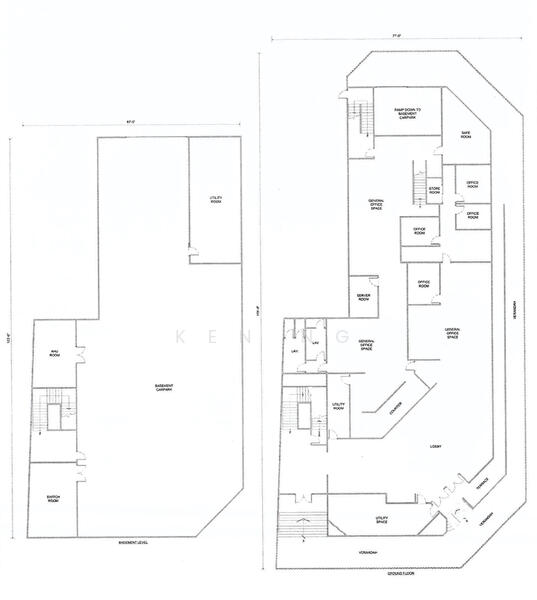
This property offers 16,721 sqft of 2-storey office space with a private basement car park (approx. 20 bays) — ideal for corporate, institutional or training centre use.
Located at a high-visibility corner lot, just 3 minutes to Penang Sentral, providing excellent accessibility via KTM, bus and ferry. Surrounded by banks and government offices, the area is active during office hours and low-traffic after hours, suitable for focused operations.
Key Features:
Former bank building (solid & secure)
Total office area: 16,721 sqft
Basement parking for ~20 cars
Corner unit, high visibility
Excellent transport connectivity
This property offers 16,721 sqft of 2-storey office space with a private basement car park (approx. 20 bays) — ideal for corporate, institutional or training centre use.
Located at a high-visibility corner lot, just 3 minutes to Penang Sentral, providing excellent accessibility via KTM, bus and ferry. Surrounded by banks and government offices, the area is active during office hours and low-traffic after hours, suitable for focused operations.
Key Features:
Former bank building (solid & secure)
Total office area: 16,721 sqft
Basement parking for ~20 cars
Corner unit, high visibility
Excellent transport connectivity
Amenities
Covered car parking
Handicap-friendly
Common facilities
Covered car park
FAQs
The monthly rental in Bagan Luar, Butterworth is RM 32,000 /mo.
No.
BAGAN LUAR, Bagan Luar, Butterworth, Penang.
Here is a guide to rent a property in Malaysia including security deposit and understanding the importance of tenancy agreement.
Explore other options in and around Bagan Luar
Based on the property criteria, you might be interested on the following
Shop / Office For Rent
Nearest Public Transport
Nearest Schools












