Double Storey End-Lot Shop Lot @ Kota Laksamana same row 99 Speed Mart
Jalan Kota Laksamana 3/7, Taman Kota Laksamana Seksyen 2, Melaka City, Melaka
RM 3,500 /mo
2
Baths
1,820
sqft (floor)
Ready to move in Shop
About this property
Double Storey End-Lot Shop Lot @ Kota Laksamana same row 99 Speed Mart
Double Storey End-Lot Shop Lot @ Kota Laksamana same row 99 Speed Mart
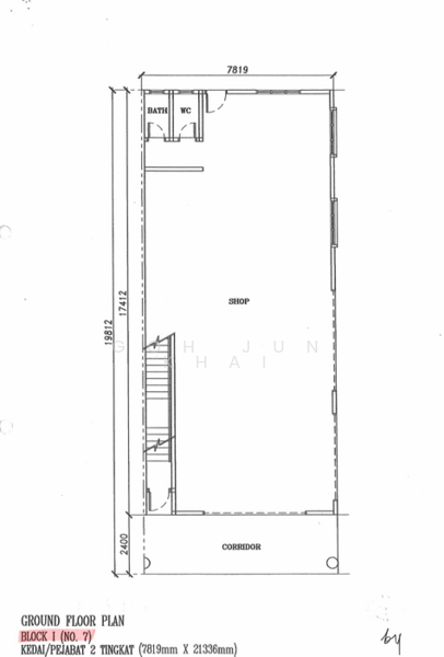
- For Rent Ground Floor RM3500
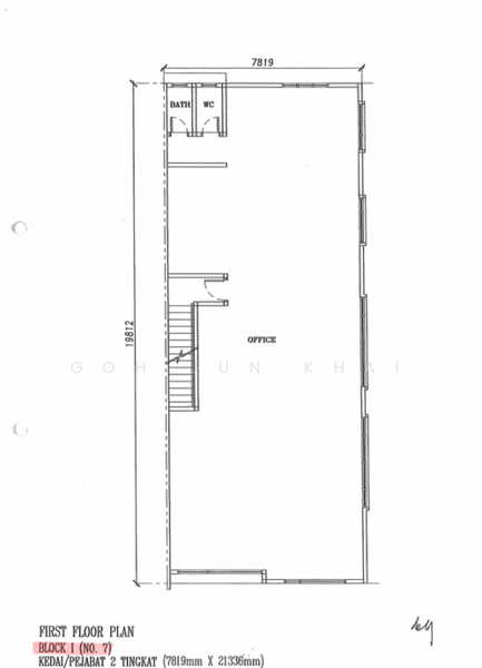
- For Rent First Floor RM1000
Premise Details:
- Size 26x70 sq.ft
- Direction Facing Northwest
- End Lot got Two Roller Shutter Beside
- End Lot Size Bigger
Location: Same row with 99 Speed Mart Kota Laksamana
Interested can contact
Jun Khai 0*****
- For Rent Ground Floor RM3500
- For Rent First Floor RM1000
Premise Details:
- Size 26x70 sq.ft
- Direction Facing Northwest
- End Lot got Two Roller Shutter Beside
- End Lot Size Bigger
Location: Same row with 99 Speed Mart Kota Laksamana
Interested can contact
Jun Khai 0*****
FAQs
The monthly rental in Taman Kota Laksamana Seksyen 2, Melaka City is RM 3,500 /mo.
No.
Jalan Kota Laksamana 3/7, Taman Kota Laksamana Seksyen 2, Melaka City, Melaka.
Here is a guide to rent a property in Malaysia including security deposit and understanding the importance of tenancy agreement.
Explore other options in and around Taman Kota Laksamana Seksyen 2
Based on the property criteria, you might be interested on the following
Nearest Public Transport








