Eco Business Park @ Johor Bahru
2, Ekoperniagaan 2, Senai Airport City, Senai, Kulai, Johor
RM 8,500 /mo
2
Baths
3,921
sqft (floor)
Ready to move in Factory
About this property
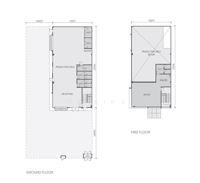
1.5 Storey Cluster Factory @ Eco Business Park 2, Senai for Rent
Land Size : 60' x 120' / 7,200 sq.ft.
Built Up : 3,921 sq.ft.
Power Supply : 150 Amp
Ceiling Height : 8 Meter
Floor Loading : 10 kN/m²
- Nearby a-lots Global International Corporation that includes Hershey, Panasonic, Dyson, Mitsubishi Electric, Seagate and more.
- 2KM to Kastam Diraja Malaysia @ Free Zon, Senai Airport City
- Clean & Green Industrial Environment
Asking Rental : RM 8,500
Amenities
Security guard
Common facilities
24 hours security
Community garden
Parking
Eco Business Park @ Johor Bahru
Strategically located in Senai Airport City within Iskandar Malaysia's Flagship E, Eco Business Park 2 by EcoWorld is a premier gated and guarded industrial park designed for the future of business. This development redefines the concept of an industrial space by integrating world-class facilities with green and sustainable features, creating a unique "industrial resort" environment that blends business operations with relaxation and recreation. The park caters to a range of needs with its Semi-Detached and Cluster factories. Eco Business Park 2 is engineered to provide a conducive and efficient environment for modern enterprises. The development is built on several key principles: Units feature adaptable layouts and double-volume spaces, allowing businesses to creatively customize their area for combined use, such as a showroom and service center or a retail front with a warehouse. To promote sustainability and reduce operational costs, the park incorporates rainwater harvesting systems, tall windows and clear roofs for natural light, and energy-saving LED street lamps. Ample green lungs and gardens help to create a healthier and more productive work environment. Unlike conventional industrial parks, this development is gated and guarded with 24-hour security and CCTV, ensuring a safe setting for businesses. It also includes a central park and recreational facilities. Eco Business Park 2 is equipped with a comprehensive range of facilities designed to support and enhance business operations. On-site amenities include a community garden and ample parking. Furthermore, EcoWorld provides a "One-Stop Business Solution"—a suite of professional services created to offer a hassle-free experience for setting up operations, from company incorporation to license applications. Located in the dynamic economic zone of Senai, Eco Business Park 2 offers businesses a significant logistical advantage. The park benefits from excellent connectivity to major transportation networks, including:North-South Expressway (NSE) Senai-Desaru Highway Johor-Singapore Second Link Expressway Proximity to Senai International Airport and regional seaports Eco Business Park 2 is a project by Eco World Development Group Berhad (EcoWorld), a public listed Malaysian company known for its extensive portfolio of developments that include new townships, integrated commercial projects, and green business parks. EcoWorld has established a strong reputation in the industrial property sector, with its business parks achieving significant sales growth.
View project details








