Setia Business Park - 1 Acre Detached Factory
Jalan Laman Setia 7/1, Johor Bahru, Johor
RM 60,000 /mo
View to Offer4
Baths
24,678
sqft (floor)
About this property
Setia Business Park Gelang Patah Gated & Guarded Deteched Factory
Rental RM 60k
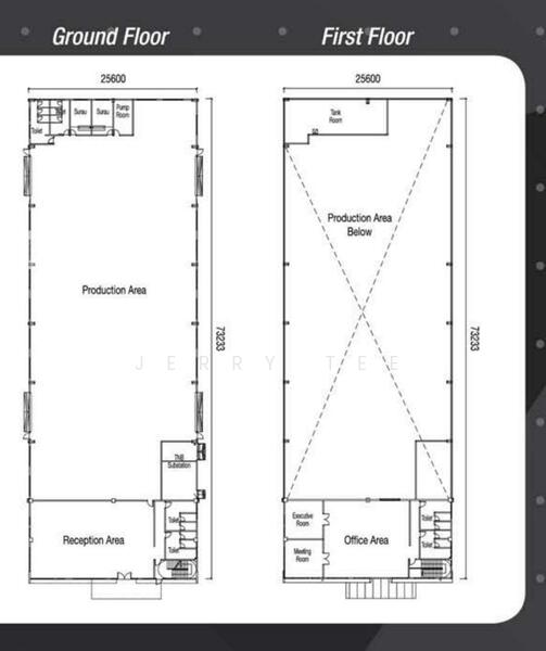
Built 24,678 sqft
Land 1acre
Power 600amp
Available Nov
Pls call for arrange viewing Jerry 0*****
Amenities
24-hour access
Security guard
Common facilities
24 hours security
Parking
Perimeter fencing
Setia Business Park - 1 Acre Detached Factory

Updated: 2nd June 2021 Setia Business Park - 1 Acre Detached Factory is a group of freehold factories located at Johor Bahru, Johor. Developed by SP Setia in 2014, these factories are part of the first eco-themed industrial park in Johor. These environmentally friendly factories at Setia Business Park caters specifically to businesses that have strong green credentials and those which require clean manufacturing facilities. Setia Business Park broke new ground in Johor, as it is the first eco-friendly industrial park within the region. Connected to major highways and served by world-class infrastructural facilities, the factories at Setia Business Park also meet the requirements for an environmentally sustainable factory that complements the socio economic goals of Malaysia. Thus, the factories at Setia Business Park are now regarded as the international gateway for high-value investments and business expansion. The Skudai-Pontian highway is not far away from the detached factories at Setia Business Park, thus connecting the factories to seaports at the coastal town of Pontian. Furthermore, the nearby North-South Expressway opens up transportation of goods to other districts of Johor, including the Senai International Airport which is merely 25 minutes away. The Malaysia-Singapore Second Link expressway is also a few kilometres away, thus opening up business possibilities with Singapore. The detached factories at Setia Business park have a land area of 1 acre and a built-up size starting from 24,678 sqft. There are a total of 5 detached factories within the vicinity and each factory has a green design. For instance, the factories were designed to reduce heat gain and enhance natural ventilation as well as utilising a water recycling system. Furthermore, high-speed broadband is provided for factory owners to ensure that their businesses run smoothly. Factory owners can also rest easy knowing that the safety of their factories are assured as there are security systems in place along with a 24-hour guard patrol in the area. There are several schools within the vicinity of Setia Business Park such as Tenby International School, Tenby Schools, Setia Eco Gardens, SJK(C) Pai Tze and SMK Kangkar Pulai. There is also a local community college at Gelang Patah. If any injuries occur during work, workers can head over to the nearby Klinik Prisma Bayu which is only 9 minutes away. For more serious injuries, workers should get treated at Columbia Asia Hospital as the hospital would have more advanced medical equipment. The factories at Setia Business Park are surrounded by a variety of hypermarkets such as Aeon Bukit Indah, Tesco Mutiara Rini, Johor Bahru and Aeon Taman Universiti. There are also several glamorous malls nearby that house an array of retail stores such as Sutera Mall, Perling Mall and Paradigm Mall Johor Bahru. There is a wide assortment of mouth-watering food surrounding the detached factories at Setia Business Park. Workers can dine on juicy chicken chops at IT ROO or feast on unique pastries at Restaurant Min Corner. There are also plenty of appetising desserts to be found in cafes such as People & Places Café, Bev Café and Faculty of Caffeine. The factories at Setia Business Park were developed in 2014 by Setia Promenade Sdn Bhd, which is part of the SP Setia group. SP Setia is a well-known property development company that was founded back in 1974 and has won best employer and top developer awards multiple times. The goal of developing Setia Business Park was to create a clean and green industrial park in the Johor Bahru region, which complements the socioeconomic growth plan of Malaysia. The detached factories at Setia Business Park cost up to RM 9 million. If you are intrigued with properties of similar value, please check out this list of properties. Business owners looking to run their manufacturing in a clean and green environment should consider the factory units for sale at Setia Business Park. If they do not wish to commit too much money currently, they can consider the units for rent instead.
View project details









