Sungai Petani Semi-Detached Factory For Rent
Sungai Petani, Kedah
RM 6,500 /mo
Negotiable2
Baths
4,564
sqft (floor)
Ready to move in Semi-D Factory

Photos

Map View
About this property
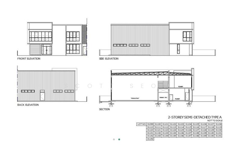
2-Storey Semi-D Factory For Rent
Brand new 2-storey semi-detached light industrial factory located in Saga Light Industry Park, Sungai Petani
Asking Rental: RM6,500
Freehold Tenure
Completion Year: 2025
Built-up Area: 4,564 sqft
Land Area: 5,995 – 14,779 sqft
Ceiling Height: 28 ft
Floor Loading: 1 – 1.5 tonnes/m²
Power Supply: 150 Amp
Road Access Width: 50 ft (container accessible)
Asking Rental: RM6,500
Freehold Tenure
Completion Year: 2025
Built-up Area: 4,564 sqft
Land Area: 5,995 – 14,779 sqft
Ceiling Height: 28 ft
Floor Loading: 1 – 1.5 tonnes/m²
Power Supply: 150 Amp
Road Access Width: 50 ft (container accessible)
FAQs
The monthly rental in Sungai Petani, Kedah is RM 6,500 /mo.
No.
Sungai Petani, Kedah.
Here is a guide to rent a property in Malaysia including security deposit and understanding the importance of tenancy agreement.
Explore other options in and around Sungai Petani
Based on the property criteria, you might be interested on the following
Semi-D Factory For Rent
Nearest Public Transport
Nearest Schools



