Residensi Pandanmas 2 consist of 3 blocks of apartments, over 8.71 acres of leasehold land in Kampung Pandan.

Seri Ampang Hilir, an exclusve living pad for those who can afford it (Source: http://www.tantan.com/projects/seri-ampang-hilir/)
Prestigious in its own right, Seri Ampang Hilir is among the high-end properties located along the secluded Jalan Ampang Hilir. With limited number of units, the development accentuates space above volume with its duplex layout. The development is definitely a lucrative pad for those who have no qualms about spending the cash for a home.
Project Description: Seri Ampang Hilir, Ampang Hilir
Address: 20, Jalan Ampang Hilir, 55000, Kuala Lumpur
Property Type: Condominium
Land Title: Residential
Tenure: Freehold
No. of Blocks: 3
No. of Units: 40
Built Ups:
Type AP1, 5 Bedrooms 3, 855 sq.ft. (Duplex)
Type AP2, 5 Bedrooms, 4, 058 sq.ft. (Duplex)
Type BP, 5 Bedrooms, 5, 188 sq.ft. (Duplex)
Type CP, 5 Bedrooms, 4, 299 sq.ft. (Duplex)
Type D, 4 Bedrooms, 4, 586 sq.ft. (Single Storey)
Facilities:
- Infinity Edge Swimming Pool
- Wading Pool
- Jacuzzi
- Gymnasium
- Lounge
- Function Room
- Play Area
Selling Price Range: RM 3.2 mio and above
Price per sq. ft.: RM 842 per sq. ft.
Maintenance Fees: RM 0.55 psf.
Event/Show Unit: Call +603 2283 2266 or email marketingsales@igbcorp.com for more information
Project Details
This is a development where money is not an issue for the buyers. The posh and prestigious atmosphere is simply dominating especially for passers-by of Jalan Ampang Hilir. Despite the rapid development, the area still exudes privacy and serenity among its lush green trees. One would also be amazed at the up and coming developments that are able to squeeze into the area given the balance of land left.
Seri Ampang Hilir is yet again another prestigious development by Tan & Tan, which is famously known for high-end residential projects such as three28 Tun Razak, G Residence, Damai 15 and more. It is not surprising that such upscale residential development shows touches of sophistication and elegance as those are the developer’s trademarks.

Luxurious compund with clasy touches to entice the residents (Source: http://www.tantan.com/projects/seri-ampang-hilir/)

Serene surrounding is the main mantra of Seri Ampang Hilir (Source: http://www.tantan.com/projects/seri-ampang-hilir/)
This stunning development is equipped with a 25-metre infinity edge swimming pool with recreational deck, wading pool, Jacuzzi, lounge, gymnasium, management office, function room and a play area for kids. There are also food preparation area, function room and open spaces to cater residents’ social gatherings and alfresco dining. Its emphasis of having ginormous space for the general usage of the residents is evident in its exterior approach of the residential area.
Seri Ampang Hilir in generally is a 3-block condominium with a total of 40 units as two units are located on each floor. Each block is 10 storeys high. There are a couple of units that are up for grabs and these units are mostly the penthouses located on the highest floors of the development.

Type AP1 is among the units avalaible here (Source: http://www.tantan.com/wp-content/pdf/e-brochure/sah-brochure.pdf)
Type AP1 is sized at 3,855 sq ft. It has five bedrooms with four utility rooms. Each room has its own bath. This includes a massive bathtub built in the master bedroom’s bath. For the convenience of guests, there is powder room located on the lower floor. The layout of the unit is column free with minimal partitions that highlights its spaciousness. Fluidity of space is a result of the column free interior that encourages residents to be more bold and daring in designing the interior of their home.
Natural lighting from the sun flows seamlessly in from the balcony and the kitchen providing a sense of natural ambience. Plus, the kitchen here is massive as it is equipped with a yard that can be converted into a wet kitchen. There’s a utility room located near the yard. This room can be converted into a maid’s quarters given the access to its own private bath. This is among the units that are located on the highest floor of level 8 and 9.
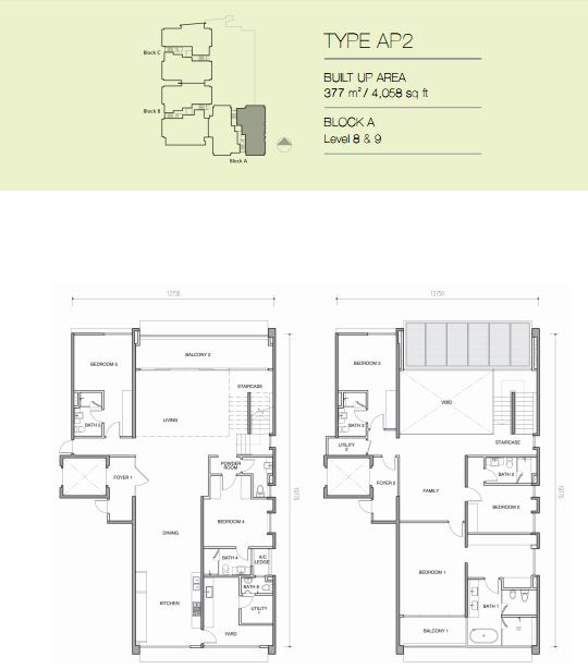
Type AP2 is sized at 4,058 sq ft. It comes with five bedrooms and six baths. Again, all bedrooms are attached to its own bath along with a utility room located on the lower floor. This utility room can be converted into a maid’s quarters given the privacy of the location, located on its own in the yard. Besides that, there is a powder room on the same floor that can be utilised by tenants and guests. On the upper floor, the master bedroom is done in such a grandeur manner. It comes along with an enormous bathtub along with its own private balcony. There is a family area located here as well as two other bedrooms.

Compartment-less layout in creating fluidity from one area to another (Source: http://www.tantan.com/projects/seri-ampang-hilir/)

Visually spacious without borders or compartments (Source: http://www.tantan.com/projects/seri-ampang-hilir/)

Master bedrooms come with a grand bathtub (Source: http://www.tantan.com/projects/seri-ampang-hilir/)
Great attention to details seems to be the alluring factor to Seri Ampang Hilir. Such a divine area surrounded by great in-house facilities in the comfort of one’s home. Knowing space is among the many important reasons of buying a home, the development is not shying away in lavishing future buyers and residents with lots of it. The comfort of a home right in the middle of a metropolitan city can truly be felt throughout the development. A great purchase especially for those with no financial cap and an expanding brood seeking for a great spacious place to call home.
Location
Seri Ampang Hilir nestles in a serene compound located along Jalan Ampang Hilir. The enviable area is an elite neighbourhood that mostly consists of high-end low density apartments that only a few could afford. Green sceneries exude a welcoming ambiance to those who call the area home.
Jalan Ampang Hilir is well linked to numerous main roads in Kuala Lumpur. One can find themselves along Jalan Ampang via Persiaran Ampang Hilir. This would then lead residents to the centre of the city within less than ten minutes. Entry and exit points to AKLEH and DUKE are located within and around Jalan Ampang and Jalan Jelatek. For those heading to DUKE, you can take Jalan Jelatek from Jalan Ampang. The entrance to DUKE is located before entering Jalan Setiawangsa. MRR2 is also accessible via Jalan Ampang. Meanwhile, Jalan Tun Razak and Jalan Pahang are within a short drive.
There is an ongoing construction of an elevated intersection at Jalan Ampang. The crossroads will be built in between Jalan Ampang and Jalan Jelatek. The extension hopes to provide more options for commuters heading in and out of Jalan Ampang. This is great news in mitigating and reducing tailbacks that often occur along the road. The construction is expected to complete in 2017.
Living within the reach of the city centre does give numerous advantages. Many would rejoice to the fact that some Kuala Lumpur’s grand commercial malls are close by! For those with the need to shop, destinations are limitless.
- Suria KLCC– Accessible by AKLEH or ride on straight onto Jalan Ampang up to Persiaran KLCC. It would only take you less than 5 minutes to get to KLCC. If you are planning to avoid the hassle of finding a place to park, just hop on the train at Jelatek LRT Station or Ampang Park LRT Station to get there!
- Pavilion Mall and Star Hill Gallery– This is another prime destination for those who are into branded items and luxury goods. You can either walk via the covered walk that is attached to KLCC or take a Monorail there.
- Great Eastern Mall– Great Eastern Mall is a rather subdued mall in the sense of stature and shopping options. But it has become a favourite destination for many expats and locals who are living around the area. It provides basic amenities such as Cold Storage, KizSports & Gym (an indoor playground that also offers pre-school education, ballet, gymnastic as well as Taekwondo classes) as well as fitness centres such as Body Logic, Studio E and BODYTONE.
- Intermark– This is another convenient place to go for a quick bite or provision shopping. Attached to Hilton’s Doubletree, Intermark caters to both working folks and families. Weekends would be the best time to head on there as there are ample parking spaces and of course, the food court is empty! Plus, the Jaya Grocer here caters to the foreign pool of consumers with a great selection of good imported products and produce.
Jalan Ampang Hilir as mentioned is slightly secluded from the eyes of many but its location is extremely nearby to various amenities. Residents are merely minutes away from the amenities below:
- Gleneagles Intan Medical Center, Ampang via Jalan Ampang
- Prince Court Medical Centre, Kia Peng via Jalan Tun Razak
- Ampang Puteri Specialist, Ampang Hilir via MRR2
- HSC Medical Centre via Jalan Ampang
- Royal Selangor Golf Club via Jalan Tun Razak
- Darul Ehsan Golf Club, Ukay Heights via MRR2
- KDE Driving Range, Ukay Heights via MRR2
- The International School of Kuala Lumpur (ISKL), Ampang Hilir via MRR2. The school will move to Jalan Ampang Hilir by 2017/2018
- Sayfool International School, Ampang via Jalan Ampang
- Fairview International School, Wangsa Maju via Jalan Setiawangsa
- Taylor’s International School, Taman Maluri (formerly known as Sri Garden International School) via Jalan Tun Razak or Bulatan Pandan
- Montessori The Children’s House via Jalan Ampang Hilir
- Kuala Lumpur International Kindergarten via Jalan Madge
Do check out the other unique and hidden gems around the area.
- Lorong Nibong’s Restaurants Galore- This tiny lane along Jalan Ampang promises great gastronomy adventure for food enthusiasts. Diverse cuisines with unique ambiance especially during the nights. Among the restaurants here are Victoria Station, Kobe Restaurant and Bar, The Balcony Bar & Grill, Sahara Tent and La Mexicana
- Pasaraya Hock Choon– This mart has been around for decades and it is among the oldest grocery stores in Kuala Lumpur. It has all the basic necessities as well as imported goods from far and wide. It might need a fixer upper but the items sold here are imported and rare.
- Little Korea (Ampang)– There is a specialised Korean area that is fondly called Little Korea. They have countless Korean restaurants including Korea Gomonae (Jalan Mamanda 3), Gangnam Gindap (Jalan Mamanda 3), Hanwoori Korean Restaurant (Jalan Ampang Utama 1/1), Uncle Jang Korean Restaurant (Jalan Ampang Putra) and Chun Wa Dae (Jalan Ampang Utama). Besides that, it also caters to the Korean community’s education needs. These include ESLANDA International Academy, an English learning centre as well as Malaysia Korean Kumdo Dojang, a martial art institute.
- Discovery Pilates Studio via Lorong Nibong- Health enthusiasts can just head on down to the studio for some Pilates sessions to unwind from their daily work schedule. What makes this studio a stand out is how serene the ambiance is especially in the early mornings. A great relaxation for both body and mind.
The area is the hub of the international community as there are at least 50 embassies scattered around Jalan Ampang and its inner routes that include Jalan Ampang Hilir, Jalan Madge and Jalan U-Thant. It also indicates a massive presence of the expat community. Among the embassies here are:
- Embassy of Switzerland
- Embassy of the Union of Myanmar
- Embassy of Italy
- Embassy of Swaziland
- Embassy of Nigeria
- Bangladesh High Commission
- High Commission of Kenya
- Embassy of the United Arab Emirates
- The People’s Bureau of the Great Socialist People’s Libyan Arab Jamahiriya
- High Commission of Republic of Ghana
- Embassy of the Democratic People’s Republic of Korea (North)
On the downside, people from various nationalities can often be seen around the area due to the location of these embassies. At times, they would come in big groups and that could be a hindrance to vehicles commuting around here.
Ampang Hilir is definitely a low rise residential development haven. There isn’t any high-rise and high density condominium in sight. The existing condominiums here such as Seri Hening Residence, Katana II, Ampang Hilir Tara, Iringan Hijau Condominium and Brunsfield Embassyview are all low density in status. Nonetheless, the competition can be fierce given the wide selection of residential property around that are within the same price bracket.
Analysis
Price Analysis
| Name | Land Tenure | No. of Blocks | No. Storey/Units | Selling Price |
| Seri Ampang Hilir By Tan & Tan |
Freehold | 3 | 10 storeys/40 units | Starts at RM 3.2 mio |
| Katana II By Katana Developments |
Freehold | 1 | 10 storeys/ 40 units | RM 4.3 mio and above |
| Seri Hening Residence By Great Eastern Life Assurance |
Freehold | 6 | 10 storeys each/113 units overall | Starts at RM 1.8 mio |
Rental starts from 6,800 to RM12,500.
The Developer
Founded in 1971, Tan & Tan’s passion for property has driven them to become one of the leading and most sought after developer in the country. With decades of industry expertise under their bricks, they are now known as a versatile property builder with a remarkable track record in condominiums; landed properties and gated communities; commercial and residential buildings; and hospital development.
Every project is embedded with an outstanding visionary innovation that speaks of architectural excellence for a bespoke lifestyle. Tan & Tan is proud that their commitment to deliver high-end properties with quality construction and long-term value has won them the following recognitions: ‘The Edge Malaysia Top Property Developers Award’ for thirteen consecutive years and the prestigious ‘FIABCI Award of Distinction for Residential Development’ in the year 2002 and 2012. Tan & Tan Developments Berhad is a wholly owned subsidiary of IGB Corporation Berhad listed on the main board of Bursa Malaysia.
Among Tan & Tan’s other developments are Park Manor, G Village, Seri Ampang Hilir, Three28 Tun Razak, Damai 15, Sierra Heights and G Residence.
(Source http://www.tantan.com/about/introduction/#sthash.NEDcdTPp.dpuf)
Summary
If you’re looking for a priceless property with the best location, look no further. Seri Ampang Hilir is an exquisite gem nestling in the heart of Ampang Hilir. All major amenities, from shopping complexes, medical care right down to educational institutions are all located minutes away from the development.
The highlight of the property is its spacious penthouses and duplex units that give maximum volume to the layouts. Besides that, there are only a handful of units here and this epitomises low density living at its best. The developer has also embellished the property with state-of-the-art facilities for the using pleasure of its residents. If you have the cash to splash, do give Seri Ampang Hilir some serious consideration. It will be worth the money spent.

















