Curvo Residences is the final residential phase of the first integrated development in Setapak, SkyArena.
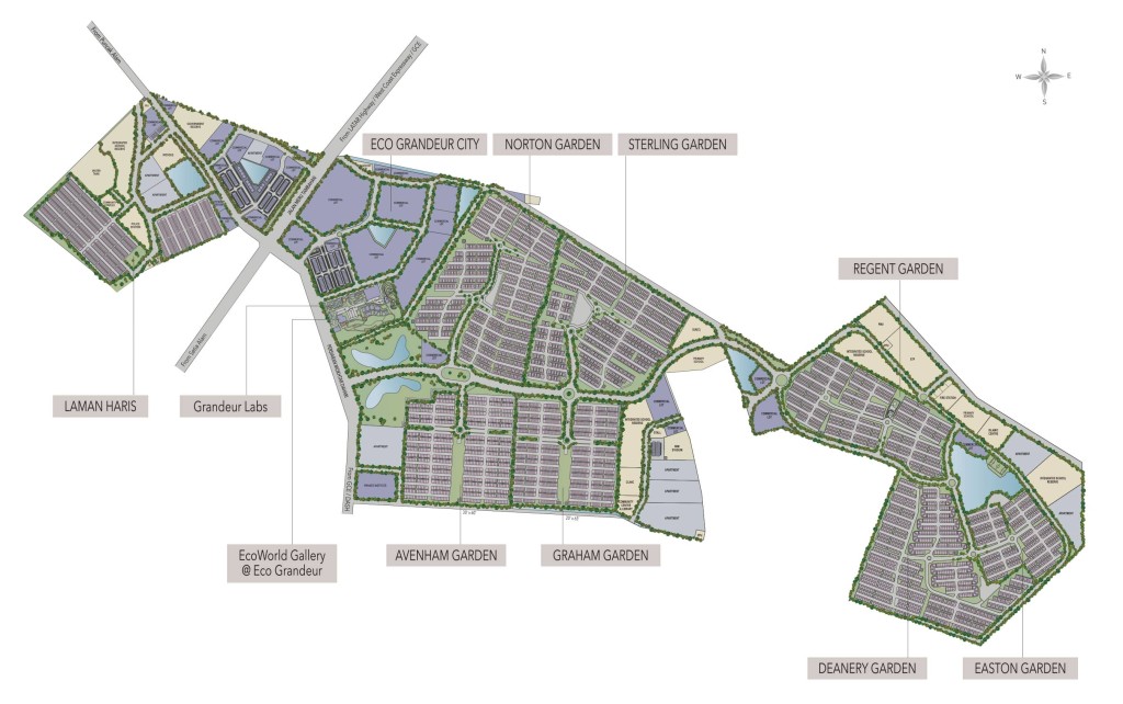
Eco Grandeur is a 1,400-acre integrated township development which carries a gross development value (GDV) of RM9 billion, and it comprises houses in gated and guarded precincts, a commercial centre, and close proximity to nature and a close-knit community to Puncak Alam, Kuala Selangor.
Eco Grandeur launched its first phase in September 2016, and the show village unveiled 12 show units in March 2017. The 12 units are from phase 1’s launch of Graham Garden terraced homes and Avenham Garden homes.
Graham Garden consists of 20’ x 65’ double-storey terraced homes with prices starting from RM529,000, while Avenham Garden offers 30’ x 60’ garden double-storey homes that resemble semi-detached houses, as each unit comes with 10ft land, and they were priced from RM697,000.
The precincts in Eco Grandeur include:
- Grandeur Labs
- Eco Grandeur City (200-acre commercial precinct)
- Graham Garden
- Avenham Garden
- Norton Garden
- Sterling Garden
- Regent Garden
- Deanery Garden
- Easton Garden
- Laman Haris
As with all EcoWorld developments, Eco Grandeur features a signature roundabout. This oval-shaped roundabout is presented as a formal garden. The precincts in Eco Grandeur are gated and guarded, with a single entry or exit point, while the guardhouse is incorporated into entrance archways.
Dragonflies thrive where the air is fresh and waters are pure, and thus, they become a symbol of a healthy and balanced ecosystem. This inspired the creation of the dragonfly-shaped lake in the 60-acre town park.
A Bridge of Dreams that takes you across the Dragonfly Lake and introduces you to modern Victorian-influenced architecture in Eco Grandeur. The bridge is touted to be an ideal vantage point to take in the scenic garden views. Greenery covers over 20% of Eco Grandeur, giving life to conservation initiatives and many different garden concepts.
The commercial precinct, Eco Grandeur City, is expected to serve residents of Eco Grandeur and the entire Puncak Alam vicinity. Components of Eco Grandeur City will include an international school, convention centre, hotels, serviced apartments, hospital and shopping mall.
The developer also introduced HOPE, which is short for Home Ownership Programme with EcoWorld. It offered two methods for purchasers to start their home ownership journey or own their desired home:
- STAY2OWN (S2O) in partnership with Maybank HouzKEY, or
- HELP2OWN (H2O) via a mortgage
The campaign applied to a wide selection of EcoWorld Malaysia’s residential properties and ran for a period of six months until 30 June 2019. Do check with the developer for an update of their packages and home ownership programmes.
The developer, Eco World Development Group Berhad, said that Eco Grandeur has managed to attract many young families as well as upgraders from all over the Klang Valley.
If you are interested in Eco Grandeur, check out our latest review on Regent Garden, the fifth phase of this beautiful development.
Address: Paragon Pinnacle Sdn Bhd, Lot 6232, Persiaran Mokhtar Dahari, Eco Grandeur, 42300 Bandar Puncak Alam, Selangor
Property Type: Residential / Commercial
Total Units:
- Graham Garden: 1,012 units
- Avenham Garden:
- Norton Garden: 773 units
- Esplanad: 96 units
Tenure: Leasehold
Gallery: Paragon Pinnacle Sdn Bhd, Lot 6232, Persiaran Mokhtar Dahari, Eco Grandeur, 42300 Bandar Puncak Alam, Selangor
Gallery GPS Coordinates: 3.225565, 101.455361
Year of Completion: End 2019 or early 2020 onwards
Built-up Area:
- Graham Garden: 1,521 sq ft – 1,743 sq ft
- Avenham Garden: 1,778 sq ft – 1,877 sq ft
- Norton Garden: 2,159 sq ft – 2,516 sq ft
- Esplanad: 22’ x 75’ – 46’ x 80’
Norton Garden Facilities:
- Residents-only clubhouse
- Swimming pool
- Children’s wading pool
- Fully-equipped gym
- Multi-purpose court
- Entertainment hall
Launch Price:
- Graham Garden: From RM529,000
- Avenham Garden: From RM697,000
- Norton Garden: From RM980,000
- Esplanad: From RM1.29 million
Project Details
After the launch of its phase 1 residential component (Graham Garden and Avenham Garden) in 2016, Esplanad was launched in 2017 and it has a gross development value (GDV) of RM170 million. It comprises 96 units of 2- to 3-storey leasehold shop-offices. The two-phase Esplanad project is expected to be completed by end 2019 or early 2020, together with the first residential phase in the township.
The first phase of Esplanad offered 72 units for sale, and the selling price of the first phase started from RM1.29 million for the intermediate units, which face a future commercial area and lake. The corner 3-storey units facing Jalan Meru Tambahan and Persiaran Puncak Alam is priced from RM4.2 million. Divided into four rows, Esplanad is part of the 200-acre Eco Grandeur City commercial centre.
The newest gated and guarded precinct in Eco Grandeur is Norton Garden. It was launched in April 2018, and offers larger homes, such as bungalows, semi-detached houses, and garden homes. Given the larger built-up sizes, these houses target upgraders who are looking for bigger homes, whether to accommodate a growing family or to match their current status in life.
With 6.4 units per acre, Norton Garden is a low-density enclave. In line with the entire Eco Grandeur, Norton Garden showcases modern Victorian architecture as well, complemented by landscaping that includes parks and back-lane gardens. These 20-foot back-lane gardens form part of the precinct’s pedestrian network to create conducive gathering spaces for residents and a safe space for the children to play.
Each unit will also have a balcony on the top floor that is accessible via louvre doors from the bedroom. Norton Garden is expected to be completed by end 2020.
|
Unit Types Double-storey Link House |
Built-Up |
Launch Price September 2016 |
|
Graham Garden
· Type A
· Type B
· Type C
· Type D
|
20’ x 65’
1,521 sq ft
1,635 sq ft
1,635 sq ft
1,743 sq ft |
From RM529,000
|
|
Avenham Garden
· Type A
· Type B
· Type C
· Type D
· Type E
· Type F
|
30’ x 60’
1,778 sq ft
1,836 sq ft
1,836 sq ft
1,841 sq ft
1,868 sq ft
1,877 sq ft |
From RM697,000 |
|
Unit Types |
Built-Up |
Launch Price April 2018 |
|
Norton Garden
Bungalow
· Type B1
· Type B2
· Type B3
· Type B4
Semi-D
· Type S1
· Type S2
· Type S3
· Type S4
· Type S5
· Type S6
|
50’ x 80’
2,959 sq ft
2,972 sq ft
3,051 sq ft
3,224 sq ft
34’ x 75’
2,159 sq ft
2,294 sq ft
2,337 sq ft
2,515 sq ft
2,382 sq ft
2,516 sq ft |
From RM1.4 million
From RM980,000
|
|
Unit Type Commercial |
Built-Up |
Launch Price June 2017 |
|
Esplanad
|
Corner · 46’ x 75’ · 46’ x 80’
Intermediate · 22’ x 75’ · 22’ x 80’
|
From RM4.2 million
From RM1.29 million |
Location
Eco Grandeur is located in the northwest of the Klang Valley, just 30 minutes from the Kuala Lumpur city centre (KLCC) via the KL-Kuala Selangor Expressway (LATAR). Other major highways that connect to Eco Grandeur are the Guthrie Corridor Expressway (GCE) and New Klang Valley Expressway (NKVE), while the Damansara-Shah Alam Expressway (DASH) is scheduled to open in 2019, and the West Coast Expressway (WCE) in 2020. Other major roads include Persiaran Mokhtar Dahari, Jalan Meru Tambahan and Jalan Kuala Selangor.
The houses would also target professional staff of UiTM Hospital, which is set to complete by 2020. Additionally, Universiti Teknologi Mara (UiTM), is located about 10 minutes’ drive away.
Accessibility
- Guthrie Corridor Expressway (GCE)
- KL-Kuala Selangor Expressway (LATAR)
- North-South Expressway
- Damansara-Shah Alam Expressway (DASH)
- West Coast Expressway (WCE)
- Persiaran Mokhtar Dahari
- Jalan Meru Tambahan
- Jalan Kuala Selangor
Education
- Saujana Utama secondary school
- SJK(C) Kuang primary school
- SMK Puncak Alam Fasa 2
- Universiti Teknologi MARA
Medical Care
- UiTM Hospital
Recreation
- Felda Bukit Cerakah
- Kundang Lakes Country Club
- Kelab Rahman Putra
- Tasik Puteri Golf and Country Club
- Monterez Golf & Country Club
- Taman Botani Negara Shah Alam
Analysis
According to the developer, since Eco Grandeur unveiled phase 1 of its residential component in September 2016, the township has attracted buyers from Puncak Alam, Kota Damansara, Sungai Buloh, Kepong, Rawang, Setia Alam and Klang.
Most of them are buying for future own-stay, while others foresee the township’s growth potential once the commercial projects in the township is completed. Others are eyeing the student accommodation market as Universiti Teknologi Mara (UiTM) is only about 1km away from Eco Grandeur. Additionally, the 14,000-acre Puncak Alam has a population of 250,000 as at 2017.
With population growth, there will be a need for conveniences and amenities. That’s where Eco Grandeur City is expected to provide for the local community’s needs. The Eco Grandeur Labs project, located next to the Eco Grandeur sales gallery, saw its first tenant, INK Library Café, open its doors in July 2017. The project offers 15 retail lots for rental. Each lot has a built-up size of 1,000 sq ft.
Here’s an overview of properties in Kuala Selangor.
|
Project |
Land Tenure |
Unit Type |
Completion |
Built-up |
Approximate Launch Price |
|
Eco Grandeur by EcoWorld |
Leasehold |
Double-storey link house |
2019 |
1,521 sq ft – 1,743 sq ft |
From RM529,000 |
|
Danau Perintis by IJM Land |
Leasehold |
Apartment unit |
2019 |
889 sq ft |
From RM362,000 |
|
Cempaka Sari by Glomac Land |
Leasehold |
Double-storey terrace house |
2018 |
1,568 sq ft
|
From RM584,500 |
|
Alam Suria Enclave by IJM Land |
Leasehold |
Double-storey terrace house |
2020 |
1,685 sq ft |
From RM649,000 |
|
Nusa Suria by IJM Land |
Freehold |
Double-storey semi-detached house |
2014 |
2,690 sq ft |
From RM817,000 |
Summary
Eco Grandeur will be a self-sustaining township with various amenities for its residents and neighbouring housing estates, while the business park will create job opportunities. Eco Business Park (EBP) V, EcoWorld’s first gated and guarded green business park in Klang Valley, is developed in tandem with the township. It was launched in 2017 and offers offer around 100 cluster or semi-d factories.
The business parks complement EcoWorld’s township developments, such as Eco Grandeur, and is poised to create a multiplier effect on the local economy. EBP V is perceived to be the catalyst for the transformation of this part of Selangor as the state’s new industrial hub. It is a major component of EcoWorld’s larger master plan to create an integrated and sustainable environment.
As for phase 1 of the residential component, it has been affordably priced, which provides purchasers the opportunity to own relatively spacious homes with potentially good investment returns. Another key catalyst will be DASH highway, which is expected to be completed by end 2019, and that will enhance the visibility of Eco Grandeur.
DASH will be the main connector between the Guthrie Corridor Expressway (GCE), the New Klang Valley Expressway (NKVE), the Damansara Puchong Highway (LDP), and the Penchala Link. As the connecting expressway between these major roads, DASH is expected to ease traffic congestion in Shah Alam, Sg Buloh, Damansara, Kota Damansara and Bandar Utama.
On top of first-time homeowners, Eco Grandeur also targeted those who are currently living in the area and looking for a better quality of life without having to move away. The property developer aims to achieve a Green Building Index (GBI) Certified Township status for Eco Grandeur, where conservation efforts are prioritised.
To gauge EcoWorld’s development quality, it is best to take a look at Eco Botanic in Johor, Eco Majestic in Semenyih, and Eco Sanctuary in Kota Kemuning, Shah Alam.
From crafted master plans to design planning and handover, the developer place great emphasis on the whole process of purchasing a property from EcoWorld. One of the customer service initiatives by the Group is the EcoWorld Residence Club (EWRC) – a one-stop service centre that provides Property Care Services & Common Area Support Services. EWRC is set up to provide home support services for all residences developed by EcoWorld and is entrusted with the responsibility of managing and maintaining EcoWorld developments.




